
|
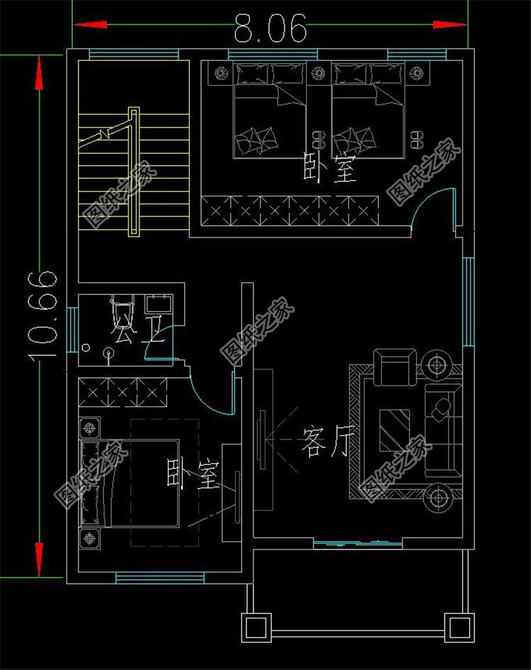
現在回到農村建房的人越來越多,而且很多地方建房都有了限制,有的是限高,有的是限地,這就給大家造成了很多困擾。小編根據大家平時的反映可以看出有很多人宅基地并不大,而且加上大的宅基地政府很難批,所以小編今天介紹三款兩開間就能建的三層別墅設計圖,布局都很實用,建的人超級多,希望可以給大家一個參考。 第一款:80平方米三層小戶型別墅設計圖以及戶型圖,小型自建方案![]() 7室2廳,小戶型的最佳選擇!別墅外立面花色簡單,搭配細致的紋飾,營造出大氣端莊的建筑效果。客廳餐廳寬敞明亮,南北通透,橫向空間得到延伸,作為家中的待客空間一點不顯緊湊,體面又舒服。布置1間養老房,方便老人居住。二樓的的客廳則是方便家庭情感的交流。三間臥室均設有采光通風窗,居住舒適度得到保障。三層主要為休息區,布置3間臥室。大露臺陽光充足,適合蒔花栽草,曬衣待干。 占地面積:8.8m*8.8m,81平方米左右; 建筑層高:三層; 建筑高度:12.6米(含屋頂); 設計功能: 一層戶型:客廳、廚房、餐廳、臥室、衛生間; 二層戶型:客廳或臥室、書房或者小臥室、衛生間、臥室x2、陽臺; 三層戶型:書房或者小臥室、臥室x2、衛生間、露臺 ![]() ![]() ![]() 第二款:80平農村三層房屋設計圖以及戶型圖,精致小戶型自建房![]() 整體造價低,經濟實用,憑實力俘獲大眾芳心!以前國人都喜歡保守,帶有傳統設計的別墅,但隨著現代化的發展,新視界紛紛涌現。這款現代風別墅比起大多以冷色搭配的設計,這款配色看上去溫暖喜慶,更加充滿家的溫馨。外觀時尚簡約,白色真石漆和灰色面磚巧妙搭配的外墻,搭配灰色彎瓦屋頂,配色簡單大方;采用三面開窗,保證采光通風;入戶臺階,地基也與地面有一定距離,有效防潮;沒有過多復雜設計,簡約大方。 占地面積:9.5m*8.95m,79.76平方米左右; 建筑層高:三層; 建筑高度:12.761米(含屋頂); 設計功能: 一層戶型:客廳、餐廳、神位、廚房、茶室、衛生間; 二層戶型:小客廳、臥室x3、衛生間、露臺; 三層戶型:臥室(帶衣帽間)、臥室、衛生間、露臺 ![]() ![]() ![]() 第三款:占地90來平新農村自建房三層別墅設計圖以及戶型圖,不錯的別墅方案![]() 粉色與白色涂料墻體,簡潔干練,沒有繁冗的裝飾。房間尺度設計適宜,空間利用率高,采用多窗設計,增加了室內的采光效果,營造出高品質的居住環境。又使用陽臺和柱相搭配,使這棟別墅美觀又吸睛。屋頂、露臺的高低變化勾勒出錯落有致的建筑形態,入戶堂屋,與餐廳之間有墻體隔開,防止開門見山;餐廳廚房相鄰,就餐方便。 占地面積:8.06m*10.66m,87.32平方米左右; 建筑層高:三層; 建筑高度:12.627米(含屋頂); 設計功能: 一層戶型:客廳(堂屋)、神龕、餐廳、廚房、臥室、衛生間; 二層戶型:客廳、臥室x2、衛生間、陽臺; 三層戶型:臥室x2、衛生間、露臺(帶涼亭) ![]() ![]() ![]() 小編推薦的農村二間三層別墅設計圖以及戶型圖就到這里了,三款你喜歡其中哪一款?評論區告訴我吧!
圖紙之家-專注農村別墅/自建房設計18年,集合國內200余位經驗豐富的設計師,被評為口碑最好的農村建筑設計公司! |

120平米簡單實用型農村小別墅設計圖,二層屋頂為全露臺,小開間
占地:120平方米
130平方米復式三層別墅房屋設計圖,含外觀效果圖
占地:130平方米
140平方米新農村二層自建平屋頂房屋設計圖紙帶外觀效果圖
占地:140平方米左右
125平兩層別墅房屋設計圖,帶普通和復式兩個戶型
占地:125平方米
獨立餐廳廚房,平屋頂現代風格三層別墅設計圖
占地:159.02平方米
130平米帶小院一層自建房屋設計圖,省錢實用,養老房首選
占地:130平方米左右
進深14米的二層小別墅設計圖,農村自建房好方案
占地:144平方米左右
15萬左右新中式二層別墅設計圖平面圖,占地110平米左右
占地:110平方米
兩層樓房設計圖,兩層新農村樓房圖紙,外觀典雅古樸
占地:140平方米
仿古別墅建筑設計圖,外觀效果圖+全套施工圖
占地:142平方米
帶地下室三間二層農村自建房設計圖,現代平屋頂設計
占地:99.98平方米
120平方米帶地下室三層復式別墅戶型圖,現代風格
占地:120.78平方米左
農村120方三層自建房子圖,好看又不貴的三層農村別墅
占地:120平方米
時尚二層現代風別墅設計圖紙,平屋頂方案13×10米
占地:98平方米
2026年獨棟三層雙拼別墅戶型圖,總占地面積300平方米左右
占地:300平方米
一層共用,二層兄弟雙拼的二層別墅設計圖
占地:182.48平方米
農村二層住宅別墅設計圖,貼心實用,12.8米乘14.5米
占地:156.16平方米
農村自建二層半樓房效果圖,美觀大氣布局合理,很適合農村人自
占地:160.11平方米
130平方米新農村三層房屋設計圖紙,外觀簡單大方
占地:130平方米
二層樓房圖片及施工圖紙,占地160平米左右,帶車庫
占地:160平方米
推薦:10套新農村自建房設計圖,2026年最新設計
閱讀次數:4825737次
100套鄉村別墅圖片大全,2026年最新設計
閱讀次數:2492203次
6款農村蓋一層平房的設計圖,10萬元就能建起來
閱讀次數:1852637次
這11個一層農村自建房別墅火爆了朋友圈!我最喜歡戶型十!你呢
閱讀次數:750268次
農村6萬元建一層小別墅圖,你敢相信嗎
閱讀次數:567686次
農村5萬塊就能自建房,6套普通房子設計圖分享,你沒看錯!
閱讀次數:419410次
8套農村漂亮三間平房圖片,非常適合在農村修建!
閱讀次數:411197次
農村自建房化糞池怎么做?附方案及施工過程
閱讀次數:391783次
農村一層三間平房設計圖,告別土氣養老房,讓人忍不住點贊
閱讀次數:350581次
新農村二層樓房圖片造價12萬,挑一套回家建房吧!
閱讀次數:349126次
