
|
外觀效果圖 正面
外觀效果圖背面
外觀效果圖鳥瞰
地下室 地下室主要根據家庭成員的需求來進行功能規劃使用,一共八九十個平方對于家庭影院、臺球室、健身房、酒窖等都可以區分開來使用;
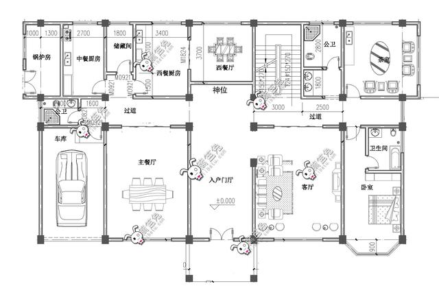
一層布局圖 一樓,入戶大廳可以將右邊的客戶這組墻完全打開,這樣會顯得更寬敞大氣!也可以隔墻,保持大廳和客廳的獨立性,這樣的話就可以在入戶大廳的兩邊來進行很多實用性的規劃,比如鞋柜,還可以做個大氣的玄關;
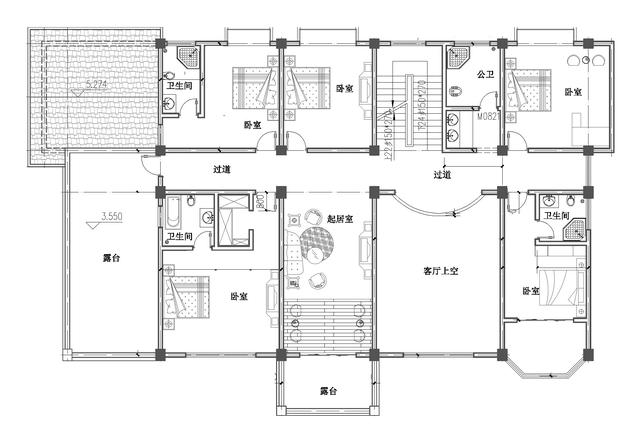
二樓布局圖 二樓一共有5個臥室,房間功能的話可以根據需求來進行改造,最左上角的臥室可以將衛生間改成一個大大的衣帽間,再擴寬一點的話可以當成工作書房,晚上回家可以加加班,看書上網都能保持獨立性而不導致影響其他人;
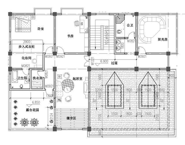
三層布局圖 三樓完美無缺,整套房子在設計上保留了后期跟居家庭成員的不同需求來改造的空間,不是會出現像要重新更換使用功能的話導致無法滿足的情況。
圖紙之家-專注農村別墅/自建房設計18年,集合國內200余位經驗豐富的設計師,被評為口碑最好的農村建筑設計公司! |

95平經濟適用三層農村小別墅設計圖,二開間推薦爆款戶型
占地:95.31平方米
農村仿古四合院設計圖自建房,外觀中式古樸典雅
占地:378平方米
2026最受歡迎的三層農村小別墅設計圖紙,占地155平方米
占地:155平方米
三層雙拼別墅效果圖及戶型設計圖,占地150平米
占地:154.8平方米
新農村三層豪華歐式別墅,復式高端自建房設計圖紙及效果圖
占地:多種戶型
170平方米雙拼別墅戶型建筑設計圖紙及外觀效果圖,復式單戶85平
占地:170平方米
一二層都帶廚房餐廳的獨棟二層別墅設計圖,帶雙廚房
占地:143.68平方米
四層(三層半)復式別墅設計圖片大全,歐式風格
占地:174平方米
農村大戶型中式二層四合院別墅設計圖含外觀效果圖,戶型經典、
占地:464平方米
二層兄弟雙拼農村別墅圖新中式,兄弟這樣建房,大氣省錢
占地:143.412平方米
鄉村二層別墅設計圖,含外觀效果圖,設計師推薦
占地:140平方米
四層雙拼豪華別墅設計圖及外觀效果圖,貴族氣質爆棚
占地:188.5平方米
鄉村典型自建房中式二層四合院別墅設計圖,左右對稱設計
占地:430平方米
2026最新款50萬左右農村三層別墅設計圖,客廳中空
占地:160平方米
一層5間歐式平房小洋樓建筑設計圖紙,大戶型一層別墅戶型
占地:216平方米
10×12米三層別墅戶型,挑空大客廳設計,圈粉無數的爆款方案
占地:120平方米
110平方米新農村三層房屋設計圖,含外觀效果圖
占地:110平方米
小開間三層新中式小別墅設計圖,外觀圖優雅大氣,讓人心動!
占地:103.18平方米
150平方米的新農村自建三層小別墅設計施工圖紙及效果圖
占地:150平方米
20萬以內二層歐式小別墅設計方案,全套施工圖+效果圖
占地:115平方米
推薦:10套新農村自建房設計圖,2026年最新設計
閱讀次數:4825737次
100套鄉村別墅圖片大全,2026年最新設計
閱讀次數:2492203次
6款農村蓋一層平房的設計圖,10萬元就能建起來
閱讀次數:1852637次
這11個一層農村自建房別墅火爆了朋友圈!我最喜歡戶型十!你呢
閱讀次數:750268次
農村6萬元建一層小別墅圖,你敢相信嗎
閱讀次數:567686次
農村5萬塊就能自建房,6套普通房子設計圖分享,你沒看錯!
閱讀次數:419410次
8套農村漂亮三間平房圖片,非常適合在農村修建!
閱讀次數:411197次
農村自建房化糞池怎么做?附方案及施工過程
閱讀次數:391783次
農村一層三間平房設計圖,告別土氣養老房,讓人忍不住點贊
閱讀次數:350581次
新農村二層樓房圖片造價12萬,挑一套回家建房吧!
閱讀次數:349126次
