
|
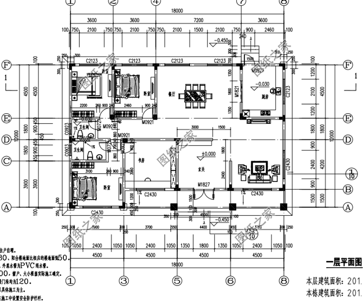
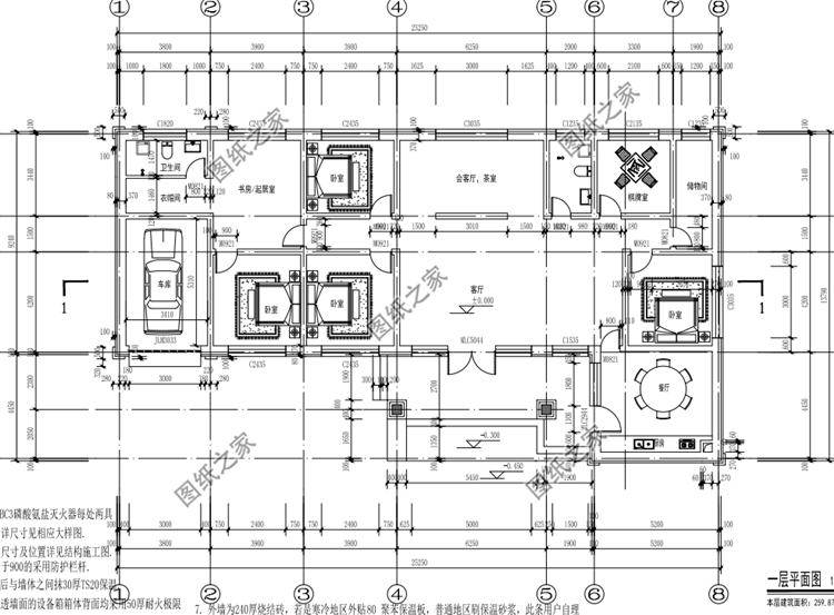
其實還是有一大部分人覺得回老家花個十幾萬建棟房子真的值嗎?對于這個問題,每個人都有不同的答案,如果大家喜歡安靜灑脫、無拘無束的農村生活的話,那么回村建養(yǎng)老房是必然的選擇。今天就給大家推薦三款農村養(yǎng)老房設計圖,保證看了之后也想回去趕快建一棟,一起看看吧。 款式一:農村一層平房設計圖,帶地下室設計,適合農村建造圖紙介紹:這款一層平房占地206平米左右,帶地下室設計,地下室可以當酒窖或儲物間(大小施工時可以自行調整),廚房就在餐廳的旁邊。四個臥室,家里有老人也可以一起住,還配有內衛(wèi),造價經濟,住起來也十分舒適,建起來很氣派,農村建房就選它。 占地面積:17.46m*12.56m,206平方米左右; 建筑層高:一層; 建筑高度:7.051米(含屋頂); 設計功能: 地下室:酒窖; 一層戶型:客廳、廚房、餐廳、臥室X2、臥室(帶衛(wèi)生間)X2、衛(wèi)生間; ![]() ![]() ![]() 款式二:農村一層平房設計圖,占地260平米左右,主體造價20萬圖紙介紹:這款一層平房占地260平米左右,主體造價20來萬,設計多個臥室,家里人多也住得下,還帶有會客廳、棋牌室以及儲物間等。 占地面積:25.2m*13.8m,260平方米左右; 建筑層高:一層; 建筑高度:8.9米(含屋頂); 設計功能:客廳、餐廳、廚房、會客廳、臥室×4、書房、衣帽間、衛(wèi)生間、棋牌室、儲物間、衛(wèi)生間、車庫; ![]() ![]() ![]() ![]() 款式三:農村一層平房設計圖,占地200平米左右,三室兩廳設計圖紙介紹:這款一層別墅占地200平米左右,主體造價20萬左右,三室兩廳設計,帶書房,外觀簡單又好看,造價低。 占地面積:18.0m*12.0m,200平方米左右; 建筑層高:一層; 建筑高度:6.14米(含屋頂); 設計功能:玄關、客廳、餐廳、廚房、、主臥(帶衛(wèi)生間,書房)、臥室×2、衛(wèi)生間; ![]() ![]() ![]() ![]() 怎么樣?看完這三款戶型有沒有心動呢?喜歡的話趕快收藏吧。
圖紙之家-專注農村別墅/自建房設計18年,集合國內200余位經驗豐富的設計師,被評為口碑最好的農村建筑設計公司! |

120平方房子設計圖,農村120平建房設計圖推薦
占地:122平方米
15萬左右一層農村自建房設計圖,一家住剛剛好
占地:131.33平方米
三層平頂現代別墅設計圖,實用不花冤枉錢,建好倍有面子
占地:113.02平方米
140平米一層農村自建房設計圖,好看不貴簡約耐看
占地:141.12平方米
漂亮時尚二層樓房設計圖紙,經濟實用,戶型通透
占地:150平方米
時尚的農村二層別墅圖紙設計,現代風格,簡約的外觀
占地:152平方米左右
120平農村三層自建房屋設計圖,旋轉樓梯復式別墅戶型方案
占地:119.23平方米
140平方米歐式三層別墅建筑設計圖紙,復式結構
占地:140平方米
獨棟經濟型二層小別墅房屋設計圖,含全套施工圖效果圖
占地:多種戶型
120平方米新農村四層別墅設計圖紙12X10米50萬以內
占地:120平方米
100平方米左右新農村二層房屋設計建筑CAD圖紙帶外觀效果圖
占地:多戶型可選
適合小面寬宅基地的兩開間別墅設計圖,8.5米乘13.5米
占地:107.66平方米
90平方米農村二層房屋設計施工圖紙及效果圖,11x8.5米
占地:90平方米
農村四間房屋設計圖經典戶型,這樣設計美觀、實用
占地:169平方米
農村2026新式三間二層樓房,12×11.6米,戶型經典,造價實惠
占地:120平方米
二層農村小別墅設計圖,造價經濟實惠,參考價30萬以內
占地:140平方米
多臥室復式二層別墅房屋設計圖,含外觀效果圖
占地:175平方米
新農村三層房屋cad建筑設計圖紙,磚混結構
占地:138平方米
現代風格精致兩層農村自建房住宅設計圖,帶儲藏室
占地:163平方米
面寬8米農村二間二層小別墅設計方案,施工簡單造價低
占地:73.77平方米
推薦:10套新農村自建房設計圖,2026年最新設計
閱讀次數:4825737次
100套鄉(xiāng)村別墅圖片大全,2026年最新設計
閱讀次數:2492203次
6款農村蓋一層平房的設計圖,10萬元就能建起來
閱讀次數:1852637次
這11個一層農村自建房別墅火爆了朋友圈!我最喜歡戶型十!你呢
閱讀次數:750268次
農村6萬元建一層小別墅圖,你敢相信嗎
閱讀次數:567686次
農村5萬塊就能自建房,6套普通房子設計圖分享,你沒看錯!
閱讀次數:419410次
8套農村漂亮三間平房圖片,非常適合在農村修建!
閱讀次數:411197次
農村自建房化糞池怎么做?附方案及施工過程
閱讀次數:391783次
農村一層三間平房設計圖,告別土氣養(yǎng)老房,讓人忍不住點贊
閱讀次數:350581次
新農村二層樓房圖片造價12萬,挑一套回家建房吧!
閱讀次數:349126次
