
|
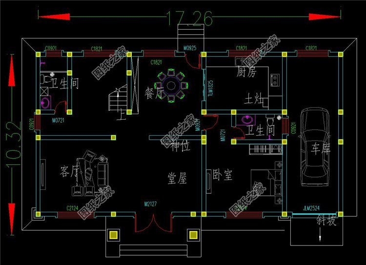
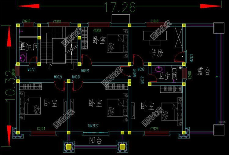
如果你手里有點錢,不多二三十萬就可以,你會選擇在城市付一個首付購買房子,還是在農村建一棟別墅呢?可能對于年輕人來說,大多數會選擇前者,但對于上了年紀的朋友,很大可能選擇后者。畢竟在城市購買房子二三十萬只能付一個首付,而農村自建別墅就不一樣,不僅可以根據自己喜好設計房間,而且十分溫馨,一家幾口完全能夠滿足!下面小編就介紹四款農村可以建的160平三層別墅效果圖以及戶型圖,來看看吧! 第一款:農村三層中式仿古別墅設計圖以及戶型圖,中國風自建房戶型![]() 盡顯東方韻味之美!房屋整體試圖呈現一種新中式的風格。尤其在窗戶和圍欄的裝飾上,使用了很多中式傳統紋樣。白色的外墻配上灰色的瓦片,再點綴木色裝飾,整體色調顯得十分協調。一層廚房留了一個直接通向室外的門挺好的,采購歸來能夠直接將食材拿進廚房,不需要經過客廳餐廳;餐廳靠近廚房,聯系便捷;二層是生活區,四間臥室圍繞一間客廳,合理分配,房間多人口再多都不用愁。書房給主人提供了一個安靜獨立的空間學習、辦公。三層同樣設計了四間臥室,棋牌室便于家人聯絡感情,南側設計了一塊大露臺,增加了室內通風性,也方便晾曬衣服。 占地面積:11m*12.3m,158.64平方米左右; 建筑層高:三層; 建筑高度:12.6米(含屋頂); 設計功能: 一層戶型:茶室、客廳、廚房、餐廳、臥室、衛生間; 二層戶型:客廳、書房、臥室(帶衣帽間)x2、臥室x2、衛生間、陽臺; 三層戶型:棋牌室、臥室(帶衣帽間)、臥室x3、衛生間、露臺 ![]() ![]() ![]() 第二款:高端三層獨棟歐式別墅效果圖以及戶型圖,帶大衛生間![]() ![]() ![]() 外墻用經典歐式構件和真石漆的混合搭配,一層外墻用棕色真石漆噴飾,二三層則用米黃色真石漆噴飾,兩種顏色,深淺結合,能很好的展現出別墅的結構層次,屋頂是橘紅色的琉璃瓦,搭配清新又時尚。門前是用方形的羅馬柱裝飾,二三層用小羅馬柱裝飾,既能使別墅看上去莊嚴氣派,也能表現出主人家的英氣。 占地面積:11.8m*13m,158平方米左右; 建筑層高:三層; 建筑高度:13.36米(含屋頂); 設計功能: 一層戶型:玄關、客廳、廚房、餐廳、老人房(帶衛生間)、臥室、衛生間、洗衣間; 二層戶型:客廳上空、客廳、臥室(帶衛生間)、臥室x2、衛生間、陽臺; 三層戶型:臥室(帶書房陽光房衛生間)、臥室(帶衛生間)、陽臺、露臺 ![]() ![]() ![]() 第三款:帶車庫的三層別墅房屋方案設計圖以及戶型圖,氣派有檔次![]() 帶堂屋的戶型,農村生活太香!外觀造型簡潔大方,色彩明快,采用歐式風格一貫的精致線條,外墻乳白色真石漆和深褐色面磚搭配修飾,羅馬柱造型變幻,豪華氣派,大面積的開窗設計,讓別墅美觀的同時,居住舒適度也毋庸置疑,加上紅色的坡屋頂和屋檐,別墅頓顯生動活力。功能分區合理,房間尺度設計適宜,采光通風良好,富有時代氣息。 占地面積:17.26m*10.32m,163.8平方米左右; 建筑層高:三層; 設計功能: 一層戶型:堂屋、神位、客廳、餐廳、廚房、臥室(帶衛生間)、衛生間、車庫; 二層戶型:書房、臥室x3、臥室(帶衛生間)、衛生間、陽臺、露臺; 三層戶型:健身房、臥室、臥室(帶衛生間)、衛生間、陽臺、露臺x2 ![]() ![]() ![]() 第四款:帶地下車庫的農村三層別墅設計圖以及戶型圖,復式戶型旋轉樓梯![]() 這么有意思的設計,農村自建房首選!別墅的占地面積是160平米左右,大小正好,不大不小建出來的別墅非常的養眼。別墅的外墻采用的是黃色外墻磚,搭配橘紅色的屋面瓦,兩種裝飾手法結合實用,使別墅非常的獨特有味。多出陽臺的設計能很好提高別墅的實用性。 占地面積:12.5m*13.7m,159.03平方米左右; 建筑層高:三層; 建筑高度:13.955米(含屋頂); 設計功能: 地下戶型:地下車庫; 一層戶型:客廳、餐廳、廚房、臥室(帶衛生間)、書房、衛生間; 二層戶型:客廳上空、臥室(帶衛生間)X2、臥室、衛生間、陽臺; 三層戶型:娛樂區、臥室(帶衛生間)X2、衛生間、露臺 ![]() ![]() ![]() ![]() 以上就是小編推薦的160平的三層別墅設計圖以及戶型圖,有沒有你喜歡的類型?評論區告訴我吧!
圖紙之家-專注農村別墅/自建房設計18年,集合國內200余位經驗豐富的設計師,被評為口碑最好的農村建筑設計公司! |

農村三層歐式別墅豪宅戶型圖設計方案,復式中空客廳+旋轉樓梯
占地:134.84平方米
230平(單戶115平)雙拼別墅房屋設計圖及效果圖大全
占地:230平方米
四層雙拼豪華別墅設計圖及外觀效果圖,貴族氣質爆棚
占地:188.5平方米
仿古中式三合院設計圖紙,帶堂屋,適合農村自建
占地:173平方米
新農村三層自建房屋設計圖,含外觀圖片
占地:136平方米
農村三層樓房設計圖及圖片,客廳挑空,優化室內采光
占地:140平方米
新農村簡歐三層樓房圖片自建3層別墅施工設計圖及效果圖
占地:126平方米
經濟型實用歐式一層小樓房別墅平房設計圖,11X10米
占地:103平方米
帶堂屋二層小別墅設計圖紙帶外觀圖,13.6米x9米
占地:122.4平方米
現代一層(帶悶頂)別墅住宅設計圖,外觀現代時尚
占地:160平方米
帶地下室KTV三層農村自建別墅設計圖,12米乘12.5米
占地:131.7平方米
3款簡單舒適二層別墅設計圖,低調配色,造型簡單大氣
占地:多戶型可選
大氣農村三層歐式雙拼別墅全套施工圖紙,帶堂屋設計,外觀圖片
占地:196.056平方米
占地90平米四層超現代風別墅設計圖,享受高品質生活
占地:3.76平方米
農村三層樓房設計圖及效果圖,復式磚混結構
占地:148平方米
115平漂亮的三層別墅設計方案,外觀圖片大氣、精致
占地:115平方米
超大氣的農村一層雙拼自建別墅設計方案,絕對讓人羨慕的“平房
占地:424平方米
歐式三層樓中樓別墅設計圖紙帶車庫(含外觀效果圖)
占地:130平方米
高端大氣三層雙拼自建房設計圖,外觀漂亮,240平左右
占地:240平方米
精致農村別墅圖,150平米一層三合院設計,四臥二廳舒適宜居
占地:149.43平方米
推薦:10套新農村自建房設計圖,2026年最新設計
閱讀次數:4825737次
100套鄉村別墅圖片大全,2026年最新設計
閱讀次數:2492203次
6款農村蓋一層平房的設計圖,10萬元就能建起來
閱讀次數:1852637次
這11個一層農村自建房別墅火爆了朋友圈!我最喜歡戶型十!你呢
閱讀次數:750268次
農村6萬元建一層小別墅圖,你敢相信嗎
閱讀次數:567686次
農村5萬塊就能自建房,6套普通房子設計圖分享,你沒看錯!
閱讀次數:419410次
8套農村漂亮三間平房圖片,非常適合在農村修建!
閱讀次數:411197次
農村自建房化糞池怎么做?附方案及施工過程
閱讀次數:391783次
農村一層三間平房設計圖,告別土氣養老房,讓人忍不住點贊
閱讀次數:350581次
新農村二層樓房圖片造價12萬,挑一套回家建房吧!
閱讀次數:349126次
