
|
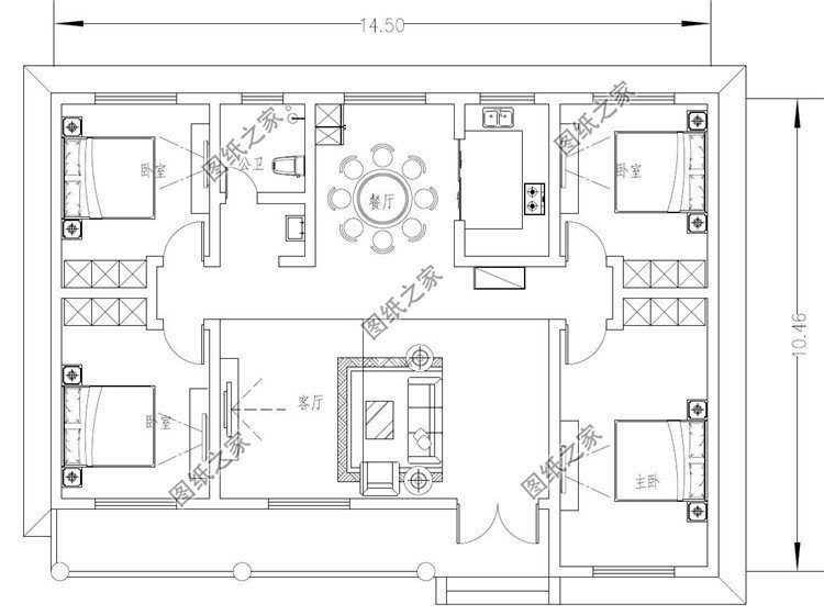
隨著時代的發展,人們的經濟水平也逐漸提升,隨之而來的是人們生活水平的提升。越來越多的年輕人在外掙錢,回鄉后就想建一棟自己住著舒適,看著大氣的房子。住著舒心,能提升生活的幸福感,也很有面子。就和小編一起來看看這四款簡約大氣的別墅外觀吧! 第一款:140平方米一層歐式新農村自建設計圖以及戶型圖,造價11萬左右![]() 外觀時尚新穎。墻體采用大面積的暖色面磚,搭配藍色屋面瓦,整體配色素凈淡雅。室內空間都非常大而注重生活品質,入戶就通大客廳,餐廳和廚房相連,用餐方便,設有四個臥室,房間充裕,分別在建筑的四個角落,可以當老人房使用,非常舒適的居家體驗。 占地面積:14.5m*10.46m,141.218平方米左右; 建筑層高:一層; 建筑高度:6.4米(含屋頂); 設計功能: 一層戶型:客廳、臥室x4、廚房、餐廳、衛生間 ![]() 第二款:農村新款二層中式別墅設計圖以及戶型圖,帶堂屋設計![]() ![]() ![]() 這款別墅外墻采用白色真石漆裝飾,藍色雙坡屋頂,欄桿和窗套采用木色加鏤空修飾,優雅自然,室內布局經過優化,設計合理,空間利用率高。 占地面積:15.76m*9.76m,144平方米左右; 建筑層高:二層; 建筑高度:8.66米(含屋頂); 設計功能: 一層戶型:客廳、堂屋、廚房、餐廳、父母房(帶衛生間)、臥室x2、衛生間; 二層戶型:茶室、父母房(帶衛生間)、臥室x4、衛生間、涼亭、露臺 ![]() ![]() 第三款:二層簡歐風格別墅自建房設計圖以及戶型圖,戶型方正![]() 簡約主義與傳統歐式的碰撞!別墅低調奢華有內涵,它很好地柔和了簡約主義的簡潔、利落和傳統歐式風格的精致,讓整個外觀變得典雅、大氣、更貼近自然。一層動靜分離,樓梯隔開兩個區域,使其互不干擾。衛生間緊挨房間,老人起宿方便。其他的也沒什么好說的,應有盡有,滿足日常生活。二樓四臥兩衛,書房用來辦公學習,休閑室作為休閑娛樂 占地面積:11.45m*11.6m,132.4平方米左右; 建筑層高:二層; 建筑高度:9.695米(含屋頂); 設計功能: 一層戶型:客廳、娛樂室、餐廳、廚房、臥室(帶衛生間)、衛生間; 二層戶型:客廳、休閑室、臥室(帶衛生間)、臥室x3、衛生間、陽臺 ![]() ![]() 第四款:帶大露臺的二層半農村樓房別墅設計圖以及戶型圖,自建房簡單實用型![]() 沒有花里胡哨,只有實用的布局,適合咱農村的別墅!別墅整體為歐式建筑風格,門口使用兩根方形立柱,墻上雕刻有立體花樣,搭配二樓陽臺的花瓶圍欄,歐式風立馬浮現,樓房設計十分實用,滿足家人居住空間的同時,也不會浪費房屋空間。一樓的老人房帶有獨立的衛生間,二層活動室的設計可以使業主在休息的時候也能得到放松,三樓大露臺設計可以供業主平時在此喝茶、小憩,晾曬區的面積很大,能滿足業主家庭的晾曬需求。 占地面積:10.76m*12.26m,121平方米左右; 建筑層高:二層; 建筑高度:12.647米(含屋頂); 設計功能: 一層戶型:玄關、客廳、機房、廚房、餐廳、臥室(帶衛生間)、臥室、衛生間; 二層戶型:茶室、活動室、臥室(帶衛生間)、臥室x3、衛生間、陽臺; 三層戶型:活動室、臥室x3、衛生間、露臺; ![]() ![]() ![]() 以上就是小編推薦的農村自建房設計,你家想好建幾層了嗎?
圖紙之家-專注農村別墅/自建房設計18年,集合國內200余位經驗豐富的設計師,被評為口碑最好的農村建筑設計公司! |

新中式農村三層樓房設計圖,帶地下室,主體建筑面積110平米
占地:110平方米
樓中樓客廳挑高二層別墅設計圖,復式別墅方案推薦
占地:122平方米
農村四間二層別墅設計圖,七室二廳帶車庫,室內寬敞鄰居都羨慕
占地:217.1平方米
農村中式一層合院別墅設計圖,帶小院子規劃設計
占地:202平方米左右
120平方兩層房子設計圖及圖片,外觀大方好看,內部結構合理
占地:120平方米
一層中式三合院別墅設計圖,白墻黛瓦引領潮流
占地:177.94平方米
L字型自建房屋設計圖,一層別墅類型,外觀效果圖漂亮
占地:188.62平方米
200平方米別墅設計圖紙(含效果圖),農村別墅方案精選
占地:200.26平方米
經典三層小別墅設計圖紙(效果圖+全套cad建筑圖),新農村自建
占地:120平方米
帶院子的一層農村別墅設計圖,造價不高,養老房首選!
占地:144.819平方米
210平方米新農村三層雙拼全套別墅設計圖紙帶效果圖
占地:207.25平方米
帶地下室設計三層自建房別墅設計圖,復式挑空客廳
占地:192平方米
30萬農村小別墅設計圖片,30萬別墅設計戶型推薦
占地:130平方米
鄉村二層簡歐小戶型別墅圖設計,占地90平方米左右
占地:92.12平方米
新農村兩層半小洋樓房設計圖,預算33萬左右
占地:多種戶型
10米×13米最好看的農村三層樓房圖,客廳中空
占地:124平方米
新農村二層帶露臺經濟型小別墅設計圖紙,含外觀效果圖
占地:120平方米
新農村三層別墅設計圖紙及效果圖,全套cad建筑圖
占地:119平方米
四層自建別墅設計圖,有車庫帶露臺,時尚大氣給你一個五星級的
占地:152.51平方米
新農村自建20萬二層小樓外觀圖及戶型圖,簡單大方,漂亮接地氣
占地:130平方米
推薦:10套新農村自建房設計圖,2026年最新設計
閱讀次數:4825737次
100套鄉村別墅圖片大全,2026年最新設計
閱讀次數:2492203次
6款農村蓋一層平房的設計圖,10萬元就能建起來
閱讀次數:1852637次
這11個一層農村自建房別墅火爆了朋友圈!我最喜歡戶型十!你呢
閱讀次數:750268次
農村6萬元建一層小別墅圖,你敢相信嗎
閱讀次數:567686次
農村5萬塊就能自建房,6套普通房子設計圖分享,你沒看錯!
閱讀次數:419410次
8套農村漂亮三間平房圖片,非常適合在農村修建!
閱讀次數:411197次
農村自建房化糞池怎么做?附方案及施工過程
閱讀次數:391783次
農村一層三間平房設計圖,告別土氣養老房,讓人忍不住點贊
閱讀次數:350581次
新農村二層樓房圖片造價12萬,挑一套回家建房吧!
閱讀次數:349126次
