
|
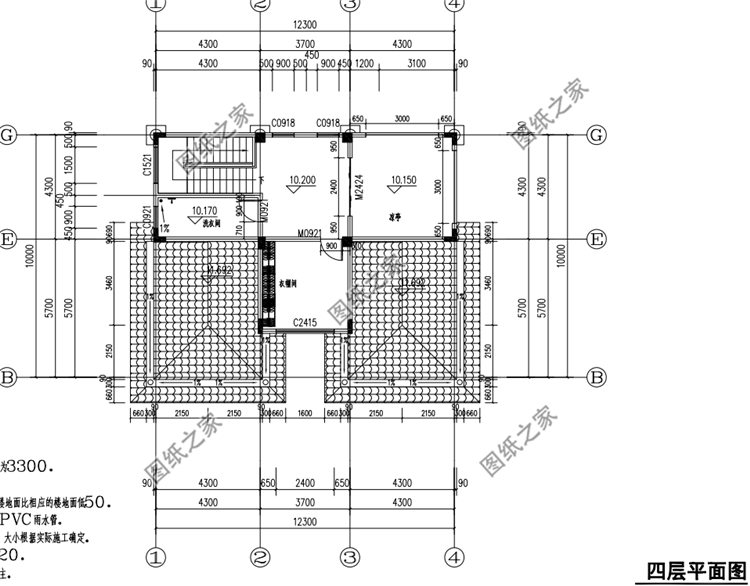
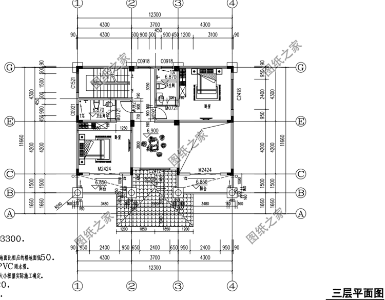
農村建房子可不是兒戲,一生也許就建這一次房子,一家人能住一輩子,所以很多人家里的房子能夠建得美觀、建得實用、建的經濟,今天分享的這三款布局實用造價經濟的農村新式小別墅設計圖,戶型經典實用,室內布局非常合理,功能也很齊全,快來看看這三款圖紙吧! 方案一:農村四層別墅設計圖,占地120平米,歐式風格外觀大氣圖紙介紹:這款四層別墅占地120平方米左右,歐式風格,乳白色的真石漆外墻面磚和羅馬柱裝飾別墅,配以浮雕飾面裝飾,豐富整個建筑面。橘黃色的琉璃瓦鋪裝屋頂,橘黃色向來都被視為是攜帶貴氣的顏色,坡屋頂設計美觀、便于排水,是大多數建房人的共同選擇。大門處正面進出,首層配有一室一廳一廚兩衛,設有儲藏間;二層配兩套間一廳,外帶茶座和陽臺設計;三層的布局和二層一樣,四層有洗衣房,衣帽間和涼亭。 占地面積:12.3m*11.7m,120平方米; 建筑層高:四層; 建筑高度:15.3米(含屋頂); 設計功能: 一層戶型: 儲物間,餐廳,廚房,衛生間,臥室(帶衛生間),客廳; 二層戶型: 臥室(帶衛生間)X2,茶座,客廳,陽臺 ; 三層戶型:臥室(帶衛生間)X2,茶座,客廳上空,陽臺X2; 四層戶型:洗衣間,衣帽間,涼亭; ![]() ![]() ![]() ![]() ![]() 方案二:農村四層自建別墅占地180平米,大氣豪華戶型圖紙介紹:這款四層自建別墅占地180平米左右,經典的歐式外觀,大氣美觀,它大氣端莊的形象早已深入人心。夜幕降臨時,室內暖融融的燈光逐一亮起,它絕對是整個鎮上最閃亮的一棟。 占地面積:15.8m*11.30m,180平方米左右; 建筑層高:四層; 建筑高度:15.57米(含屋頂); 設計功能: 一層戶型展示:大廳、廚房、餐廳、客廳、茶室、保姆房、衛生間; 二層戶型展示:客廳上空、臥室、休閑廳、健身房、衛生間、露臺; 三層戶型展示:主臥(帶衣帽間,衛生間,書房,陽臺)×2、臥室(帶衣帽間和衛生間)×2; 四層戶型展示:臥室(帶衣帽間和衛生間)×2、洗衣房、露臺; ![]() ![]() ![]() ![]() ![]() 方案三:農村四層自建別墅設計圖,占地150平米,挑空客廳設計圖紙介紹:這款四層別墅占地150平米左右,帶挑空客廳設計,給人樓中樓高檔之感,豪華別墅的代表。的這輩子,擁有一棟豪華中式別墅,人生才不算白活。別墅外觀設計感十足。富貴之氣迎面而來。低調的配色給人一種穩重大氣之感!別墅還設計多窗多露臺,建一棟就是大大的享受! 占地面積:12.0m*13.1m,147平方米左右; 建筑層高:四層; 建筑高度:15.75米(含屋頂); 設計功能: 一層戶型展示:玄關、客廳、餐廳、廚房、茶室、臥室(帶衛生間)、衛生間; 二層戶型展示:客廳上空、起居室、臥室(帶衛生間)、臥室×2、娛樂室、衛生間、陽臺; 三層戶型展示:起居室、主臥(帶陽臺和衛生間)、臥室(帶衛生間)、次臥、書房、衛生間、陽臺; 四層戶型展示:娛樂室、臥室(帶衛生間)、臥室、儲物間、衛生間、2大露臺; ![]() ![]() ![]() ![]() ![]() 不知道建什么樣的房子的朋友不妨看看這三款戶型,大氣美觀建一棟面子十足。
圖紙之家-專注農村別墅/自建房設計18年,集合國內200余位經驗豐富的設計師,被評為口碑最好的農村建筑設計公司! |

中式二層三合院設計圖紙含外觀效果圖片,大氣又實用
占地:216.04平方米
帶獨立廚房的二層自建房設計圖,大戶型方案
占地:233平方米
好看又簡單的二層樓房設計圖紙,戶型還實用
占地:150平方米
適合農村建的二層別墅設計圖,簡約美觀,讓人心動不已
占地:153平方米
二開間小戶型設計三層農村自建房方案,經濟型適合小宅基地建房
占地:107.02平方米
小面寬的農村簡單四層2建平屋頂別墅設計圖,農村自建房首選
占地:109.29平方米
回農村建養老房,還是一層平頂戶型最合適,不單單只是省錢
占地:102.24平方米
帶屋頂平臺的一層農村小別墅圖,有閣樓有露臺
占地:152平方米
小L型新款二層別墅設計圖,復式客廳旋轉樓梯,14米乘13米
占地:182平方米
農村兄弟雙拼二層四合院別墅設計圖,戶型左右對稱
占地:430平方米
200平方米別墅設計圖紙(含效果圖),農村別墅方案精選
占地:200.26平方米
農村中式一層三合院自建房戶型方案圖,帶庭院設計
占地:222平方米
115平旋轉樓梯三層復式別墅房屋設計圖,含外觀效果圖
占地:115平方米
農村一層獨棟別墅設計圖,帶閣樓,設計感十足
占地:250平方米
簡歐漂亮農村二層別墅設計方案圖紙,12米乘9米
占地:多戶型可選
160平方米農村三層小別墅設計圖紙,13.8x12.7米
占地:163平方米
100平方米農村二層CAD設計圖紙帶外觀圖,12X8米
占地:100平方米
超實用的農村一層別墅設計圖,經濟實惠養老自住都不錯,
占地:128.35平方米
農村兄弟雙拼別墅三層,美觀氣派,室內布局合理實用
占地:300平方米
省錢美觀一層自建房子設計圖,父母養老住很適合
占地:117平方米
推薦:10套新農村自建房設計圖,2026年最新設計
閱讀次數:4825737次
100套鄉村別墅圖片大全,2026年最新設計
閱讀次數:2492203次
6款農村蓋一層平房的設計圖,10萬元就能建起來
閱讀次數:1852637次
這11個一層農村自建房別墅火爆了朋友圈!我最喜歡戶型十!你呢
閱讀次數:750268次
農村6萬元建一層小別墅圖,你敢相信嗎
閱讀次數:567686次
農村5萬塊就能自建房,6套普通房子設計圖分享,你沒看錯!
閱讀次數:419410次
8套農村漂亮三間平房圖片,非常適合在農村修建!
閱讀次數:411197次
農村自建房化糞池怎么做?附方案及施工過程
閱讀次數:391783次
農村一層三間平房設計圖,告別土氣養老房,讓人忍不住點贊
閱讀次數:350581次
新農村二層樓房圖片造價12萬,挑一套回家建房吧!
閱讀次數:349126次
