
|
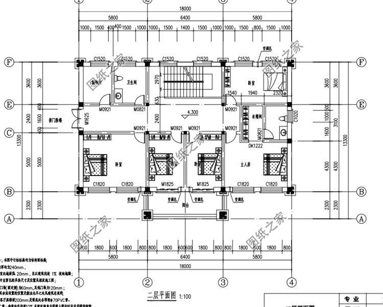
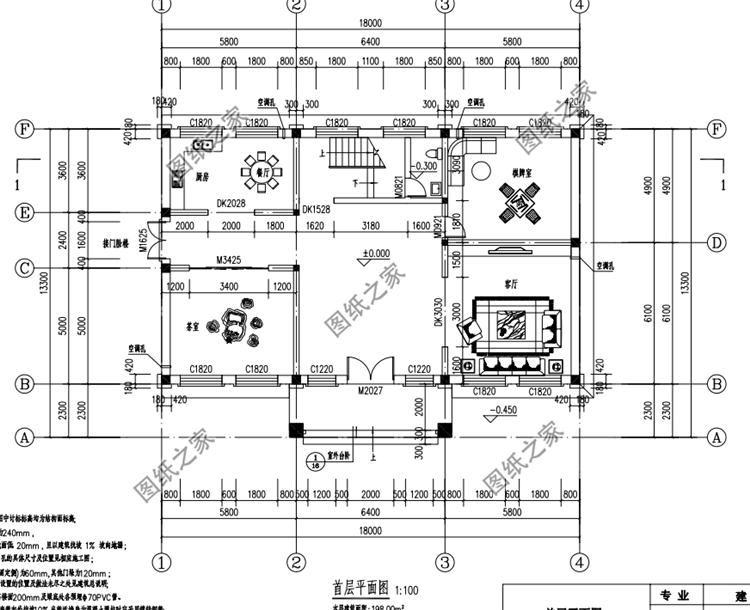
為什么現在越來越多的人會選擇回鄉建房呢?大抵是一種情懷吧。自己在城市里打拼,但很多時候父母還是愿意定居在農村。農村消費不高,給再多的錢也沒用,不如建棟新房改善下父母的居住環境。今天給大家推薦三款現代農村小型別墅設計圖,戶型霸氣十足,鄰居看了都說值了。 方案一:農村二層別墅設計圖,占地180平米,外觀漂亮圖紙介紹:這款二層自建別墅占地180平米左右,外觀漂亮大氣,帶露臺設計,回老家建一棟,生活老有所居。回農村建房,已成為一種趨勢,人老了,總要有一個地方可以歇息。老家如果有一棟,生活就有了退路,老家才是最好的歸宿。 占地面積:16.9m*13.0m,占地180平方米左右; 建筑層高:二層; 建筑高度:9.8米(含屋頂); 設計功能: 一層戶型:玄關、堂屋、客廳、衛生間、主臥(帶衛生間)、臥室、棋牌室;堂屋可改造成廚房餐廳。 二層戶型:客廳、主臥(帶衣帽間,衛生間)、臥室(帶衣帽間)x2、廚房、衛生間、大露臺; ![]() ![]() ![]() ![]() 方案二:農村二層自建別墅設計圖,外型好看造價實惠,施工也簡單圖紙介紹:這款二層小別墅占地200平米左右,戶型簡易,好看實惠,施工也簡單,最適合農村!別墅外型設計比較時尚,采用歐式現代風格,外墻使用真石漆,優雅清新的米白色使人感到舒適,也提升了建筑的檔次。燈光輝映,美觀大氣! 占地面積:18.0m*13.3m,200平方米左右; 建筑層高:二層; 建筑高度:11.55米(含屋頂); 設計功能: 一層戶型:客廳、餐廳、廚房、衛生間、茶室、棋牌室; 二層戶型:主臥(帶衣帽間、衛生間)、臥室x4、衛生間、雜物間、陽臺; ![]() ![]() ![]() ![]() 方案三:農村二層自建別墅設計圖,占地180平米,外觀漂亮大氣圖紙介紹:這款二層樓房占地180平方米左右,外觀在燈光的映襯下極顯溫馨。戶型美觀造價又低,室外的大露臺可以種葡萄,乘涼,甚至晾曬糧食。這套農村二層自建別墅,戶型方正風水好,模樣氣派有面子,建造成本不太高,居住生活很舒適。 占地面積:16.0m*13.0m,180平方米左右; 建筑層高:二層; 建筑高度:9.59米(含屋頂); 設計功能: 一層戶型:客廳、餐廳、廚房、衛生間、主臥(帶衛生間,衣帽間)、儲藏間; 二層戶型:客廳、主臥(帶衛生間,衣帽間)、臥室x4、衛生間、陽臺、露臺; ![]() ![]() ![]() ![]() 喜歡這三款戶型的朋友可以收藏,等到建房的時候參考哦。
圖紙之家-專注農村別墅/自建房設計18年,集合國內200余位經驗豐富的設計師,被評為口碑最好的農村建筑設計公司! |

90平小戶型四層房屋設計圖,農村自建別墅推薦
占地:90平方米
時尚二層現代風別墅設計圖紙,平屋頂方案13×10米
占地:98平方米
占地80平四層平頂別墅設計圖,現代風房子效果圖
占地:80平方米
120平方米農村四層別墅施工設計圖紙及效果圖
占地:120平方米
農村三層四合院別墅設計圖紙,自建房建這棟面子十足
占地:227.49平方米
經典農村二層小別墅設計圖紙帶露臺(含外觀效果圖)
占地:110平方米
200平方米別墅設計圖紙(含效果圖),農村別墅方案精選
占地:200.26平方米
新中式高端三層雙拼自建房別墅設計圖,豪華霸氣的外觀
占地:256.02平方米左
190平方米新農村三層(二層半)雙拼房屋設計圖紙,兄弟合建
占地:192平方米左右
一層農村自建房別墅設計圖,簡潔時尚的設計,給父母建養老房
占地:144平方米
12×12米農村二層經濟型自建房設計圖,設計了6間臥室
占地:140平方米
新中式一層別墅設計圖紙,農村自建平房戶型方案圖
占地:183.7平方
農村四間兩層別墅房屋設計圖,含外觀圖片
占地:160平方米
超實用的農村一層別墅設計圖,經濟實惠養老自住都不錯,
占地:128.35平方米
帶地下室(車庫)的二層別墅設計圖,外觀效果圖時尚美觀
占地:149平方米左右
造價12萬一層簡單自建房設計戶型圖,占地面積140平方米左右
占地:137.76平方米
新中式風格農村自建房二層設計圖,15.5米乘12米
占地:186平方米
140平米一層農村自建房設計圖,好看不貴簡約耐看
占地:141.12平方米
帶院子的四間二層別墅房屋設計圖,帶獨立車庫
占地:350平方米
80平農村房屋設計圖,小戶型自建房三層別墅推薦
占地:80平方米
推薦:10套新農村自建房設計圖,2026年最新設計
閱讀次數:4825737次
100套鄉村別墅圖片大全,2026年最新設計
閱讀次數:2492203次
6款農村蓋一層平房的設計圖,10萬元就能建起來
閱讀次數:1852637次
這11個一層農村自建房別墅火爆了朋友圈!我最喜歡戶型十!你呢
閱讀次數:750268次
農村6萬元建一層小別墅圖,你敢相信嗎
閱讀次數:567686次
農村5萬塊就能自建房,6套普通房子設計圖分享,你沒看錯!
閱讀次數:419410次
8套農村漂亮三間平房圖片,非常適合在農村修建!
閱讀次數:411197次
農村自建房化糞池怎么做?附方案及施工過程
閱讀次數:391783次
農村一層三間平房設計圖,告別土氣養老房,讓人忍不住點贊
閱讀次數:350581次
新農村二層樓房圖片造價12萬,挑一套回家建房吧!
閱讀次數:349126次
