
|
說起來蓋房子,絕對是現如今農村人人生中的一件大事,農村的家家戶戶現在都蓋起了屬于自己的小洋樓,既然要蓋房子,自然要符合自己的心意,還要蓋的不比別人差。外觀,布局,裝飾,舒適程度,還有造價都要進行自己喜愛的選擇。今天給大家帶來三款外觀好看,布局合理,居住舒適的別墅設計圖紙,一起來看看吧。 別墅圖一:160平兩層鄉村別墅設計圖屋頂多為灰色斜坡屋頂,與墻面巧妙搭配,能體現歐式建筑的古典美;別墅大門采用歐式風格,兩側豎立兩根大石柱;外墻涂有真石漆裝飾,閣樓娛樂區可以供人們品茶,搓搓麻將等。一樓大堂設有臥室,供行動不便的老人居住。
別墅效果圖 占地面積:15.1m*13.5m,168.12平方米左右; 建筑層高:二層; 建筑高度:10.52米(含屋頂); 設計功能: 一層戶型:玄關、客廳、廚房、餐廳、臥室x2、臥室(帶衛生間)、儲物間、衛生間; 二層戶型:客廳上空、起居室、書房、臥室(帶衛生間)、臥室x3、衛生間、陽臺; 閣樓戶型:娛樂室、臥室上空、儲物間、露臺;
一層平面圖
二層平面圖
悶頂平面圖 別墅圖二:新農村帶車庫的二層小別墅設計方案圖古典簡歐風格,淺灰外墻真石漆與紅坡屋面的相結合,不容易落伍,外型線框順暢,顏色清新自然,盡展雅致大氣,極為適宜定居。大門口立柱構建的過道室內空間顯現出大伙兒穩重端莊的設計風格。生活陽臺和歐式羅馬柱的配搭,不但提升了設計感,還讓屋內光照自然通風更上層樓,無需外出就能吸引住田園風光。配搭精美的落地玻璃窗,給房屋增加了許多豪情萬丈。飯店大客廳中間有間距,確保了所有屋子的新鮮空氣。側邊配有單獨停車位,室內空間寬闊,泊車便捷。二樓的大客廳連生活陽臺都有很好的自然通風效果;大陽臺位于房子的整體東部,冬天可以用來曬谷物和腌魚。
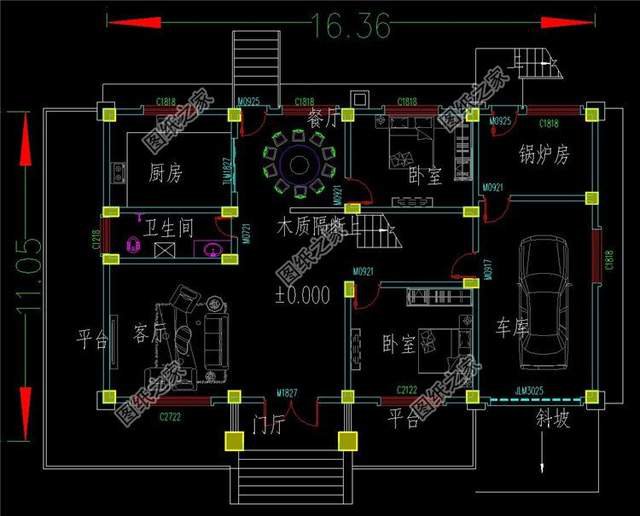
別墅效果圖 占地面積:16.36m*11.05m,168.73平方米左右; 建筑層高:二層; 建筑高度:9.499米(含屋頂); 設計功能: 一層戶型:客廳、鍋爐房、餐廳、廚房、臥室x2、衛生間、車庫; 二層戶型:客廳、娛樂室、臥室x4、衛生間、陽臺、露臺;
一層平面圖
二層平面圖 別墅圖三:帶地下室的二層復式鄉村別墅設計圖紙房型正方形好用,酒窖、家庭影院套裝功能完善,特別適合農村自建。房屋質感強,構造標準強有力,線框順暢,擺正沉穩。淺色系墻體配搭淡黃色文化磚和紫藍色屋面瓦,高貴雅致。獨棟別墅有別墅地下室,作為娛樂休閑室內空間。多用途多功能廳的設計方案充實了村里人的閑暇時間。大客廳做了閑置處理,與餐廳相接,擴張了室內空間總面積,設計方案了旋轉式樓梯,傾斜度柔美,提高了別墅區的層次感。
別墅效果圖 占地面積:17.5m*13.45m,208.98平方米左右; 建筑層高:二層; 建筑高度:9.82米(含屋頂); 設計功能: 地下室戶型:家庭影音、酒窖、棋牌室、儲物間、健身區; 一層戶型:玄關、客廳、餐廳、廚房、臥室(帶衛生間)、臥室(帶衛生間、衣帽間)、車庫; 二層戶型:臥室(帶衛生間、衣帽間、書房)x2、臥室(帶汗蒸房)、露臺x2、陽臺;
地下室平面圖
一層平面圖
二層平面圖 以上就是今天分享的全部內容了,有興趣的朋友記得評論喲。 圖紙之家-專注農村別墅/自建房設計18年,集合國內200余位經驗豐富的設計師,被評為口碑最好的農村建筑設計公司! |

農村四間二層別墅設計圖,七室二廳帶車庫,室內寬敞鄰居都羨慕
占地:217.1平方米
農村中式四合院房屋圖片及設計圖,白墻黛瓦的江南風格
占地:337平方米
經典農村二層小別墅設計圖紙帶露臺(含外觀效果圖)
占地:110平方米
120平方米農村四層別墅施工設計圖紙及效果圖
占地:120平方米
農村自建二層半樓房效果圖,美觀大氣布局合理,很適合農村人自
占地:160.11平方米
三層獨棟帶露臺房屋設計圖,含外觀圖片大全
占地:110平方米
經典實用的新農村三層房屋設計圖紙,推薦自建使用
占地:165平方米
經濟實用型二層農村小別墅設計圖,造價25萬內,外觀看起來時尚
占地:120平方米
12.8x10米二層自建房別墅設計圖,大氣美觀實用,建造無憂
占地:128平方米
別致美觀的簡歐二層別墅房屋設計圖,含外觀效果圖
占地:145平方米
帶柴火房農村一層自建房設計圖,戶型布局接地氣
占地:126.29平方米
占地90平新中式經濟二層小別墅自建房設計圖,僅15萬
占地:89.3平方米
田園風格別墅設計圖及外觀圖片,樓中樓結構
占地:140平方米
130平方米農村兩層別墅圖紙及效果圖12X11米
占地:133平方米
三層新農村自建小型別墅設計圖及效果圖,三間三層樓房戶型
占地:114平方米
帶院子的一層農村別墅設計圖,造價不高,養老房首選!
占地:144.819平方米
偏中式徽派的二層房屋農村別墅設計圖,馬頭墻小青瓦
占地:123.36平方米
三層現代別墅設計圖紙,全套私人別墅圖紙(含外觀效果圖)
占地:170.38平方米
新中式農村自建三層別墅房屋施工,12x10米簡潔雅致
占地:121.77平方米
經濟實用二層農村自建房設計圖,新中式風格12x11米
占地:114平方米
推薦:10套新農村自建房設計圖,2026年最新設計
閱讀次數:4825737次
100套鄉村別墅圖片大全,2026年最新設計
閱讀次數:2492203次
6款農村蓋一層平房的設計圖,10萬元就能建起來
閱讀次數:1852637次
這11個一層農村自建房別墅火爆了朋友圈!我最喜歡戶型十!你呢
閱讀次數:750268次
農村6萬元建一層小別墅圖,你敢相信嗎
閱讀次數:567686次
農村5萬塊就能自建房,6套普通房子設計圖分享,你沒看錯!
閱讀次數:419410次
8套農村漂亮三間平房圖片,非常適合在農村修建!
閱讀次數:411197次
農村自建房化糞池怎么做?附方案及施工過程
閱讀次數:391783次
農村一層三間平房設計圖,告別土氣養老房,讓人忍不住點贊
閱讀次數:350581次
新農村二層樓房圖片造價12萬,挑一套回家建房吧!
閱讀次數:349126次
