
|
游歷的地方越多,你就越覺得家鄉的一畝三分地土地是最舒適的。雖然說村外的世界是最繁榮的,但對大多數農村人來說,生活和工作是最好的選擇。村里的人想出去,村外的人想進來就是這樣,年紀越來越大。因此建造一個滿意的房子,已經成為最重要的事情,新中式住宅是最受歡迎的,本期小化編帶給大家分享五個新中式別墅設計圖集感興趣的朋友一起來看看! 別墅圖一展示:占地面積:12m*12m,146.433平方米左右;
正面效果圖
鳥瞰效果圖
側面效果圖
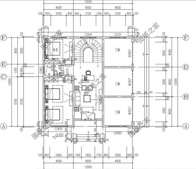
一層平面圖
二層平面圖 二層戶型:臥室(帶衣帽間,衛生間)、衣帽間(帶書房)、臥室x2、衛生間、露臺、陽臺; 別墅圖二展示:占地面積:14.3m*11.8m,116.02平方米左右;
正面效果圖
鳥瞰效果圖
側面效果圖
一層平面圖
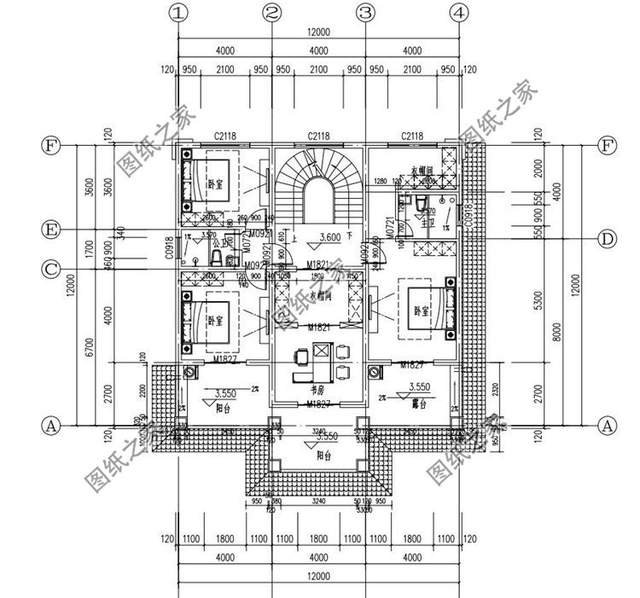
二層平面圖 二層戶型:起居室、臥室(帶衛生間)、臥室x2、衛生間、露臺、陽臺; 別墅圖三展示:占地面積:15.8m*11.8m,175平方米左右; 建筑層高:二層; 建筑高度:10.2米(含屋頂);
正面效果圖
鳥瞰效果圖
側面效果圖 設計功能:
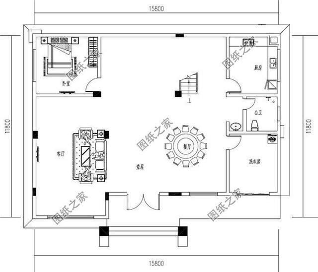
一層戶型圖 一層戶型:堂屋、客廳、廚房、餐廳、臥室、衛生間、洗衣房;
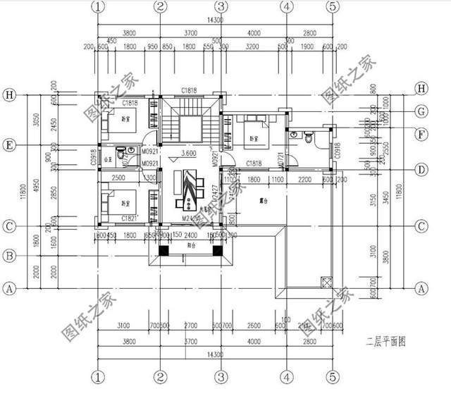
二層戶型圖 二層戶型:客廳、臥室(帶衛生間)、臥室x2、衛生間、露臺; 別墅圖四展示:占地面積:10.8m*11.8m,108平方米左右; 建筑層高:二層; 建筑高度:9.67米(含屋頂);
別墅效果圖 設計功能:
一層戶型圖 一層戶型:客廳、廚房、餐廳、臥室、衛生間;
二層戶型圖 二層戶型:起居室、客廳、臥室x3、衛生間、陽臺; 別墅圖五展示:占地面積:18.26m*15.26m,269.83平方米左右; 建筑層高:二層; 建筑高度:11.25米(含屋頂);
別墅效果圖 設計功能:
一層戶型圖 一層戶型:堂屋、客廳、廚房、餐廳、書房、臥室(帶衛生間)x2;
二層戶型圖 二層戶型:客廳上空、起居室、臥室x4、臥室(帶衛生間)、衛生間、陽臺; 圖紙之家-專注農村別墅/自建房設計18年,集合國內200余位經驗豐富的設計師,被評為口碑最好的農村建筑設計公司! |

面寬20米農村自建房設計圖一層設計圖,五開間養老戶型
占地:194平方米
二層半房子設計圖及效果圖,客廳中空,南北通透
占地:160平方米
農村15萬元二層小樓設計圖,15萬農村兩層小別墅圖片
占地:120平方米
時尚一層別墅圖,一層這樣蓋房最漂亮
占地:160平方米
帶車庫新農村二層四間別墅設計效果圖帶全套建筑施工圖,217平方
占地:217.21平方米
二層雙拼別墅外觀效果圖及施工圖,帶露臺,14乘12米
占地:168平方米
鄉下建房一層半戶型圖,占地160平米,帶閣樓
占地:多種戶型
中式四合院農村自建房設計圖,白墻黛瓦,四水歸堂
占地:137.72平方米
面寬8米也能建別墅,小面寬農村三層別墅設計圖
占地:93.83平方米
150平米簡歐三層農村別墅設計圖,低調又奢華
占地:151.2平方米
兩層平屋頂帶地下室別墅設計方案(全套自建房施工圖+效果圖)
占地:152.55平方米
古典韻味的四層房屋設計圖,占地140平米左右,這樣的外觀配上紅
占地:140平方米
120平方米帶地下室三層復式別墅戶型圖,現代風格
占地:120.78平方米左
新農村自建20萬二層小樓外觀圖及戶型圖,簡單大方,漂亮接地氣
占地:130平方米
高端三層別墅設計圖紙,客廳中空,帶地下室,設置多個套間
占地:220平方米
10×12米三層別墅戶型,挑空大客廳設計,圈粉無數的爆款方案
占地:120平方米
樓中樓客廳挑高二層別墅設計圖,復式別墅方案推薦
占地:122平方米
135平復式別墅房屋設計圖,外觀時尚、漂亮
占地:135平方米
120平米左右農村房屋設計圖占地面積適宜,外觀舒適大氣
占地:120平方米
方正對稱二層農村自建別墅施工圖,經濟實用舒適大氣
占地:129.6平方米
推薦:10套新農村自建房設計圖,2026年最新設計
閱讀次數:4825737次
100套鄉村別墅圖片大全,2026年最新設計
閱讀次數:2492203次
6款農村蓋一層平房的設計圖,10萬元就能建起來
閱讀次數:1852637次
這11個一層農村自建房別墅火爆了朋友圈!我最喜歡戶型十!你呢
閱讀次數:750268次
農村6萬元建一層小別墅圖,你敢相信嗎
閱讀次數:567686次
農村5萬塊就能自建房,6套普通房子設計圖分享,你沒看錯!
閱讀次數:419410次
8套農村漂亮三間平房圖片,非常適合在農村修建!
閱讀次數:411197次
農村自建房化糞池怎么做?附方案及施工過程
閱讀次數:391783次
農村一層三間平房設計圖,告別土氣養老房,讓人忍不住點贊
閱讀次數:350581次
新農村二層樓房圖片造價12萬,挑一套回家建房吧!
閱讀次數:349126次
