
|
我非常喜歡一段話:永遠不要和別人比較生活,追求不同,每個人都有自己的生活方式,快樂就大笑,累了就休息,老百姓的生活不就是圖個安安穩穩。 這樣的生活方式是不是你們每個人的夢寐以求的生活,城市的鋼筋水泥、汽車發動機的轟鳴聲使得自己常常懷念在老家生活的日子,秀麗的景色,熱情的鄰里街坊,如果快節奏的生活使你不太習慣可以回到老家發展的,現在農村也在我們肉眼可見的速度快速發展中,一棟棟小樓房排列在一起形成一條風景線為建設新鄉村奉獻了不少。本期小編就給大家推薦幾款農村二層別墅,希望每個人都能過上自己想要的生活! 別墅圖紙一:占地面積:11m*12.8m,91平方米左右;
正面效果圖
鳥瞰效果圖
側面效果圖
一層戶型圖
二層戶型圖 二層戶型:臥室(帶衛生間、衣帽間)x4 別墅圖紙二:占地面積:12.18m*8.98m,88.46平方米左右; 建筑層高:二層; 建筑高度:9.19米(含屋頂);
別墅效果圖 設計功能:
一層戶型圖 一層戶型:客廳、臥室x3、衛生間;
二層戶型圖 二層戶型:客廳、臥室x4、衛生間、陽臺; 閣樓戶型:臥室; 別墅圖紙三:占地面積:11.1m*8.82m,94.43平方米左右;
別墅效果圖
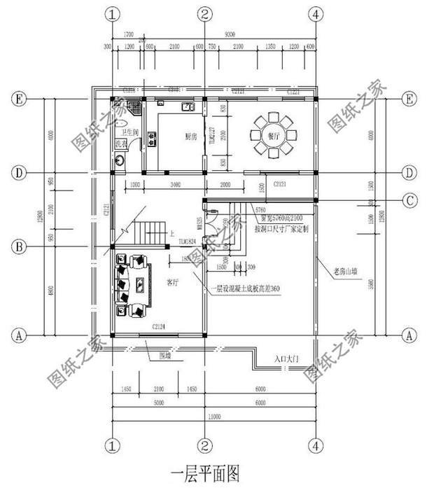
一層平面圖
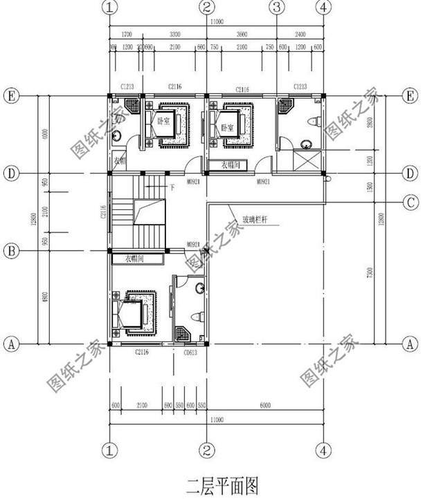
二層平面圖 二層戶型:客廳、臥室(帶衛生間)、臥室x2、衛生間、陽臺; 別墅圖紙四:占地面積:10.01m*9.9m,99.77平方米左右; 建筑層高:二層; 建筑高度:10.51米(含屋頂);
別墅效果圖 設計功能:
一層戶型圖 一層戶型:客廳、廚房、餐廳、茶室、臥室、衛生間;
二層戶型圖 二層戶型:娛樂室、書房、臥室x4、衛生間、陽臺; 別墅圖紙五:占地面積:10.36m*9.26m,92.12平方米左右; 建筑層高:二層; 建筑高度:9.454米(含屋頂);
別墅效果圖 設計功能:
一層平面圖 一層戶型:客廳、廚房、餐廳、臥室、衛生間;
二層平面圖 二層戶型:客廳、書房、臥室(帶衣帽間、衛生間)、臥室x2、衛生間、陽臺; 以上就是本期小編帶給大家的全部內容了感興趣的小伙伴們別忘了要收藏關注呦~!我會繼續帶給大家不一樣的建房知識,希望大家都能夠喜歡! 圖紙之家-專注農村別墅/自建房設計18年,集合國內200余位經驗豐富的設計師,被評為口碑最好的農村建筑設計公司! |

中式古風別墅設計圖,一層三合院設計,經濟舒適,時尚與傳統的
占地:275.7平方米
五間二層別墅設計圖紙,樓梯設計的無比大氣
占地:300平方米
帶小院新農村房屋設計圖紙,三層別墅推薦
占地:115平方米
120平方米新農村房屋設計圖紙,新中式效果圖,3層住宅設計方案
占地:120平方米
帶陽光房的二層簡歐別墅圖紙,戶型經典實用
占地:147.2平方米
100平方米新農村二層別墅設計圖紙,帶屋頂露臺
占地:100平方米
農村二層中式戶型設計圖,造型古香古色,建好絕對是地標
占地:245.39平方米
農村自建三層別墅設計圖,開間17米進深13米,外觀對稱設計
占地:187.6平方米
120平農村三層房屋設計圖,含外觀圖片
占地:120平方米
四層豪華別墅設計圖及效果圖,高端房屋設計方案
占地:250平方米
農村三層帶地下室住宅設計圖及圖片,房內設計了兩個套間
占地:210平方米
一層四合院別墅,中式庭院寬綽大氣,這樣的合院養老最合適
占地:396平方米
實用農村10萬一層小別墅戶型圖及圖紙,全套施工圖
占地:多種面積
三層帶車庫樓中樓建房別墅圖紙,占地130平米左右,戶型室內布局
占地:130平方米
三層農村自建房別墅設計圖紙,大廳中空,外觀高端大氣
占地:230平方米
12米×10米左右一層別墅平房戶型圖及設計圖,造價低
占地:110平方米
帶地下室二層雙拼別墅設計圖,兄弟和睦又省錢,全家人都滿意!
占地:308平方米
150平方米自建現代二層別墅施工設計圖帶外觀圖,15x10米
占地:多戶型可選
110平左右二層小洋樓設計圖,含效果圖片
占地:108平方米
推薦:10套新農村自建房設計圖,2026年最新設計
閱讀次數:4825737次
100套鄉村別墅圖片大全,2026年最新設計
閱讀次數:2492203次
6款農村蓋一層平房的設計圖,10萬元就能建起來
閱讀次數:1852637次
這11個一層農村自建房別墅火爆了朋友圈!我最喜歡戶型十!你呢
閱讀次數:750268次
農村6萬元建一層小別墅圖,你敢相信嗎
閱讀次數:567686次
農村5萬塊就能自建房,6套普通房子設計圖分享,你沒看錯!
閱讀次數:419410次
8套農村漂亮三間平房圖片,非常適合在農村修建!
閱讀次數:411197次
農村自建房化糞池怎么做?附方案及施工過程
閱讀次數:391783次
農村一層三間平房設計圖,告別土氣養老房,讓人忍不住點贊
閱讀次數:350581次
新農村二層樓房圖片造價12萬,挑一套回家建房吧!
閱讀次數:349126次
