
|
農村自建房已經是很普遍的事情,家里收入充足,生活開始富裕,家家戶戶也就開始建起新房。而自建房好處很多,面積大,居住舒適,環境優美,如果還帶有院子,那就更完美了。 每家每戶的喜好不同,建出來的房子,不管是從外觀還是布局都有所差異,所以建房還是要從自身需求出發。 農村建房一般蓋個一兩層也就夠了,但也有例外,人丁興旺的家庭顯然不適用,碰巧家里宅基地又只有一塊,這時就得考慮蓋三層或者三層以上,這樣既可以滿足自家需求,來個親戚朋友也不會尷尬。 1 蒙特印象
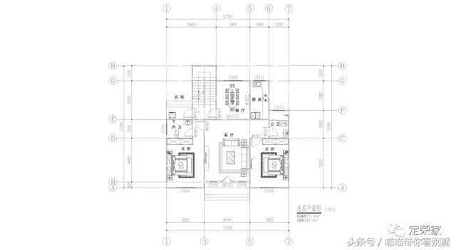
建筑面積:630.60m² 類型:私人訂制 室內布局:十室六廳六衛 外墻材料:水泥纖維掛板,文化石 屋頂材料:歐式瀝青瓦 2 安和居
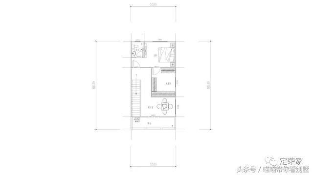
建筑面積:330.13m² 類型:私人訂制 室內布局:八室三廳五衛 外墻材料:水泥纖維掛板,文化石 屋頂材料:歐式瀝青瓦 3 賽爾福里奇
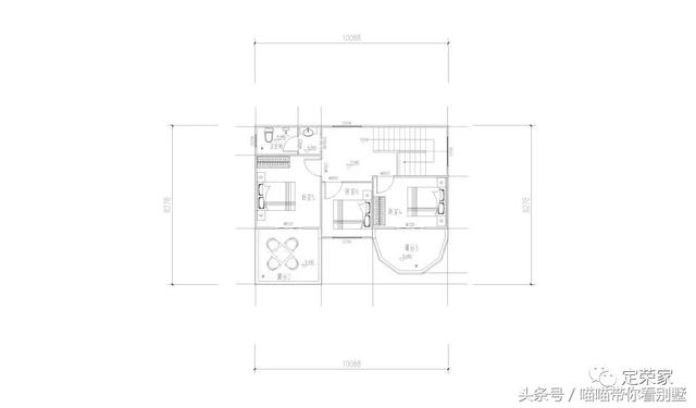
建筑面積:213.86m² 類型:私人訂制 室內布局:五室一廳二衛 外墻材料:水泥纖維掛板,文化石 屋頂材料:歐式瀝青瓦 4 山水郡
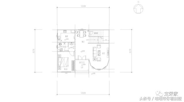
建筑面積:348.80m² 類型:私人訂制 室內布局:十室三廳六衛 外墻材料:水泥纖維掛板,文化石 屋頂材料:歐式瀝青瓦 5 頤景苑
建筑面積:277.92m² 類型:私人訂制 室內布局:七室三廳四衛一廚 外墻材料:水泥纖維掛板,文化石 屋頂材料:歐式瀝青瓦 6 桑提亞納
建筑面積:338.80m² 類型:私人訂制 室內布局:七室二廳四衛一廚 外墻材料:水泥纖維掛板,文化石 屋頂材料:歐式瀝青瓦 7 蘭喬圣菲系列
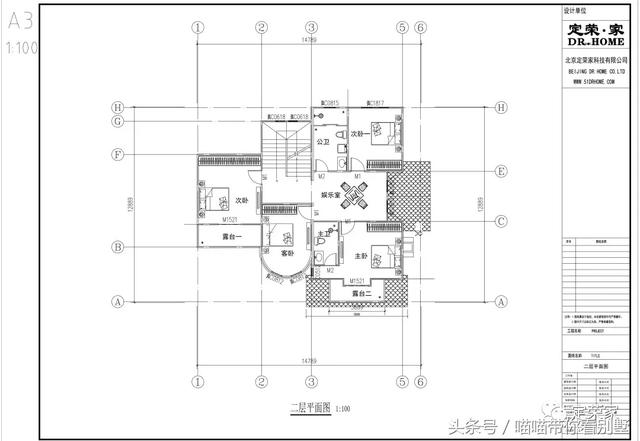
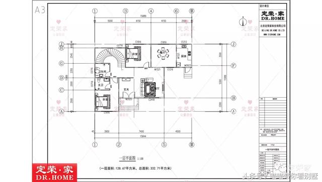
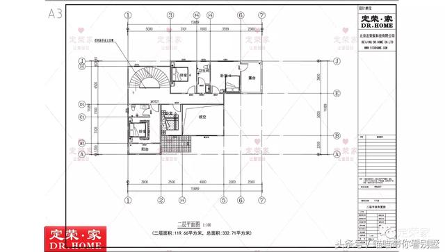
建筑面積:332.71m² 類型:私人訂制 室內布局:九室兩廳五衛 外墻材料:水泥纖維掛板,文化石 屋頂材料:歐式瀝青瓦 8 巴薩羅那
建筑面積:265.05m² 類型:私人訂制 室內布局:五室四廳三衛 外墻材料:水泥纖維掛板,文化石 屋頂材料:歐式瀝青瓦 9 洛薩斯
建筑面積:341.57m² 類型:私人訂制 室內布局:十室三廳六衛 外墻材料:水泥纖維掛板,文化石 屋頂材料:歐式瀝青瓦 10 林語麗舍
建筑面積:216.94m² 類型:私人訂制 室內布局:六室三廳三衛兩廚 外墻材料:水泥纖維掛板,文化石 屋頂材料:歐式瀝青瓦 11 潘州墅
建筑面積:288.10m² 類型:私人訂制 室內布局:六室三廳三衛 外墻材料:水泥纖維掛板,文化石 屋頂材料:歐式瀝青瓦 12 玉墅臨風
建筑面積:185.81m² 類型:私人訂制 室內布局:四室二廳三衛 外墻材料:水泥纖維掛板,文化石 屋頂材料:歐式瀝青瓦 圖紙之家-專注農村別墅/自建房設計18年,集合國內200余位經驗豐富的設計師,被評為口碑最好的農村建筑設計公司! |

農村小型四合院設計效果圖及施工圖,傳統中式,四面建房
占地:220平方米
150平米簡單大方的三層農村自建房設計圖,坡層頂,色彩鮮明,布
占地:150平方米
150平米簡歐三層農村別墅設計圖,低調又奢華
占地:151.2平方米
2026二層農村新款別墅設計圖,帶車庫,帶鍋爐房
占地:180平方米
農村五開間大平層設計圖,主體15萬就能建。
占地:182.43平方米
好看的三層樓別墅圖片及全套建筑施工設計圖紙
占地:多種戶型
二層現代別墅設計圖及效果圖,外觀美觀,大氣
占地:195平方米
歐式風格三層自建房設計圖,外觀高端大氣,彰顯業主的高貴品質
占地:180平方米
新農村140平米樓房圖四層獨棟別墅設計圖,簡歐外觀風格設計
占地:141平方米
帶配房的二層農村小別墅設計圖,大方適用,耐看經濟
占地:152.28平方米
農村中式二層4開間別墅圖紙設計方案圖,帶車庫戶型
占地:198平方米
歐式漂亮農村三層自建房設計圖紙,兩個戶型方案可選
占地:多戶型可選
300平四層別墅房屋設計圖,含外觀效果圖,大面積、多臥室
占地:261平方米
80平方米鄉村一層半帶閣樓自建別墅設計圖,帶車庫
占地:80平方米
農村三層半別墅設計圖及外觀效果圖,三層半樓房設計方案推薦
占地:100平方米
高端三層獨棟歐式別墅效果圖,帶大衛生間,CAD全套施工設計圖
占地:158平方米
帶小院新農村房屋設計圖紙,三層別墅推薦
占地:115平方米
二層小別墅設計方案圖,平頂設計帶cad施工圖和外觀效果圖
占地:147平方米
26萬二層平頂別墅樓設計圖,客廳中空,占地120平米
占地:120平方米
三間三層樓房設計圖紙,復試的設計,漂亮的一塌糊涂
占地:175平方米
推薦:10套新農村自建房設計圖,2026年最新設計
閱讀次數:4825737次
100套鄉村別墅圖片大全,2026年最新設計
閱讀次數:2492203次
6款農村蓋一層平房的設計圖,10萬元就能建起來
閱讀次數:1852637次
這11個一層農村自建房別墅火爆了朋友圈!我最喜歡戶型十!你呢
閱讀次數:750268次
農村6萬元建一層小別墅圖,你敢相信嗎
閱讀次數:567686次
農村5萬塊就能自建房,6套普通房子設計圖分享,你沒看錯!
閱讀次數:419410次
8套農村漂亮三間平房圖片,非常適合在農村修建!
閱讀次數:411197次
農村自建房化糞池怎么做?附方案及施工過程
閱讀次數:391783次
農村一層三間平房設計圖,告別土氣養老房,讓人忍不住點贊
閱讀次數:350581次
新農村二層樓房圖片造價12萬,挑一套回家建房吧!
閱讀次數:349126次
