
|
這幾天沒事就有人來詢問最新中式別墅圖紙,現在市場上不再是歐式一枝獨秀,吐槽最多的反而是歐式別墅,中式別墅特別是中式合院一經推出就廣受推崇,其實我也很好奇現在宅基地那么緊張,你們哪來的錢哪來的地蓋真大的房子,告訴我也讓我回鄉蓋一套。玩笑歸玩笑,之前也寫過很多中式別墅的戶型,這套別墅也是別人拿圖來找的,樣子不必多說就是古樸大氣好看,室內布局規矩方正符合農村習慣,風水上大問題沒犯,值得點贊的好戶型,看得我都想回村養老了!一起來看看吧!
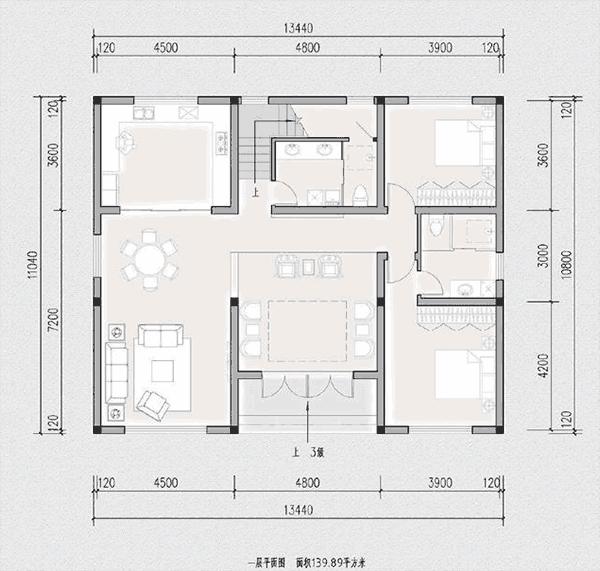
中式別墅古樸大氣的感覺在這套別墅里完美體現,融合了現代風格的簡約大氣,顯得更時尚更符合我們這代人的審美。開間:13.44米,進深:11.04米。院子尺寸可自行調整哦!
各個角度都很大氣逼人。
一層設計有2室2廳2衛1廚,客廳與餐廳相連,除了客廳外還設計有堂屋,很符合農村風俗,更方便招待,老人房設計有獨立衛浴方便老人生活。
二樓設計有3室,公共區域面積較大,樓梯上來就是一個衣帽間,左側起居室,方便家人朋友之間溝通互動,中央設計有一個露臺,農村必備實用滿分。 圖紙之家-專注農村別墅/自建房設計18年,集合國內200余位經驗豐富的設計師,被評為口碑最好的農村建筑設計公司! |

新中式農村自建三層別墅房屋施工,12x10米簡潔雅致
占地:121.77平方米
15萬左右一層農村自建房設計圖,一家住剛剛好
占地:131.33平方米
兄弟合建中式一層四合院設計圖,古樸雅致代代相傳,永不過時
占地:468.03平方米
面寬不到8米的農村二層半別墅建筑圖紙及效果圖
占地:96平方米左右
130平左右三層樓房設計圖,新農村住宅自建推薦
占地:128平方米
豪華歐式三層別墅住宅設計圖紙,占地面積150平方米
占地:150平方米
高端大氣三層半別墅客廳挑空設計,豪華農村自建房圖
占地:179.52平方米
新中式二層別墅設計圖,農村最適合建的兩層小樓,13×12米
占地:143平方米
二層小別墅外觀圖片,別墅圖紙,外觀時尚,布局簡單實用,挑空
占地:230平方米
簡單實用的四層農村自建房屋設計圖,占地100平米左右
占地:100平方米
簡單實用的二層雙拼別墅設計圖,總占地150平米左右,雙拼房屋
占地:150平方米MB
35萬內三層自建別墅設計圖,外觀美觀,戶型舒適
占地:135平方米
實用型農村120平米二層樓房設計圖,小巧美觀實用
占地:120平方米
農村三層自建房子圖紙設計方案,開間11米左右
占地:151.96平方米
獨棟兩層歐式別墅設計圖紙(效果圖+建筑施工圖)
占地:125平方米
新中式風格農村自建房二層設計圖,15.5米乘12米
占地:186平方米
普通簡單的平屋頂二層房子設計,造價低施工簡單
占地:151.04平方米
適合農村自建四合院圖片,中式二層四合院別墅設計施工圖紙
占地:232平方米
2026新款農村四層別墅設計圖紙戶型圖,帶挑空客廳
占地:150平方米
150平米簡歐三層農村別墅設計圖,低調又奢華
占地:151.2平方米
推薦:10套新農村自建房設計圖,2026年最新設計
閱讀次數:4825737次
100套鄉村別墅圖片大全,2026年最新設計
閱讀次數:2492203次
6款農村蓋一層平房的設計圖,10萬元就能建起來
閱讀次數:1852637次
這11個一層農村自建房別墅火爆了朋友圈!我最喜歡戶型十!你呢
閱讀次數:750268次
農村6萬元建一層小別墅圖,你敢相信嗎
閱讀次數:567686次
農村5萬塊就能自建房,6套普通房子設計圖分享,你沒看錯!
閱讀次數:419410次
8套農村漂亮三間平房圖片,非常適合在農村修建!
閱讀次數:411197次
農村自建房化糞池怎么做?附方案及施工過程
閱讀次數:391783次
農村一層三間平房設計圖,告別土氣養老房,讓人忍不住點贊
閱讀次數:350581次
新農村二層樓房圖片造價12萬,挑一套回家建房吧!
閱讀次數:349126次
