
|
在農村建房,有他自己的特色,農村人就喜歡,簡單大方,還有就是內部空間布局合理合適,用起來方便舒心,所以一般在建房之前都會選擇實用一點的戶型,而今天小編就要給大家分享這樣一款簡單實用的戶型,但是這款戶型不光光是簡單實用,而且外觀的設計還是非常的有氣質的,大家一起來看看吧!
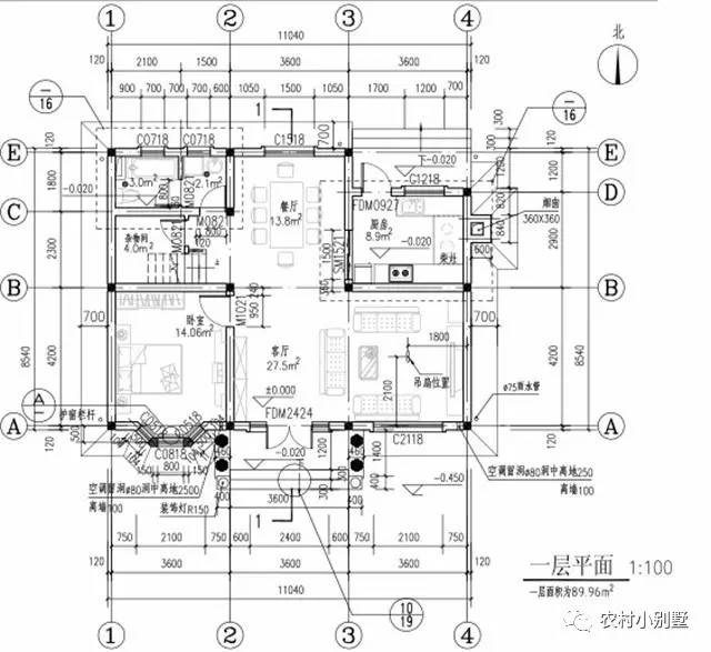
農村別墅基本信息 ? 占地尺寸:11.04X8.54米 ? 占地面積:89.96平方米 ? 建筑面積:185.92平方米 ? 建筑結構:磚混結構 ?參考造價:16.3萬元
本套圖紙有施工圖64張,效果圖1張,包打印(效果圖為彩圖,施工圖為A3大圖)
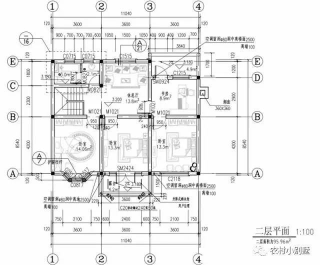
本套戶型為單家獨院式,門面寬11.04米*進深8.54米,占地面積 89.96平方米,總建筑面積185.92平方米,一層建筑面積89.96平米,二層建筑面積95.96平米。
平面圖展示: 一樓設有客廳、餐廳、廚房、雜物間、1間臥室、衛生間;
二樓設有3間臥室、衛生間、書房、陽臺、休息廳。
本戶型采用平屋頂與坡屋頂相結合,外觀造型古樸大方,色彩清新淡雅,富有古色古香的韻味;房間尺度設計適宜,空間利用率高,明廚明衛,各使用空間都有較好的采光通風。
圖紙之家-專注農村別墅/自建房設計18年,集合國內200余位經驗豐富的設計師,被評為口碑最好的農村建筑設計公司! |

90平方米新農村住宅設計二層小別墅設計圖紙11x9米
占地:90平方米
二層復式農村豪宅別墅設計圖,挑空客廳旋轉樓梯高級感十足
占地:215.43平方米
130平方米復式三層別墅房屋設計圖,含外觀效果圖
占地:130平方米
平頂新中式三層農村別墅設計圖,最適合鄉村自建占地150平米
占地:150.35平方米
時尚現代的二層農村別墅設計圖,年輕人建房的不二之選
占地:131.76平方米
面寬18米二層新中式別墅圖紙設計,復式戶型,帶堂屋
占地:269.83平方米
新中式風格二層住宅設計圖,農村自建房不土氣
占地:144.5平方米
農村18萬元二層小樓圖,占地120平面,戶型緊湊合理
占地:120平方米
帶車庫徽派風格三層別墅房屋設計圖,新農村住宅設計推薦
占地:140平方米
農村中式一層三合院自建房設計圖,古典大氣白墻黛瓦
占地:177.62平方米
農村15萬元二層小樓圖,經濟實用小別墅設計圖
占地:105平方米
七字型一層平房別墅設計圖紙,15X16米
占地:177.9平方米
新農村三層小別墅設計圖紙,占地160平左右,好看不貴
占地:160平方米
新中式農村50萬三層別墅款式圖,占地面積160平米左右
占地:150平方米
鄉村20萬內三層別墅房屋設計圖,面積適中、戶型經典
占地:100平方米
新農村中式一層三合院效果圖及全套設計圖,喜歡合院的有福了
占地:118平方米
仿古中式三合院設計圖紙,帶堂屋,適合農村自建
占地:173平方米
時尚大方的農村二層自建房屋設計圖紙,占地120平米左右
占地:120平米
鄉村兩層半150平帶閣樓別墅房屋設計圖,客廳大、臥室多
占地:150平方米
新農村帶陽臺三層樓房圖紙,占地180平米左右,豪華大氣
占地:180平方米
推薦:10套新農村自建房設計圖,2026年最新設計
閱讀次數:4825737次
100套鄉村別墅圖片大全,2026年最新設計
閱讀次數:2492203次
6款農村蓋一層平房的設計圖,10萬元就能建起來
閱讀次數:1852637次
這11個一層農村自建房別墅火爆了朋友圈!我最喜歡戶型十!你呢
閱讀次數:750268次
農村6萬元建一層小別墅圖,你敢相信嗎
閱讀次數:567686次
農村5萬塊就能自建房,6套普通房子設計圖分享,你沒看錯!
閱讀次數:419410次
8套農村漂亮三間平房圖片,非常適合在農村修建!
閱讀次數:411197次
農村自建房化糞池怎么做?附方案及施工過程
閱讀次數:391783次
農村一層三間平房設計圖,告別土氣養老房,讓人忍不住點贊
閱讀次數:350581次
新農村二層樓房圖片造價12萬,挑一套回家建房吧!
閱讀次數:349126次
