
|
許多農村的村民在城市賺了錢就打算在老家建棟高端大氣的別墅,因為是在自己的宅基地上建房子,所有覺得很自由,但咱老百姓回農村建房,首先考慮實用,夠住、舒適是基本需求;其次是造價,有多少錢就建多大房;再次是美觀,好看才能掙臉面。所以今天給大家推薦這款占地130多平的三層帶車庫小洋房,實用好看造價也不高。
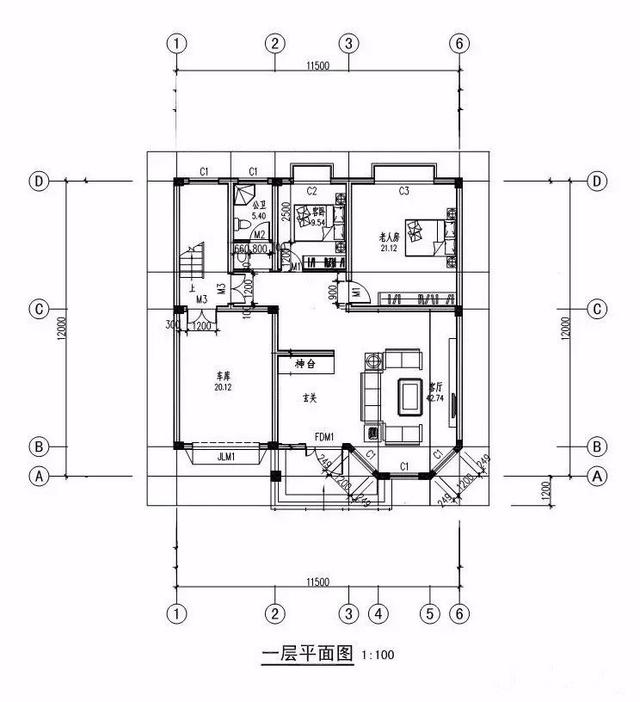
現代別墅風格,占地面積145平方米,一層二層一個大的落地窗,使室內光線效果很好,各層獨立大客廳,室內面積更加寬敞,房屋底層貼的耐臟瓷磚,上層淺色瓷磚搭配白色線條,給人眼前一亮的感覺。
占地尺寸:11.5米*12米;占地面積:138平方米;建筑面積:36平方米;建筑結構:框架結構
一層設有車庫、玄關、客廳、老人房、客臥、衛生間,入戶視野開闊,給人以一種不拘小節的通透感;除了必要的功能區外,還獨設有一間老人房方便長輩生活,同時入口玄關設神臺,符合農村生活傳統美德。 當然,如果家中平常客人來往不多,也可以當客臥改為廚房,方便日常起居。
二層:主臥(帶衛生間)、書房、陽臺、客廳、餐廳、廚房、衛生間,將餐廚搬到二樓與大客廳相融,獨立為套房形式,而且主臥室配備獨立衛生間,私密性好,非常符合現代農村年輕一代的居家需求。
三層:主臥(帶衛生間)、次臥、衛生間和休閑露臺,閑暇時間來這里遠眺風景嬉笑玩鬧也是一件不錯的事情。 圖紙之家-專注農村別墅/自建房設計18年,集合國內200余位經驗豐富的設計師,被評為口碑最好的農村建筑設計公司! |

造價65萬左右的三層歐式別墅房屋設計施工CAD圖紙及效果圖
占地:178平方米
二層樓房圖片及施工圖紙,占地160平米左右,帶車庫
占地:160平方米
帶車庫的農村四合院別墅設計圖,富貴人家的象征,日子越過越興
占地:219.24平方米
農村兩層新中式自建房屋設計圖,受歡迎的帶小配房戶型
占地:多戶型可選
三層小別墅40萬造價,大氣農村三層新中式自建房設計圖紙
占地:171.656平方米
180平方米新農村自建二層小別墅設計圖及效果圖,15X13米
占地:183平方米
簡單漂亮實用的三層自建房設計圖,帶露臺,占地170平方米
占地:170平方米
一層新中式三合院設計,建好城里大平層都不香了
占地:294.12平方米
農村一層中式三合院別墅設計圖,戶型經典實用,19米乘15米
占地:243.21平方米
歐式大戶型三層農村房屋設計圖紙,歐式住宅圖推薦
占地:178平方米
網紅款兩層別墅圖紙設計圖,外觀簡單好看,后面不開窗
占地:171平方米左右
320平方米高端農村帶車庫四合院別墅設計圖,徽派韻味十足
占地:320.89平方米
鄉村一層平房設計圖,面寬13米平面圖及造型圖
占地:170平方米
16米X12米四開間二層別墅設計圖,造型美觀經濟實用
占地:198平方米
130平新農村二層住宅設計圖,外觀精致、漂亮
占地:130平方米
150平米二層鄉村小別墅圖,戶型合理,外觀清新淡雅
占地:150平方米
高端豪華三層別墅住宅設計方案圖,歐式外觀風格
占地:170平方米
新徽派農村三層小別墅設計圖,白墻黛瓦中式風,12米乘11米
占地:115.46平方米
農村27萬二層自建別墅設計圖,占地140平米左右,戶型極好
占地:140平方米
農村25萬別墅款式二層自建房設計圖,外觀簡約大氣
占地:多種戶型
推薦:10套新農村自建房設計圖,2026年最新設計
閱讀次數:4825737次
100套鄉村別墅圖片大全,2026年最新設計
閱讀次數:2492203次
6款農村蓋一層平房的設計圖,10萬元就能建起來
閱讀次數:1852637次
這11個一層農村自建房別墅火爆了朋友圈!我最喜歡戶型十!你呢
閱讀次數:750268次
農村6萬元建一層小別墅圖,你敢相信嗎
閱讀次數:567686次
農村5萬塊就能自建房,6套普通房子設計圖分享,你沒看錯!
閱讀次數:419410次
8套農村漂亮三間平房圖片,非常適合在農村修建!
閱讀次數:411197次
農村自建房化糞池怎么做?附方案及施工過程
閱讀次數:391783次
農村一層三間平房設計圖,告別土氣養老房,讓人忍不住點贊
閱讀次數:350581次
新農村二層樓房圖片造價12萬,挑一套回家建房吧!
閱讀次數:349126次
