
|
中國人從頭到尾都非常重視家庭情感,人們常說兄弟,有福可能不需要分享,但有困難必須分享。兄弟,簡潔明了幾個字卻承載著很多的情感!手足兄弟,是對家庭情感的另一種詮釋!即使現在兩兄弟都在城里買了房但是還是想回到老家建上一棟別墅,一起建房既能互相幫襯著還省錢。針對家庭有兩兄弟的本期小編就整理出來了五套雙拼別墅設計,感興趣的小伙伴們一起來看看吧! 別墅圖一展示:占地面積:18.76m*10.26m,187.033平方米左右,單戶93.52平方米左右; 建筑層高:三層; 建筑高度:12.051米(含屋頂);
別墅效果圖 設計功能:
一層戶型圖 一層:堂屋、客廳、餐廳、廚房、臥室、洗漱臺;
二層戶型圖 二層:起居室、臥室x3、衛生間、陽臺;
三層戶型圖 三層:臥室x2、衛生間、露臺x3; 別墅圖二展示:占地面積:37.76m*12.66m,490平方米左右,單棟245平方米左右;
別墅效果圖
一層平面圖
別墅圖三展示:占地面積:10.96m*12.21m,139.442平方米左右,單戶69.721平左右;
別墅效果圖
一層戶型圖
二層戶型圖 二層:臥室(帶衣帽間、小臥室)、臥室、衛生間;
三層戶型圖 三層:臥室x2、娛樂室、洗手間、露臺; 別墅圖四展示:占地面積:16.8m*13.5m,207.25平方米左右,單戶103.6平左右; 建筑層高:三層; 建筑高度:13.195米(含屋頂);
別墅效果圖 設計功能:
一層戶型圖 一層:客廳、餐廳、廚房、臥室(帶衛生間)、衛生間;
二層戶型圖 二層:臥室(帶衣帽間)、臥室(帶衣帽間、衛生間)x2、臥室、衛生間、陽臺;
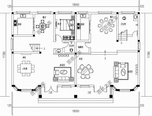
三層戶型圖 三層:臥室(帶衣帽間、衛生間)臥室、衛生間、共用露臺; 別墅圖五展示:占地面積:18m*11.78m,186平方米左右,單戶93平左右; 建筑層高:三層; 建筑高度:12.57米(含屋頂);
正面效果圖
鳥瞰效果圖
側面效果圖 設計功能:
一層戶型圖 一層:門廳x2、茶室、起居室x2、神位、八仙桌、餐廳x2、廚房x2、臥室、衛生間x2、儲藏間;
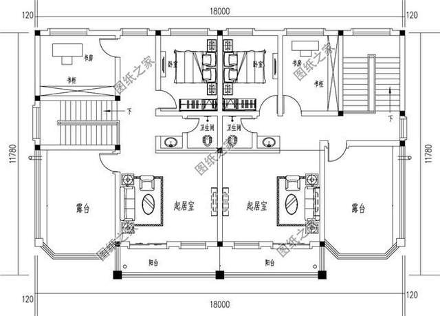
二層戶型圖 二層:起居室、臥室(帶衛生間)、臥室x6、衛生間x2、陽臺;
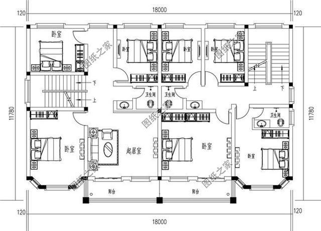
三層戶型圖 三層:起居室x2、臥室x2、書房x2、衛生間x2、陽臺、露臺x2; 圖紙之家-專注農村別墅/自建房設計18年,集合國內200余位經驗豐富的設計師,被評為口碑最好的農村建筑設計公司! |

二層樓房設計圖,占地120平米左右,符合現代農村的建房政策
占地:120平方米
在農村30萬可以建造的三層別墅款式,帶別墅外觀圖片
占地:138平方米
精致農村別墅圖,150平米一層三合院設計,四臥二廳舒適宜居
占地:149.43平方米
南方新農村三層別墅設計圖紙,含效果圖,帶車庫
占地:120平方米
實用農村三層房屋設計圖紙,效果圖+全套施工圖
占地:113平方米
偏徽派風格民居三層農村住宅設計圖,白墻黛瓦的古雅簡潔
占地:101.01平方米
農村一層中式別墅設計圖,經典大氣,布局舒適,面寬20米
占地:192.92平方米
四層農村別墅設計圖,一二層都有廚房和餐廳的戶型方案
占地:128.52平方米
14米乘10米農村二層別墅新款,外觀對稱設計,經久耐看!
占地:140平方米
一層半小別墅設計圖帶效果圖,農村自建帶閣樓一層半方案
占地:155平方米
11x13米兩層半現代風別墅設計圖,??看過的都后悔建早了!
占地:126.02平方米
160平方米新農村三層半別墅設計圖11X16米65萬以內
占地:160平方米
12.8乘10米一層平房別墅設計圖,四室二廳南北通透
占地:128.85平方米
最火現代風三層半別墅設計圖,時尚簡約寬敞舒適
占地:169平方米
農村一層四開間自建別墅,美麗住宅如詩如畫里15米乘10米
占地:142平方米
占地120平米清新脫俗簡單二層別墅設計方案,含效果圖
占地:119.01平方米
簡約而不簡單的二層新中式鄉墅設計圖,占地150平左右
占地:150.78平方米
簡單實用新農村三層住宅房屋設計圖,時尚大氣,低調
占地:140平方米
中式古風別墅設計圖,一層三合院設計,經濟舒適,時尚與傳統的
占地:275.7平方米
100平二層精致小別墅房屋設計圖,外觀精致、漂亮
占地:100平方米
推薦:10套新農村自建房設計圖,2026年最新設計
閱讀次數:4825737次
100套鄉村別墅圖片大全,2026年最新設計
閱讀次數:2492203次
6款農村蓋一層平房的設計圖,10萬元就能建起來
閱讀次數:1852637次
這11個一層農村自建房別墅火爆了朋友圈!我最喜歡戶型十!你呢
閱讀次數:750268次
農村6萬元建一層小別墅圖,你敢相信嗎
閱讀次數:567686次
農村5萬塊就能自建房,6套普通房子設計圖分享,你沒看錯!
閱讀次數:419410次
8套農村漂亮三間平房圖片,非常適合在農村修建!
閱讀次數:411197次
農村自建房化糞池怎么做?附方案及施工過程
閱讀次數:391783次
農村一層三間平房設計圖,告別土氣養老房,讓人忍不住點贊
閱讀次數:350581次
新農村二層樓房圖片造價12萬,挑一套回家建房吧!
閱讀次數:349126次
