
|
時尚、接地氣的小別墅誰都喜歡,要是華而不實老百姓不會花那個冤枉錢去建造,畢竟房子建起來為的就是居住,要是外秀內實用那肯定就再好不過了。為了而滿足大家的需求,圖紙之家今天就為大家分享這樣一套戶型。
此別墅占地18.34X12.34米,占地面積191平方米,建筑面積330平方米,共設5室 3廳 3衛 1廚 1棋牌室 1洗衣房 1雜物間 1檐廊 2陽臺 2露臺 此鄉村別墅是一個田園風格的房子設計圖,設計師利用清新溫暖的建筑立面配色以及簡潔流暢的建筑線條,傳達著鄉村悠然富足的生活狀態;大面積門窗,將美麗風光引入室內,暢想生活與自然的和諧關系;對稱的坡屋頂,凹凸有致的別墅外觀造型,以及金屬元素的運用,將別墅的時尚感和現代感表現的淋漓盡致。 立面圖
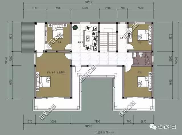
平面布局圖: 此戶型坐北朝南,南北通透,可以說是一個很不錯的戶型。進門是走廊,避免開門見山,左拐是客廳,右拐是臥室,客廳和臥室凸出來,三面采光,日照率充足。棋牌室、洗衣房、餐廳、廚房、儲藏室,都設置在了方便進出的一層。
二層陽臺連通,形成室外空中走廊。中間是客廳、兩側是4個臥室,戶型與一層上下工整對齊,方便施工。
戶型經濟技術指標:
二層別墅毛坯房工程預算: 此別墅磚混結構和框架結構都可以建造,就毛坯房而言,磚混結構需要27~31.6萬元,框架結構需要39~46.8萬元。
這套寧靜、田園的鄉村別墅怎么樣?是不是很贊? 圖紙之家-專注農村別墅/自建房設計18年,集合國內200余位經驗豐富的設計師,被評為口碑最好的農村建筑設計公司! |

經典的農村三層小樓房設計圖,外觀圖片時尚、精致
占地:100平方米
2026新農村三層雙拼房屋設計圖紙平面圖與效果圖,帶堂屋
占地:190平方米
農村自建超漂亮中式四合院別墅設計圖,22X25米
占地:473平方米
2026最受歡迎的三層農村小別墅設計圖紙,占地155平方米
占地:155平方米
185平米自建三層別墅房屋施工設計圖紙及效果圖
占地:187平方米
農村最好看兩層小樓圖及全套CAD施工圖紙,新中式風格,簡潔大氣
占地:150平方米
帶堂屋新農村三層房屋別墅設計圖紙,帶外觀效果圖
占地:214平方米
農村三層私人住宅設計圖紙及效果圖,帶車庫,帶露臺
占地:150平方米
占地110平米兩層半農村房子設計圖,簡單實用
占地:110.25平方米
農村自建房設計圖,三層房屋設計圖及效果圖
占地:120平方米
最漂亮的一層平房圖片及設計圖,造價18萬左右,結構簡單易于施
占地:186平方米
160平方米新農村自建二層樓房設計圖紙及效果圖,15x11米
占地:160平方米
農村三間二層別墅設計圖,外觀簡約左右對稱
占地:170.06平方米
新農村實用三層帶露臺房屋設計圖紙,占地110平方米
占地:109平方米
占地200平農村二層自建房設計方案戶型,陽面臥室多
占地:208平方米
最美建筑四合院別墅設計方案,大氣經典,開間19米
占地:168.61平方米
最新三層農村別墅設計圖紙,推薦農村自建
占地:106平方米
新農村三層房屋cad建筑設計圖紙,磚混結構
占地:138平方米
新農村二層帶庭院的小別墅設計圖及效果圖
占地:137平方米
一層鄉村自建別墅設計方案推薦,含外觀圖片
占地:148平方米
推薦:10套新農村自建房設計圖,2026年最新設計
閱讀次數:4825737次
100套鄉村別墅圖片大全,2026年最新設計
閱讀次數:2492203次
6款農村蓋一層平房的設計圖,10萬元就能建起來
閱讀次數:1852637次
這11個一層農村自建房別墅火爆了朋友圈!我最喜歡戶型十!你呢
閱讀次數:750268次
農村6萬元建一層小別墅圖,你敢相信嗎
閱讀次數:567686次
農村5萬塊就能自建房,6套普通房子設計圖分享,你沒看錯!
閱讀次數:419410次
8套農村漂亮三間平房圖片,非常適合在農村修建!
閱讀次數:411197次
農村自建房化糞池怎么做?附方案及施工過程
閱讀次數:391783次
農村一層三間平房設計圖,告別土氣養老房,讓人忍不住點贊
閱讀次數:350581次
新農村二層樓房圖片造價12萬,挑一套回家建房吧!
閱讀次數:349126次
