
|
宅基地大能設計出好看的別墅戶型很正常,要是小面寬還能將別墅設計的精致時尚,那可就是一門藝術加技術了。近幾日,圖紙之家的設計師就設計了這么一套面寬較小的新款農村三層樓房圖片,此別墅占地8.7X15.1米,建筑面積342平方米,共設6室3廳 5衛 1廚 1陽臺 1露臺。
此別墅為經典歐式建筑造型,因為宅基地面寬小、進深大,為了讓每間居室都能更好的接受太陽光的照射,設計師將東西兩側也設計了窗戶,讓空氣更好的流通,并且還將客廳設計成了挑空的,讓別墅顯得奢華大氣。設計者將生活的實用性考慮其中,從而設計出更為適合農村建造的鄉村別墅。 立面圖:
平面布局圖: 戶型整體設計規整無禁忌,入戶玄關等設計,以便優化風水,玄關右側是一個會客廳,挑空的,小戶型因為挑空客廳的設計卻讓居室顯得寬敞明亮。為了方便老人居住方便,還特此在一層設計了老人房。
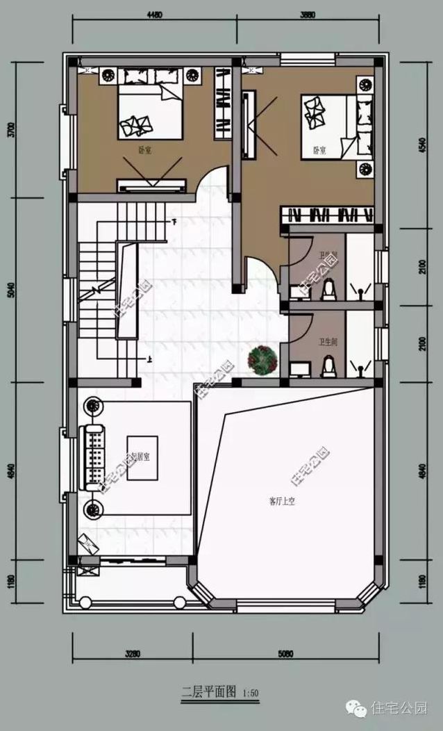
樓梯設計為旋轉樓梯,節約室內空間面積。在二層設有2臥室、2衛生間和一個起居室。由于一層挑空客廳的設計,雖然戶型較長,居室也不會感覺憋悶不通暢。
三層設有三個臥室,臥室主次分明,主臥室配備衣帽間獨立衛生間,西側配有露臺,獨立性強,居住感受好。
戶型經濟技術指標:
三層別墅毛坯房工程預算:
雖然此宅基地只有8米多塊,但是在圖紙之家設計師的手下,小別墅卻不乏時尚感的所在,是不是很贊呢?要是喜歡就免費拿去建嘍! 圖紙之家-專注農村別墅/自建房設計18年,集合國內200余位經驗豐富的設計師,被評為口碑最好的農村建筑設計公司! |

中式古風別墅設計圖,一層三合院設計,經濟舒適,時尚與傳統的
占地:275.7平方米
對稱一層農村養老別墅設計方案,室內戶型布局合理,14x12米
占地:141.46平方米
經典三層小別墅設計圖紙(效果圖+全套cad建筑圖),新農村自建
占地:120平方米
精致小巧新農村二層別墅設計圖紙,占地90平米左右,造價15萬左
占地:90平方米
田園風格別墅設計圖紙及效果圖,三層鄉村小別墅設計方案
占地:166.4平方米
20萬左右普通農村房子設計圖,二層簡約小別墅
占地:140平方米
面寬8米也能建別墅,小面寬農村三層別墅設計圖
占地:93.83平方米
二層帶車庫歐式尊貴別墅圖,客廳中空,美觀,大氣,實用
占地:300平方米
高端三層豪宅別墅設計方案圖,帶地下室,過悠然愜意生活
占地:127.06平方米
140平方米新農村二層自建平屋頂房屋設計圖紙帶外觀效果圖
占地:140平方米左右
最火現代風三層半別墅設計圖,時尚簡約寬敞舒適
占地:169平方米
帶KTV的四開間的二層別墅設計圖,造型美觀經濟實用
占地:240.22平方米
左右對稱的歐式高端三層別墅設計圖,外觀氣派、豪華
占地:200平方米
新農村二層房屋建筑施工圖紙,廚房獨立在配房
占地:107平方米
155平方米二層別墅房屋設計圖,帶獨立車庫
占地:155平方米
歐式豪華三層別墅設計圖,占地面積170平米,高端大氣帶露臺
占地:170平方米
80平方米三層農村自建民房設計圖,小戶型別墅方案
占地:81平方米
徽派120平新農村住宅設計方案,帶外觀效果圖
占地:120平方米
農村四間二層半雙拼樓設計圖,住三帶人都沒有問題!
占地:270平方米
別致美觀的簡歐二層別墅房屋設計圖,含外觀效果圖
占地:145平方米
推薦:10套新農村自建房設計圖,2026年最新設計
閱讀次數:4825737次
100套鄉村別墅圖片大全,2026年最新設計
閱讀次數:2492203次
6款農村蓋一層平房的設計圖,10萬元就能建起來
閱讀次數:1852637次
這11個一層農村自建房別墅火爆了朋友圈!我最喜歡戶型十!你呢
閱讀次數:750268次
農村6萬元建一層小別墅圖,你敢相信嗎
閱讀次數:567686次
農村5萬塊就能自建房,6套普通房子設計圖分享,你沒看錯!
閱讀次數:419410次
8套農村漂亮三間平房圖片,非常適合在農村修建!
閱讀次數:411197次
農村自建房化糞池怎么做?附方案及施工過程
閱讀次數:391783次
農村一層三間平房設計圖,告別土氣養老房,讓人忍不住點贊
閱讀次數:350581次
新農村二層樓房圖片造價12萬,挑一套回家建房吧!
閱讀次數:349126次
