
|
此次圖紙之家出品:農村三層樓房新款圖片。項目位置在云南、別墅占地南北長為16M,東西寬為15.6M。別墅整體地塊為方形。南向為鄉道,寬為4M,北向為村間小路。南面通車,北面不通車。地塊南低北高,高差最高處約為3M,最低處為1.5M。業主為劉先生,委托圖紙之家出品此別墅,希望廣大網友也能提提意見。
半地下室、入戶透視圖
車庫入口透視圖
北面入戶透視圖
西北面透視圖
俯視圖
場地周邊環境 地塊周邊環境為丘陵地帶,地勢整體由西往北逐漸遞增。
周邊道路情況 村里近幾年的新農村建設,道路也逐漸加寬。此道路由西往東通往劉先生的項目用地。
周邊道路情況 道路蜿蜒曲折,景色到還是不錯,養老的最佳選擇。
項目用地旁邊不遠處已建起擋土墻 項目用地為坡地、北面比南面高3M,局部地方以建起擋土墻。業主劉先生用地還是小土丘東西兩面2M出無遮擋。
設計思路整理圖 功能平面圖
半地下室平面圖 地塊南低北高,結合劉先生想在家里弄一個健身房、或者家庭影院的想法。設計上我們做了一個半地下室想法,增加整體功能使用率。在項目用地范圍當中平道路面往下開挖1.5M,作為半地下室。功能結合車庫、酒窖儲藏、家庭影院(健身房),設計上預留一個大衛生間及一個洗衣房。如果是健身出汗則可把衣服洗完直接扔進洗衣房。半地下室設置一個休息間。運動累了不想爬樓梯那就直接在這里休息了。
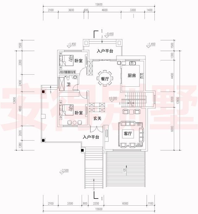
一層功能平面結合當地風俗習慣以及一些風水問題,在入戶的地方都設置了玄關。在臥室上面,劉先生還有60多歲的母親在,因此在一層平面設置了2個臥室,方便起居生活,也方便照顧老母親。衛生間的設置,因業主個人不喜歡在臥室里面套衛生間,原因為避諱一些東西。因此在一樓設置一個衛生間。餐廳、客廳順風通暢,功能分區、干濕分區、動靜分區分明、居住比較舒適。
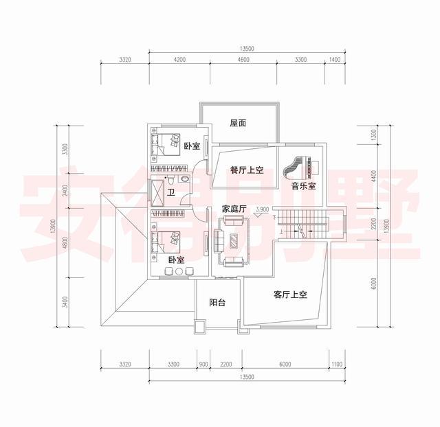
二樓的功能設計1、把客廳、餐廳挑空使得一樓空間舒適大方。2、給業主的兩個女兒預留房間,兩個女兒都已成家,希望在家里有一個房間。在二樓的設計上設置兩個臥室。平常寒暑假女兒帶著外甥、外甥女來老家度假、玩耍。在二樓隔出一個音樂室方便自己的孫女學音樂、也方便寒暑假外甥、外甥女過來培養些興趣愛好。
三樓的設計是給業主的兒子設計,整一層為一個大套間。南北兩面都預留露臺,使得空間非常開闊。又是在農村,早上起來每天都神清氣爽。
屋頂平面圖 屋面結合造型的需求設計上運用四坡頂,往外挑檐600,作為排水溝也方便未來屋面檢修。
南立面圖
北立面圖
東立面圖
圖紙之家-專注農村別墅/自建房設計18年,集合國內200余位經驗豐富的設計師,被評為口碑最好的農村建筑設計公司! |

中國最好看的二層農村房子圖片及施工圖紙,20萬現代風格
占地:130平方米
230平方米新農村二層自建別墅設計圖紙帶外觀圖,20X11米
占地:227平方米
35萬左右的農村小別墅設計圖及效果圖,新中式風格
占地:137平方米
農村兩層新中式別墅圖紙設計圖,外觀圖片大氣,21萬左右
占地:108平方米
農村四層樓房設計圖,含外觀圖片,自建四層房屋推薦
占地:140平方米
農村四層雙拼別墅房屋設計圖,造型現代、大氣
占地:220平方米
新農村二層歐式別墅設計圖,外觀漂亮,主體18萬起建
占地:115.2平方米
一層農村小平房設計圖,功能齊全造價低,兩款戶型可選
占地:多戶型可選
130平帶閣樓兩層半別墅房屋設計圖,含外觀效果圖
占地:130平方米
2026年新款別墅外觀圖及全套施工圖紙,占地面積13×10米
占地:130平方米
農村兩間三層房屋設計圖,含外觀圖片
占地:120平方米
17X12米三層雙拼別墅自建房設計圖,歐式風格,戶型方正
占地:190平方米
130多平方米新農村三層別墅建筑設計圖及效果圖
占地:133平方米左右
農村二層L戶型農村別墅!設計圖簡約時尚又大氣,住著超舒適
占地:170.55平方米
農村四間一層房屋設計圖,160平方米,用來養老正合適!
占地:160平方米
15米面寬田園風一層別墅!戶型新穎太吸睛,看過都想建
占地:141.13平方米
帶地下室三層別墅設計圖紙(含外觀效果圖),別墅設計方案
占地:134平方米
新中式三層樓房設計圖紙,帶地下室,地下車庫,帶電梯
占地:230平方米
鄉村最美四合院設計圖及外觀效果圖片,國人的理想住宅
占地:280.62平方米
80平農村房屋設計圖,小戶型自建房三層別墅推薦
占地:80平方米
推薦:10套新農村自建房設計圖,2026年最新設計
閱讀次數:4825737次
100套鄉村別墅圖片大全,2026年最新設計
閱讀次數:2492203次
6款農村蓋一層平房的設計圖,10萬元就能建起來
閱讀次數:1852637次
這11個一層農村自建房別墅火爆了朋友圈!我最喜歡戶型十!你呢
閱讀次數:750268次
農村6萬元建一層小別墅圖,你敢相信嗎
閱讀次數:567686次
農村5萬塊就能自建房,6套普通房子設計圖分享,你沒看錯!
閱讀次數:419410次
8套農村漂亮三間平房圖片,非常適合在農村修建!
閱讀次數:411197次
農村自建房化糞池怎么做?附方案及施工過程
閱讀次數:391783次
農村一層三間平房設計圖,告別土氣養老房,讓人忍不住點贊
閱讀次數:350581次
新農村二層樓房圖片造價12萬,挑一套回家建房吧!
閱讀次數:349126次
