
|
一戶人一個家,我們往往百般向往著自己別樣的院落而忽略了與周圍環境的相融。在農村,在自家的宅基地,想要建座標新立異的房子,看似“我的房子我做主”,是件簡單的事,實際卻不是這樣,農村建房往往是兩戶一體,兩座房型不一致也會達不到整體美觀。如果與鄰居意見達成一致,或者是兄弟一起建房,我們為您準備了雙拼別墅的房型,快拉你的小伙伴一起看看吧。 昨天看到網友留言讓小編多推薦一些雙拼戶型,這點小小的要求,肯定要第一時間滿足,今天小編就能大家推薦4套樓房設計圖,大家參考建房吧。 戶型一
戶型一 占地尺寸:22.8m*10.2m 占地面積:239.66㎡ 建筑面積:599.15㎡
戶型二
戶型二 占地尺寸:16.2m*16.5m 占地面積:239.5㎡ 建筑面積:495㎡
戶型三
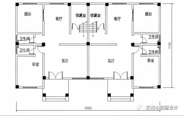
戶型三 開間: 19米 進深: 11.1米 占地面積: 203.04平方米 建筑面積: 625.05平方米
設計功能 一 層:客廳、臥室(附衛生間)、廚房、餐廳、儲藏室、衛生間 二 層:客廳、臥室(附衛生間,陽臺)、2臥室、衛生間 三 層:客廳、臥室、娛樂室、衛生間、露臺 戶型四
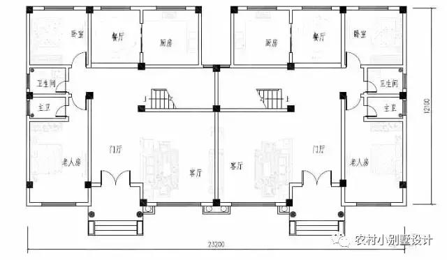
戶型四 開間: 23.2米 進深: 12.1米 占地面積: 274.14平方米 建筑面積: 732.07平方米
設計功能 一 層:客廳(中空)、老人房(附衛生間)、臥室、廚房、餐廳、衛生間 二 層:起居室、主臥(附衛生間,陽臺)、2臥室、書房、衛生間 三 層:健身房、主臥(附衛生間,陽臺)、臥室、衛生間、露臺 雙拼別墅是由兩個單元的別墅拼聯組成的單棟別墅,它是聯排別墅與獨棟別墅之間的中間產品。它講究和諧、對稱之美,能給人以寧靜、平衡的空間意境,深受人們的喜愛。 圖紙之家-專注農村別墅/自建房設計18年,集合國內200余位經驗豐富的設計師,被評為口碑最好的農村建筑設計公司! |

160平方米左右二層自建別墅設計圖,對稱設計,23萬建好
占地:157平方米左右
230平方米豪華歐式二層別墅CAD設計圖紙帶外觀效果圖,21.6×15米
占地:236平方米
二層農村自建小別墅設計圖,歐式風格,占地160平方米
占地:160平方米
經典小戶型雙拼二層新農村房屋住宅設計圖,含效果圖
占地:80平方米
一層半中式合院別墅設計圖,帶配房,有庭有院有品位
占地:135平方米左右
簡單實用新農村三層住宅房屋設計圖,時尚大氣,低調
占地:140平方米
14x11米一層平房戶型設計圖,帶前后門設計,好看不貴還實用!
占地:143.59平方米
鄉村兄弟小戶型雙拼一層房屋設計圖,雙拼別墅格局精煉,實用性
占地:160平方米
簡單質樸三層新農村小別墅設計圖紙,別墅圖片,戶型簡單合理實
占地:120平方米
最新款農村三層自建房戶型設計圖及外觀圖片照片,鄉村蓋房精選
占地:112.56平方米
兩層樓房設計圖,兩層新農村樓房圖紙,外觀典雅古樸
占地:140平方米
新式160平方米農村三層樓房設計圖,客廳中空
占地:160平方米
七字型設計新中式一層別墅設計圖,類合院風格
占地:267.3平方米
農村15萬元二層小樓設計圖,15萬農村兩層小別墅圖片
占地:120平方米
高端歐式四層別墅房屋施工圖紙及效果圖,圓弧大窗
占地:170平方米
12米面寬一層農村別墅設計圖,實用又舒適
占地:110.41平方米
2026新款戶型三層新農村別墅房屋設計圖紙,外觀對稱
占地:160平方米
80平方米三層農村自建民房設計圖,小戶型別墅方案
占地:81平方米
新農村雙拼別墅全套設計圖方案及效果圖,餐廳廚房獨立設計
占地:338.02平方米
150平米左右歐式三層鄉村別墅設計圖,客廳中空
占地:150平方米
推薦:10套新農村自建房設計圖,2026年最新設計
閱讀次數:4825737次
100套鄉村別墅圖片大全,2026年最新設計
閱讀次數:2492203次
6款農村蓋一層平房的設計圖,10萬元就能建起來
閱讀次數:1852637次
這11個一層農村自建房別墅火爆了朋友圈!我最喜歡戶型十!你呢
閱讀次數:750268次
農村6萬元建一層小別墅圖,你敢相信嗎
閱讀次數:567686次
農村5萬塊就能自建房,6套普通房子設計圖分享,你沒看錯!
閱讀次數:419410次
8套農村漂亮三間平房圖片,非常適合在農村修建!
閱讀次數:411197次
農村自建房化糞池怎么做?附方案及施工過程
閱讀次數:391783次
農村一層三間平房設計圖,告別土氣養老房,讓人忍不住點贊
閱讀次數:350581次
新農村二層樓房圖片造價12萬,挑一套回家建房吧!
閱讀次數:349126次
