
|
此樓房設計圖為歐式豪華別墅,帶地下室,室內設計合理
在外觀色彩上,設計師還是采用了很傳統的歐式下面文化石上面真石漆的搭配,典型的羅馬柱,是歐式代表的符號,符合了歐式線條的構造,是建筑看起來相當的提拔有力, 下面是具體的施工圖
平面布局是相當的合理,就怕很多建房者沒有那么大的宅基地,下面是立面圖
立面造型還是很豐富多彩的,您看這套怎么樣 圖紙之家-專注農村別墅/自建房設計18年,集合國內200余位經驗豐富的設計師,被評為口碑最好的農村建筑設計公司! |

農村二層半別墅設計圖,簡單實用,造價低
占地:140平方米
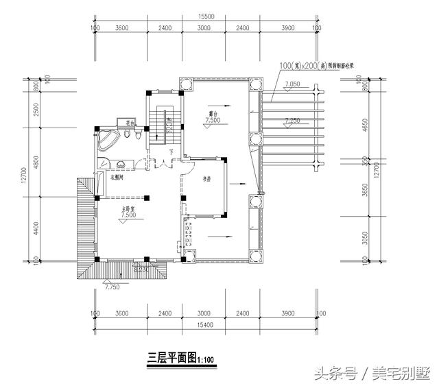
三間三層樓房設計圖紙,復試的設計,漂亮的一塌糊涂
占地:175平方米
140平三層復式別墅設計圖及外觀效果圖
占地:140平方米
農村7字形漂亮房子設計圖及外觀效果圖
占地:189.3平方米
時尚耐看現代二層農村別墅設計圖,14米×11米,年輕人建房的不二
占地:138.125平方米
100平方米二層中式小別墅設計圖紙級效果圖片
占地:99平方米
歐式復式型三層別墅施工設計圖紙及效果圖大全
占地:164平方米
三層樓房設計圖紙含效果圖,外觀造型高低錯落,別致大方
占地:152.4平方米
2026二層農村新款別墅設計圖,帶車庫,帶鍋爐房
占地:180平方米
140平方米歐式三層別墅建筑設計圖紙,復式結構
占地:140平方米
占地70平米一層小戶型別墅設計圖,功能齊全造價低,耐看實用
占地:70.19平方米
160平方米經典鄉村二層房屋設計圖紙
占地:160平方米
帶車庫的新中式風格一層別墅設計圖,鳥語花香回家建房
占地:184平方米
170平方米農村二層房屋設計施工圖,外觀圖時尚、好看
占地:172平方米
15×12米一層農村寶藏戶型,適合養老房,看完鄰居直接要圖紙!
占地:180平方米
160平米三層別墅設計圖,功能齊全,外觀漂亮,適合和父母同住
占地:160平方米
10套農村經典二層樓房設計圖紙,多戶型,多尺寸,總有一款適合
占地:多種
仿古中式三合院設計圖紙,帶堂屋,適合農村自建
占地:173平方米
一層平房小面積雙拼房屋住宅設計圖,造價低,面積適中
占地:245.7平方米
南方新農村三層別墅設計圖紙,含效果圖,帶車庫
占地:120平方米
推薦:10套新農村自建房設計圖,2026年最新設計
閱讀次數:4825737次
100套鄉村別墅圖片大全,2026年最新設計
閱讀次數:2492203次
6款農村蓋一層平房的設計圖,10萬元就能建起來
閱讀次數:1852637次
這11個一層農村自建房別墅火爆了朋友圈!我最喜歡戶型十!你呢
閱讀次數:750268次
農村6萬元建一層小別墅圖,你敢相信嗎
閱讀次數:567686次
農村5萬塊就能自建房,6套普通房子設計圖分享,你沒看錯!
閱讀次數:419410次
8套農村漂亮三間平房圖片,非常適合在農村修建!
閱讀次數:411197次
農村自建房化糞池怎么做?附方案及施工過程
閱讀次數:391783次
農村一層三間平房設計圖,告別土氣養老房,讓人忍不住點贊
閱讀次數:350581次
新農村二層樓房圖片造價12萬,挑一套回家建房吧!
閱讀次數:349126次
