
|
不管生活多么的忙碌,我們也要停下想走的腳步,欣賞欣賞周圍的風景;不管生活多么的勞累,我們也絕對不能降低自己的生活品質,畢竟,生活除了奮斗,還有享受。比如我們對一座房屋設計的追求,我們不僅要追求它的外觀精美,更追求它室內布局的獨立、寧靜和舒適的氛圍。
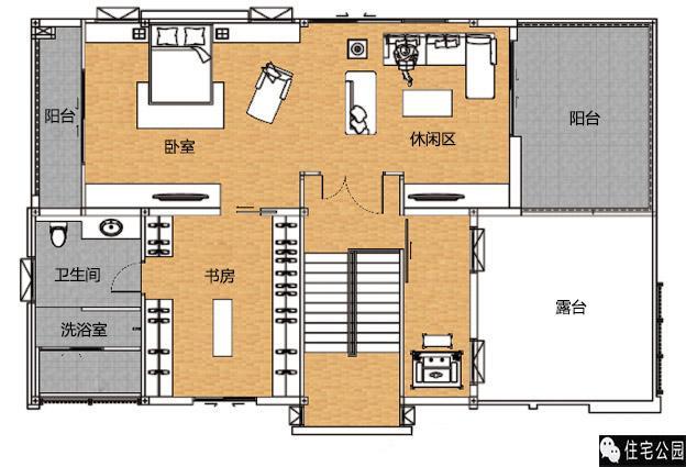
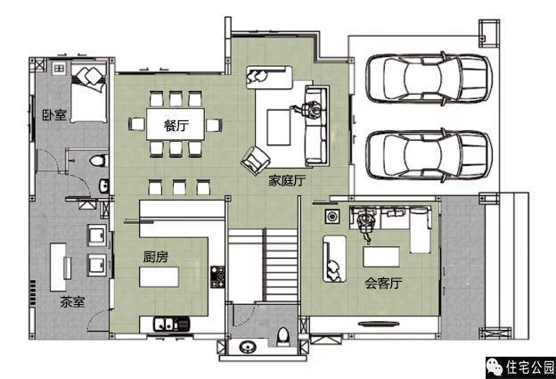
設計師的這套作品就是一套高品質的設計。它是一套三層的建筑,外觀設計簡約卻不簡單,很有設計感,房子左側豎線條的金屬元素和右側露臺上玻璃窗的護欄對別墅起到了很好的藝術裝飾的作用,增加了別墅的時代感和現代感。 平面布局圖:
此戶型動靜分明,采光好,布局舒適。一層主要為動態區域,不僅有會客廳,還有家庭廳。為了方便老人的行動,一層設置一個老人房,并且臥室與活動區域分開,同時配有茶室,方便居室的主人品茶、休息。
二三層安靜,多為臥室設計。一層一個臥室,二層兩個臥室,中間共用一個衛生間,三層一個臥室,共4個臥室。二三層的臥室獨立性好、私密性好,沒見臥室都有獨立的書房、衛生間、洗浴室和露臺。三層的居室更是舒適,還有一個休閑區,三層還有配套的茶室和露臺,綠色盆栽、多肉植物都可以擺放在這里,環境好,生活寧靜。
如果你追求獨立、高品質的生活,這個戶型是不是有可以借鑒的呢? 圖紙之家-專注農村別墅/自建房設計18年,集合國內200余位經驗豐富的設計師,被評為口碑最好的農村建筑設計公司! |

簡歐二層別墅設計圖紙含效果圖片,寶家鄉墅經典風格
占地:137.34平方米
田園風格別墅設計圖及外觀圖片,樓中樓結構
占地:140平方米
經典二層農村自建房屋別墅設計圖紙,占地110平米左右
占地:110平方米
帶電梯的農村歐式雙拼三層豪宅別墅設計圖,樓梯電梯共用
占地:268.448平方米
110平左右三間兩層農村別墅房屋設計圖,含外觀效果圖
占地:107平方米
人字坡紅磚一層別墅設計圖,簡約低調超實用,這樣的房子人人能
占地:136.51平方米
經濟實用二層復式樓房設計圖 ,占地150平方米,造價25萬左右
占地:150平方米
140平歐式二層半帶露臺的獨棟別墅圖片,含全套設計圖
占地:140平方米
四開間2層別墅設計圖,外觀圖配色清新淡雅,占地200平米
占地:200平方米
12×12米農村二層經濟型自建房設計圖,設計了6間臥室
占地:140平方米
歐式二層別墅平面圖,全套cad設計圖紙和外觀效果圖
占地:202平方米
開間14米!農村養老一層別墅神戶型,爸媽住得安心,施工隊狂贊太
占地:160.86平方米
后面帶小院的農村房屋設計圖,適合鄉村自建
占地:300平方米
鄉村二層半別墅圖紙設計,歐式風格、錯落有致,150平左右
占地:149.76
120平方米農村四層別墅設計圖,含全套施工圖
占地:120平方米
20萬以內二層歐式小別墅設計方案,全套施工圖+效果圖
占地:115平方米
農村一層中式三合院別墅設計圖,戶型經典實用,19米乘15米
占地:243.21平方米
農村120平三層樓房設計圖,造型現代,帶屋頂花園
占地:120平方米
農村簡單雙拼小戶型,簡單適用,客廳中空,總占地210平方米
占地:210平方米
鄉下建房一層平房設計圖紙及戶型圖,占地150平米左右
占地:150平方米
推薦:10套新農村自建房設計圖,2026年最新設計
閱讀次數:4825737次
100套鄉村別墅圖片大全,2026年最新設計
閱讀次數:2492203次
6款農村蓋一層平房的設計圖,10萬元就能建起來
閱讀次數:1852637次
這11個一層農村自建房別墅火爆了朋友圈!我最喜歡戶型十!你呢
閱讀次數:750268次
農村6萬元建一層小別墅圖,你敢相信嗎
閱讀次數:567686次
農村5萬塊就能自建房,6套普通房子設計圖分享,你沒看錯!
閱讀次數:419410次
8套農村漂亮三間平房圖片,非常適合在農村修建!
閱讀次數:411197次
農村自建房化糞池怎么做?附方案及施工過程
閱讀次數:391783次
農村一層三間平房設計圖,告別土氣養老房,讓人忍不住點贊
閱讀次數:350581次
新農村二層樓房圖片造價12萬,挑一套回家建房吧!
閱讀次數:349126次
