
|
這款二層別墅設計圖框架結構、磚混結構都有,開間進深16米 × 9.9米 ,首層占地面積150.90㎡,總建筑面積276.13㎡, 建筑高度8.350米,主體造價28萬 左右。一層設有3廳1臥1廚1衛1車庫,二層設有1廳4臥1衛1陽臺1露臺。屬于歐式田園風格,一層外墻采用仿古文化石裝飾,自然古樸,二層采用淡黃色墻磚貼面,外觀簡約大氣,有車庫,大露臺、飄窗等功能,室內布局合理,尺寸適宜,功能流暢,空間利用率高。
正面效果圖
背面效果圖 設計功能
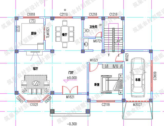
一層平面圖 一 層: 門廳、客廳、餐廳、廚房、臥室、衛生間、車庫 車庫方便停車,車庫的位置還設有進入室內的門,十分方便。 入戶設有門廳,客廳在門廳左邊,客廳處有飄窗,擴大客廳空間。三面折窗提供更好的采光效果。 臥室設在南面,采光通風效果佳,適合安排老人居住,利于家里老人健康。 衛生間外設有盥洗區,使用起來更方便。
二層平面圖 二 層: 客廳(帶陽臺)、臥室×4、衛生間、露臺 客廳帶有陽臺,空間更寬敞明亮,還能欣賞室外美景。露臺設計方便晾曬東西。 4間臥室大小不一,住戶可自由選擇自己的臥室。 圖紙之家-專注農村別墅/自建房設計18年,集合國內200余位經驗豐富的設計師,被評為口碑最好的農村建筑設計公司! |

12×12米農村二層經濟型自建房設計圖,設計了6間臥室
占地:140平方米
120平方米農村漂亮實用的兩層別墅設計圖紙,含外觀圖片
占地:120平方米
120平米農村三層房屋設計圖,客廳中空,戶型合理
占地:120平方米
農村120方三層自建房子圖,好看又不貴的三層農村別墅
占地:120平方米
大氣、簡約三層雙拼別墅設計圖,適合和父母同住,既相互關照又
占地:260平方米
巴洛克風格別墅設計圖紙及效果圖,農村建一棟想低調都難
占地:256平方米左右
100平方米二層中式小別墅設計圖紙級效果圖片
占地:99平方米
農村兄弟合建一層雙拼房別墅圖,對稱設計,工整大方!
占地:170平方米
在農村30萬可以建造的三層別墅款式,帶別墅外觀圖片
占地:138平方米
新款農村三層雙拼聯體別墅戶型圖,客廳中空,單戶120平米左右
占地:240平方米
帶架空層的農村二層別墅設計方案,造型大氣漂亮
占地:176平方米
簡約大氣四開間二層自建房設計圖,16x10米,經典耐看高顏值
占地:160平方米
80平方米新農村三層房屋設計圖,新農村住宅圖紙精選
占地:80平方米
210平左右三層(兩層半)雙拼新農村別墅設計圖紙及外觀效果圖
占地:206.712平方米
新中式三層歐式別墅設計圖,盡顯貴族風范,占地135平
占地:134.37平方米
現代二層農村別墅全套設計圖,大旋轉露臺+超大中空客廳
占地:133平方米
160平方米農村三層別墅CAD設計圖紙及效果圖,13.7x12.6米
占地:160平方米
農村二層半樓房效果圖及全套設計圖紙,自建房簡單實用
占地:121平方米
徽派自建房一層設計圖,七字型設計,獨立餐廚便捷實用
占地:171.65平方米
帶車庫三層自建別墅設計圖紙,客廳中空,外觀洋氣時尚,這款戶
占地:170平方米
推薦:10套新農村自建房設計圖,2026年最新設計
閱讀次數:4825737次
100套鄉村別墅圖片大全,2026年最新設計
閱讀次數:2492203次
6款農村蓋一層平房的設計圖,10萬元就能建起來
閱讀次數:1852637次
這11個一層農村自建房別墅火爆了朋友圈!我最喜歡戶型十!你呢
閱讀次數:750268次
農村6萬元建一層小別墅圖,你敢相信嗎
閱讀次數:567686次
農村5萬塊就能自建房,6套普通房子設計圖分享,你沒看錯!
閱讀次數:419410次
8套農村漂亮三間平房圖片,非常適合在農村修建!
閱讀次數:411197次
農村自建房化糞池怎么做?附方案及施工過程
閱讀次數:391783次
農村一層三間平房設計圖,告別土氣養老房,讓人忍不住點贊
閱讀次數:350581次
新農村二層樓房圖片造價12萬,挑一套回家建房吧!
閱讀次數:349126次
