
|
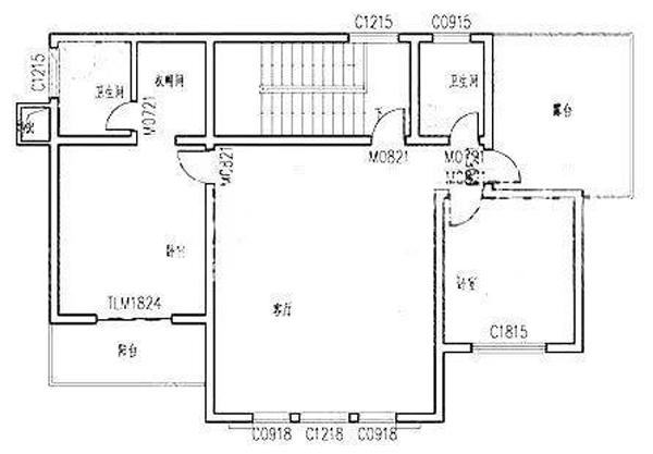
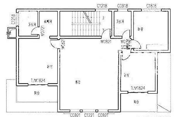
可能很多人會覺得,花幾十萬在農村建房不值得,因為農村的房子沒有升值空間,還不如在城里買套商品房,房價飛漲的同時也等同與投資了。也有不少人覺得農村的房子,那是自己從小成長的地方,把老家的房子建好,自己不管在哪里都不會覺得漂泊。總之對于農村自建房,各有各的想法,我們無法左右。今天給大家分享2款歐式三層農村自建房設計圖,供借鑒參考。 【戶型1】 這款農村自建房設計圖開間14米×進深9.26米,首層占地面積124.87㎡,總建筑面積395.98㎡,主體造價40萬。
本戶型一二層外墻采用黃色墻磚裝飾,三層搭配純白色,色彩鮮艷明快,整棟房子外觀造型富有創意,正立面中間三個拱形窗戶設計,以及左立面的高柱,提升了美感。室內空間劃分明確,動靜合理分區,一層主日常生活功能,二三層主休息功能。 功能設計
一層:堂屋、客廳、餐廳、廚房、儲藏室、衛生間、臥室
二層:客廳、臥室(帶陽臺、衣帽間、衛生間)、臥室(帶陽臺)、臥室、衛生間、客廳
三層:客廳、臥室(帶陽臺、衣帽間、衛生間)、臥室、露臺、衛生間 【戶型2】
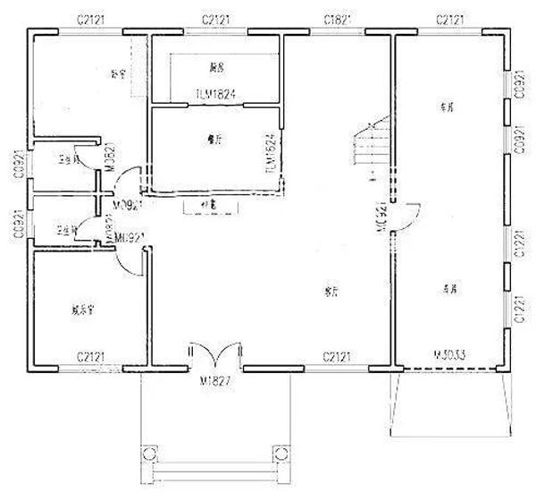
這款農村自建房設計圖開間15.64米×進深11.04米,首層占地面積179.13㎡,總建筑面積574.91㎡,主體造價51萬。 功能設計
一層:車庫、客廳、廚房、餐廳、娛樂室、臥室(帶衛生間)、臥室、衛生間
二層:客廳、臥室(帶衛生間)、臥室、書房(帶陽臺)、臥室、衛生間、陽臺
三層:娛樂室、露臺、主臥(帶衣帽間、衛生間、書房、陽臺)、健身房、臥室、衛生間 圖紙之家-專注農村別墅/自建房設計18年,集合國內200余位經驗豐富的設計師,被評為口碑最好的農村建筑設計公司! |

四合院別墅設計效果圖及平面圖,全套施工圖紙
占地:220平方米
三層歐式豪華別墅設計方案,全套圖紙+效果圖
占地:168平方米
180平方米新農村三層別墅設計圖紙,效果圖+全套cad施工圖
占地:180平方米
現代風格建房圖紙二層別墅設計方案,外觀百看不厭
占地:多戶型可選
簡單大氣二層兄弟雙拼樓房設計圖,外觀簡約
占地:268平方米
二層小型簡單四合院設計圖,戶型方正,左右對稱,傳統文化的傳
占地:470平方米
豪華三層歐式雙拼別墅設計圖紙,雙拼歐式別墅如何設計看這款
占地:258.294平方米
中式徽派二層農村別墅設計圖,白墻黛瓦馬頭墻,永不過時
占地:171平方米
農村自建房三間設計圖,花錢少效果好12米乘9米,經濟適用性價比
占地:108.9平方米
135平方米新農村三層別墅設計圖紙,外觀效果圖很漂亮
占地:134平方米
精致小巧新農村二層別墅設計圖紙,占地90平米左右,造價15萬左
占地:90平方米
農村30萬別墅款式三層設計圖紙,帶地下儲藏室,挑空客廳
占地:110平方米
占地200平米時尚現代三層農村別墅設計圖,簡簡單單百看不厭
占地:202.95平方米
2026新款三層小別墅設計圖,占地150平米,帶地下室
占地:150平方米
新中式農村三層樓房設計圖,帶地下室,主體建筑面積110平米
占地:110平方米
超現代風格平頂別墅設計圖,外觀時尚,80、90很喜歡
占地:112.18平方米
驚艷全村的三層別墅設計圖,12×16米美觀大氣布局超合理
占地:179.8平方米
15萬左右新中式二層別墅設計圖平面圖,占地110平米左右
占地:110平方米
現代風格二層別墅設計圖,外觀時尚、大氣
占地:153平方米
帶車庫三層自建別墅設計圖紙,客廳中空,外觀洋氣時尚,這款戶
占地:170平方米
推薦:10套新農村自建房設計圖,2026年最新設計
閱讀次數:4825737次
100套鄉村別墅圖片大全,2026年最新設計
閱讀次數:2492203次
6款農村蓋一層平房的設計圖,10萬元就能建起來
閱讀次數:1852637次
這11個一層農村自建房別墅火爆了朋友圈!我最喜歡戶型十!你呢
閱讀次數:750268次
農村6萬元建一層小別墅圖,你敢相信嗎
閱讀次數:567686次
農村5萬塊就能自建房,6套普通房子設計圖分享,你沒看錯!
閱讀次數:419410次
8套農村漂亮三間平房圖片,非常適合在農村修建!
閱讀次數:411197次
農村自建房化糞池怎么做?附方案及施工過程
閱讀次數:391783次
農村一層三間平房設計圖,告別土氣養老房,讓人忍不住點贊
閱讀次數:350581次
新農村二層樓房圖片造價12萬,挑一套回家建房吧!
閱讀次數:349126次
