
|
這是一款經濟實用的新款農村三層樓房圖片,尺寸非常大眾化,格局也緊湊,其空間特點尤其適合湖南湖北江西等中部地區的蓋房客戶。
完全對稱的外觀仍然是最經典的,黑白灰的色調加上一些裝飾性浮雕,整體中式簡約實用風格一氣呵成,咋一看不如別人那么起眼,卻越看越有味道,經得起時間的檢驗。
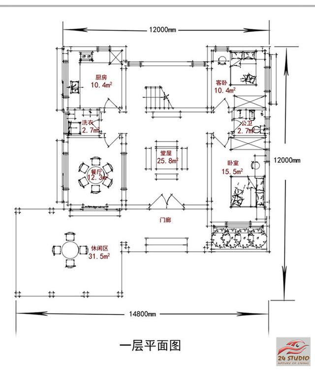
外墻建議采用白色外墻涂料,十年后重新刷一遍又是新的,不像瓷磚,舊了你沒法補。簡約中式的大門古樸莊嚴。陽臺上這些裝飾性的元素選用當地易購的成品預制構件或者瓷磚。
前院、門廊、室外平臺面積均不大,但是有遞進層次,各有分工。陽臺不大,僅限于出來透透氣,對于次臥室來講也夠了。
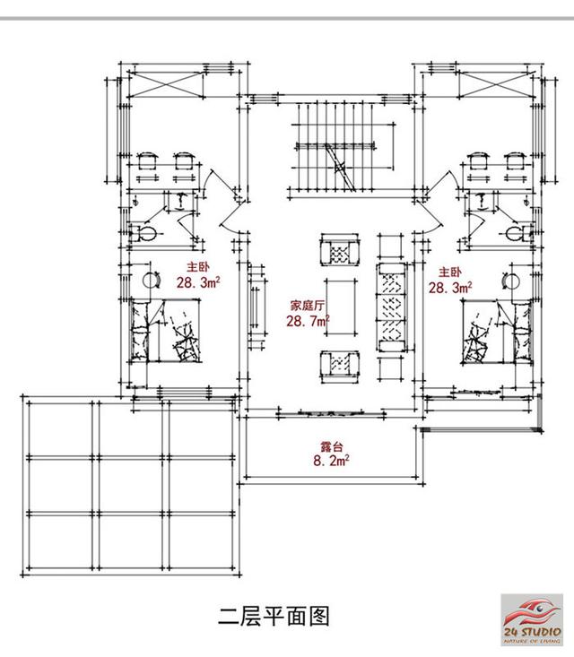
三樓的露臺是全家人室外活動的好去處,亦可當晾曬。
圖紙之家-專注農村別墅/自建房設計18年,集合國內200余位經驗豐富的設計師,被評為口碑最好的農村建筑設計公司! |

150平二層別墅房屋設計圖,現代風格,造型精致
占地:150平方米
農村兩間兩層樓房設計圖,造價15萬左右,獨立的廚房設計,干凈
占地:95平方米
230平(單戶115平)雙拼別墅房屋設計圖及效果圖大全
占地:230平方米
農村二層半帶露臺別墅圖片及設計圖,戶型方案比較經典
占地:123平方米
農村小洋樓設計圖及效果圖,二層樓房設計圖
占地:120平方米
三層平頂現代別墅設計圖,實用不花冤枉錢,建好倍有面子
占地:113.02平方米
18米寬一層中式小院設計圖,三合院戶型布局寬敞大氣
占地:232.75平方米
120平米農村三層房屋設計圖,客廳中空,戶型合理
占地:120平方米
陽臺封閉的簡約實用二層別墅設計圖,15x12.8米
占地:165平方米
農村大氣四層樓房圖片及全套設計圖紙,復式客廳旋轉樓梯
占地:143平方米
三層雙拼別墅效果圖及戶型設計圖,占地150平米
占地:154.8平方米
適合農村建的二層別墅設計圖,簡約美觀,讓人心動不已
占地:153平方米
經典三層雙拼樓房設計圖,經典外觀,經典戶型
占地:225平方米
帶獨立廚房的二層自建房設計圖,大戶型方案
占地:233平方米
二層新中式小別墅設計圖紙,舒適實用,16米乘12米
占地:189.88平方米
經典三層農村房屋設計圖紙,占地100平米左右,外觀典雅精致,內
占地:100平方米
占地180平方米二層農村新款樓房別墅設計圖,外觀漂亮
占地:180平方米
農村自建房鄉村超現代平屋頂二層別墅圖設計方案,造價低,施工
占地:142平方米
時尚耐看現代二層農村別墅設計圖,14米×11米,年輕人建房的不二
占地:138.125平方米
135平方米新農村三層別墅設計圖紙,外觀效果圖很漂亮
占地:134平方米
推薦:10套新農村自建房設計圖,2026年最新設計
閱讀次數:4825737次
100套鄉村別墅圖片大全,2026年最新設計
閱讀次數:2492203次
6款農村蓋一層平房的設計圖,10萬元就能建起來
閱讀次數:1852637次
這11個一層農村自建房別墅火爆了朋友圈!我最喜歡戶型十!你呢
閱讀次數:750268次
農村6萬元建一層小別墅圖,你敢相信嗎
閱讀次數:567686次
農村5萬塊就能自建房,6套普通房子設計圖分享,你沒看錯!
閱讀次數:419410次
8套農村漂亮三間平房圖片,非常適合在農村修建!
閱讀次數:411197次
農村自建房化糞池怎么做?附方案及施工過程
閱讀次數:391783次
農村一層三間平房設計圖,告別土氣養老房,讓人忍不住點贊
閱讀次數:350581次
新農村二層樓房圖片造價12萬,挑一套回家建房吧!
閱讀次數:349126次
