
|
鄉村三層豪華歐式獨棟別墅設計圖紙效果圖帶車庫全套施工圖紙!
外觀效果圖
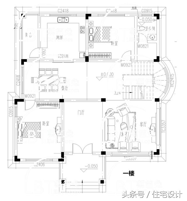
一樓布局圖
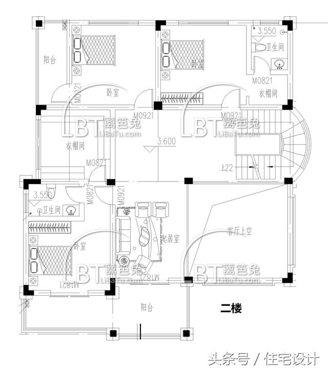
二樓布局圖
三樓布局圖 長13.7mX13.1m 建筑面積:502㎡ 占地面積166㎡ 結構類型:框架結構 預算造價:55萬左右 該戶型歐式風格,整體漂亮大氣,立面豐富,富有層次變化,尤其是三層的小陽臺給人眼前一亮,特立獨行的風格,讓人印象深刻,大面積使用玻璃,屋內采光充足,十分美觀,整體看來時尚大方,非常土豪。 圖紙之家-專注農村別墅/自建房設計18年,集合國內200余位經驗豐富的設計師,被評為口碑最好的農村建筑設計公司! |

左右對稱的歐式高端三層別墅設計圖,外觀氣派、豪華
占地:200平方米
簡單農村自建二層樓房設計圖,南北通透
占地:140平方米
農村二層四合院設計圖,秒殺各種洋別墅
占地:220平方米
鄉村高檔四層豪華別墅自建房設計圖,一層不帶餐廳廚房戶型
占地:147平方米
可以傳家的新中式二層別墅,經典耐看,再過幾十年也不過時
占地:146.81平方米
一層農家雙拼自建房設計圖,左右對稱四平八穩
占地:219.05平方米
歐式復式型三層別墅施工設計圖紙及效果圖大全
占地:164平方米
好看又簡單的二層小樓設計圖,農村自建20萬元左右
占地:130平方米
新中式農村三層樓房設計圖,帶地下室,主體建筑面積110平米
占地:110平方米
高端豪華三層別墅住宅設計方案圖,歐式外觀風格
占地:170平方米
仿古建筑中式祠堂設計圖紙及外觀效果圖
占地:546平方米
農村60萬三層別墅新款式設計圖,外觀和實用性并駕齊驅
占地:170平方米
開間9到10米簡約別墅設計圖紙帶效果圖,全套別墅設計方案
占地:122平方米
豪華大氣農村三層別墅圖紙,帶車庫、露臺,占地200平方米左右
占地:207平方米
二層農村自建四合院設計圖,中式外觀古樸有質感200-300平方米
占地:270平方米左右
一層半小別墅設計圖帶效果圖,農村自建帶閣樓一層半方案
占地:155平方米
帶開放式車庫二層農村自建別墅設計方案,造價僅15萬
占地:89.412平方米
豪華雙拼三層別墅設計圖,在農村建一棟,將是最靚的風景!
占地:186.85平方米
110平方米新農村三層房屋設計圖紙,含效果圖,帶車庫
占地:113平方米
倆兄弟蓋房子的雙拼設計圖,小宅基地設計方案
占地:151.91平方米
推薦:10套新農村自建房設計圖,2026年最新設計
閱讀次數:4825737次
100套鄉村別墅圖片大全,2026年最新設計
閱讀次數:2492203次
6款農村蓋一層平房的設計圖,10萬元就能建起來
閱讀次數:1852637次
這11個一層農村自建房別墅火爆了朋友圈!我最喜歡戶型十!你呢
閱讀次數:750268次
農村6萬元建一層小別墅圖,你敢相信嗎
閱讀次數:567686次
農村5萬塊就能自建房,6套普通房子設計圖分享,你沒看錯!
閱讀次數:419410次
8套農村漂亮三間平房圖片,非常適合在農村修建!
閱讀次數:411197次
農村自建房化糞池怎么做?附方案及施工過程
閱讀次數:391783次
農村一層三間平房設計圖,告別土氣養老房,讓人忍不住點贊
閱讀次數:350581次
新農村二層樓房圖片造價12萬,挑一套回家建房吧!
閱讀次數:349126次
