
|
我們都知道大宅基地的房子易布局,好設計,設計出來的房子美觀大氣。那么,小宅基地的房子就沒有什么好的布局,好的造型了嗎?今天呢,就為大家介紹這么一套小戶型的獨棟別墅。
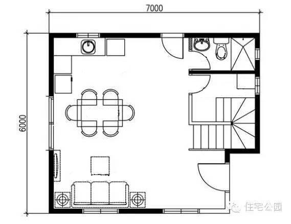
這座別墅的開間只有7米,進深6米,是一套小而精悍的現代風格別墅。別墅的線條雖然簡單,但卻很有設計感,橫線條的設計同時也起到了很好的藝術裝飾的效果。 平面布局圖:
戶型動靜分離,分層合理。一層是客廳、餐廳、廚房、衛生間這些基本的用間; 二層三個臥室和一個衛生間。南側陽面為主臥,臥室里有衣帽間(書房)和陽臺,陽臺上可以晾曬衣物或擺放盆栽,生活很舒適。
大家說,這個小戶型是不是很贊呢? 圖紙之家-專注農村別墅/自建房設計18年,集合國內200余位經驗豐富的設計師,被評為口碑最好的農村建筑設計公司! |

現代風平屋頂三層半農村小別墅設計圖,面寬僅7米
占地:90平方米
185平方米二層自建別墅設計施工圖紙及外觀效果圖,15x13米
占地:186平方米
14米乘10米農村二層別墅新款,外觀對稱設計,經久耐看!
占地:140平方米
農村兄弟雙拼二層四合院別墅設計圖,戶型左右對稱
占地:430平方米
140平方米農村三層復式房屋設計施工圖,開放式廚房
占地:143平方米
超大氣的農村一層雙拼自建別墅設計方案,絕對讓人羨慕的“平房
占地:424平方米
140平方米新農村二層自建平屋頂房屋設計圖紙帶外觀效果圖
占地:140平方米左右
農村平屋頂三層現代風別墅戶型圖,簡約實用經濟顏值高
占地:111.9平方米
旋轉樓梯挑空獨棟二層簡歐小別墅設計圖,大氣時尚
占地:189.26平方米
四層自建別墅設計圖,有車庫帶露臺,時尚大氣給你一個五星級的
占地:152.51平方米
高端大氣三層半別墅客廳挑空設計,豪華農村自建房圖
占地:179.52平方米
農村二層半樓房設計圖及效果圖,歐式風格
占地:150平方米
一層平房小面積雙拼房屋住宅設計圖,造價低,面積適中
占地:245.7平方米
110平預算20萬內三層別墅設計圖,含效果圖
占地:110平方米
130平方米新農村三層房屋設計圖紙,外觀簡單大方
占地:130平方米
農村15萬元二層小樓圖,經濟實用小別墅設計圖
占地:105平方米
簡約偏現代三層別墅設計圖紙及效果圖,鄉村蓋房推薦方案
占地:130平方米左右
兩層半新農村別墅設計圖紙,CAD設計圖+高清效果圖
占地:90平方米
30萬以下的經典二層新農村別墅設計圖紙及效果圖,簡單大氣
占地:170平方米
復式大客廳帶旋轉樓梯二層別墅設計圖,大廳很闊氣
占地:193平方米左右
推薦:10套新農村自建房設計圖,2026年最新設計
閱讀次數:4825737次
100套鄉村別墅圖片大全,2026年最新設計
閱讀次數:2492203次
6款農村蓋一層平房的設計圖,10萬元就能建起來
閱讀次數:1852637次
這11個一層農村自建房別墅火爆了朋友圈!我最喜歡戶型十!你呢
閱讀次數:750268次
農村6萬元建一層小別墅圖,你敢相信嗎
閱讀次數:567686次
農村5萬塊就能自建房,6套普通房子設計圖分享,你沒看錯!
閱讀次數:419410次
8套農村漂亮三間平房圖片,非常適合在農村修建!
閱讀次數:411197次
農村自建房化糞池怎么做?附方案及施工過程
閱讀次數:391783次
農村一層三間平房設計圖,告別土氣養老房,讓人忍不住點贊
閱讀次數:350581次
新農村二層樓房圖片造價12萬,挑一套回家建房吧!
閱讀次數:349126次
