
|
好的戶型就要少一點套路,多一點真誠。為每一位家庭成員打造屬于自己的生活領地,充分考慮到家庭的每一位成員,讓您盡享三代同堂,天倫之樂。活動空間、休息空間適度分離,即使家里的小萌寶在客廳玩耍也不會影響到在臥室午休的父母。多個陽臺設計,每一個早晨,在陽光中蘇醒,每一個午后,伴著風景小憩,悠然生活,一室盡攬。
開間:11.65m,進深:11.20m,占地130平方米左右; 建筑高度:12.34米
看看家鄉的真實案例,有沒有欲望回家自己也做一棟呢?
一層平面設計:客廳、餐廳、廚房、衛生間、臥室x2;
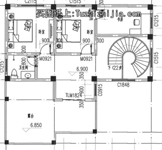
二層平面設計:客廳、書房、主臥、臥室x2、衛生間、露臺
三層平面設計:臥室x2、書房(娛樂室)、衛生間、陽臺、露臺 本戶型為農村雙露臺小別墅設計圖,雙露臺設計滿足主人各種需求,室內布局合理,功能齊全,貼合農村居住習慣,簡單、實用,藍色屋頂加上寬闊的大玻璃格外顯眼,農村自建實用,又有面子。 圖紙之家-專注農村別墅/自建房設計18年,集合國內200余位經驗豐富的設計師,被評為口碑最好的農村建筑設計公司! |

150平米一層7字型別墅設計方案,功能齊全舒適簡約,設計感十足
占地:154.48平方米
14×12米二層自建房蓋別墅設計圖,簡單對稱也很漂亮
占地:157.868平方米
兩層三間農村自建房圖,125平有7間臥室,全家人都能住得下
占地:125.34平方米
120平方米新農村四層別墅設計圖紙12X10米50萬以內
占地:120平方米
適合7字型宅基地蓋的一層別墅,中式風格設計
占地:163平方米
現代風格建房圖紙二層別墅設計方案,外觀百看不厭
占地:多戶型可選
105平方米新農村三層別墅設計圖,全套CAD建筑圖+效果圖
占地:105平方米
旋轉樓梯挑空獨棟二層簡歐小別墅設計圖,大氣時尚
占地:189.26平方米
140平三層復式別墅設計圖及外觀效果圖
占地:140平方米
歐式風二層別墅設計圖,帶陽光房設計,時尚美觀還很實用
占地:多戶型可選
農村小洋樓設計圖及效果圖,二層樓房設計圖
占地:120平方米
經典三層雙拼房屋設計圖,帶效果圖,戶型好,單戶面積120
占地:240平方米
農村別墅220-240平米的雙拼自建房設計圖,屋頂帶老虎窗
占地:220平方米
自建房共堂屋雙拼別墅設計圖方案,三層挑空復式戶型
占地:199.5平方米左右
大氣新中式三層雙拼別墅設計圖及外觀,總面寬20米多
占地:205.76平方米
最新農村三層樓房設計圖紙,客廳中空,采用暖黃色為主色
占地:160平方米
占地70平方米的三層獨棟別墅設計圖,小戶型自建房屋效果圖
占地:70平方米左右
農村二層樓簡單大氣的樓房設計圖紙,帶車庫,帶露臺
占地:150平方米
三層平頂現代風格,農村自建房設計圖,可帶電梯,百看不厭
占地:259.55平方米
二層中式四合院別墅設計圖,經典、漂亮(全套施工圖)
占地:350平方米
推薦:10套新農村自建房設計圖,2026年最新設計
閱讀次數:4825737次
100套鄉村別墅圖片大全,2026年最新設計
閱讀次數:2492203次
6款農村蓋一層平房的設計圖,10萬元就能建起來
閱讀次數:1852637次
這11個一層農村自建房別墅火爆了朋友圈!我最喜歡戶型十!你呢
閱讀次數:750268次
農村6萬元建一層小別墅圖,你敢相信嗎
閱讀次數:567686次
農村5萬塊就能自建房,6套普通房子設計圖分享,你沒看錯!
閱讀次數:419410次
8套農村漂亮三間平房圖片,非常適合在農村修建!
閱讀次數:411197次
農村自建房化糞池怎么做?附方案及施工過程
閱讀次數:391783次
農村一層三間平房設計圖,告別土氣養老房,讓人忍不住點贊
閱讀次數:350581次
新農村二層樓房圖片造價12萬,挑一套回家建房吧!
閱讀次數:349126次
