
|
眼看中秋將至,家里的老兩口就盼著能一家團圓,這次準備帶點啥回去呢?費腦呀,心里空落落的,總不能空空如也吧,臉上面子掛不住呀,在外面長年累月的工作,也是時候給家里的老人改善改善下環境了,直接一步到位,要建就建別墅咯。 別墅一: 這是一兩層別墅,內外兼修,美觀卻也實用,坡屋頂的設計別致精巧,利于隔熱,外墻深淺不一的配色看上去層次分明,凸顯了戶主注重細節的品質。
占地尺寸:12.72×12.94米 占地面積:164平方米 建筑面積:415平方米 結構類型:框架結構 建筑層數:2層 建筑高度:9.5米 主體造價:41萬左右
細節圖1
細節2
一層平面圖:進去就是門廳,可設置屏風,一間臥室,旁邊就是儲藏室,另外左邊有個會客廳,進而就是一個干濕分離的衛生間,在后面有廚房和土灶,風格不喜歡可以換,后面有個煙囪,風格不喜歡可以換,旁邊就是個寬敞的餐廳,方便就餐用。
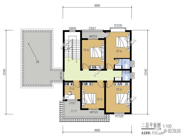
二層平面圖:基本的居住空間,臥室有三間,一個衛生間,還有一間起居室,另外門廳上空挑空,空間會顯得大一些,很寬敞。 別墅二: 這是另外一兩層別墅,用色低調,則顯得穩重些,坡屋頂的設計樸實無華,在多窗的設計上是花了點小心思的,以及在整體的布局上都最大化的利用了空間。
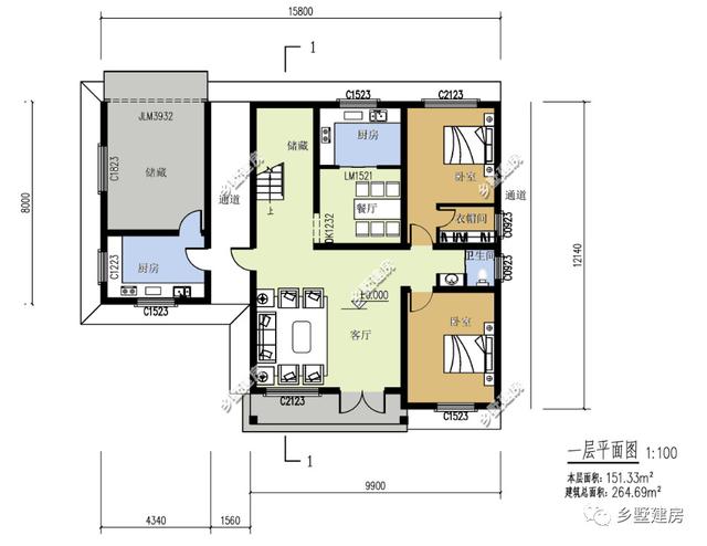
占地尺寸:15.8X12.14米 占地面積:151.33平方米 建筑面積:264.69平方米 結構類型:框架結構 建筑高度:9.19米 建筑層數:2層
一層平面圖:入戶就是客廳,右邊是臥室帶獨衛,進去是餐廳廚房連一起,大大增加了就餐空間,通道外另設有一廚房和一儲藏室,雙廚房的設計很是少見,不需要的話也可以改成個小的衣帽間。
二層平面圖:基本上來說為居住空間,四個臥室,房間設置很是充裕,另外一間小書房辦公挺方便的,陽臺連著臥室,室內陽光充足,便于晾曬。 分享:
圖紙之家-專注農村別墅/自建房設計18年,集合國內200余位經驗豐富的設計師,被評為口碑最好的農村建筑設計公司! |

經典小戶型雙拼二層新農村房屋住宅設計圖,含效果圖
占地:80平方米
小L型新款二層別墅設計圖,復式客廳旋轉樓梯,14米乘13米
占地:182平方米
一層農村自建房別墅設計圖,簡潔時尚的設計,給父母建養老房
占地:144平方米
農村簡單雙拼小戶型,簡單適用,客廳中空,總占地210平方米
占地:210平方米
中式三層新農村房子別墅設計圖,看了那么久,還是中式最有韻味
占地:97.2平方米
帶陽光房的二層簡歐別墅圖紙,戶型經典實用
占地:147.2平方米
帶車庫農村二層樓房設計圖,外觀漂亮,精致
占地:154平方米
160平方米二層小別墅設計圖紙及效果圖大全,12X13米
占地:162平方米
帶開放式車庫的二層別墅!配土灶、室外樓梯,新穎還顯品味
占地:127.2平方米
戳中年輕人喜好!時尚三層自建房,簡約時尚設計,住著舒適自然
占地:169.76平方米
小戶型徽派建筑別墅設計方案大全,三層別墅設計圖推薦
占地:95平方米
13×16米農村自建樓房三層別墅戶型設計圖,大氣
占地:168平方米
高端三層帶地下室別墅房屋設計圖方案及效果圖
占地:135平方米
在農村30萬可以建造的三層別墅款式,帶別墅外觀圖片
占地:138平方米
挑空客廳戶型歐式二層別墅設計圖紙,高端大氣帶車庫
占地:236.09平方米
闊氣高端的三層別墅設計圖,亮得恰到好處,永遠也住不膩
占地:160平方米
130平方米現代簡約農村兩層樓房施工設計圖紙帶外觀圖
占地:126平方米
私人二層農村小樓設計圖,外觀靚麗,富有現代氣息
占地:160平方米
110平方米農村三層自建房設計圖紙帶外觀圖
占地:110平方米
高端三層別墅設計圖紙,客廳中空,帶地下室,設置多個套間
占地:220平方米
推薦:10套新農村自建房設計圖,2026年最新設計
閱讀次數:4825737次
100套鄉村別墅圖片大全,2026年最新設計
閱讀次數:2492203次
6款農村蓋一層平房的設計圖,10萬元就能建起來
閱讀次數:1852637次
這11個一層農村自建房別墅火爆了朋友圈!我最喜歡戶型十!你呢
閱讀次數:750268次
農村6萬元建一層小別墅圖,你敢相信嗎
閱讀次數:567686次
農村5萬塊就能自建房,6套普通房子設計圖分享,你沒看錯!
閱讀次數:419410次
8套農村漂亮三間平房圖片,非常適合在農村修建!
閱讀次數:411197次
農村自建房化糞池怎么做?附方案及施工過程
閱讀次數:391783次
農村一層三間平房設計圖,告別土氣養老房,讓人忍不住點贊
閱讀次數:350581次
新農村二層樓房圖片造價12萬,挑一套回家建房吧!
閱讀次數:349126次
