
|
農村蓋房到底選擇蓋平房還是樓房是很多自建房朋友的難題。平時家里也就老人住,其實蓋1層平房就綽綽有余,但是好不容易蓋套新房,蓋個平房實在不如2層小洋樓有面子。 今天“新型房屋”帶來兩套自建房設計,相同戶型,到底建1層還是2層看看就清楚了。 一層戶型設計:
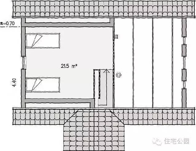
1層平房設計為坡屋頂,則很巧妙的多出了一個閣樓,多出的這個空間可以作為臥室或者儲藏室使用。 這套平房外觀簡單大方,外墻木質掛板和歐式圍欄的使用,頗有美式田園別墅風味。
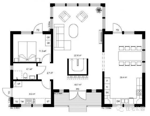
如果家庭人數不多,預算不夠,或者村里建筑高度有限制,滿足不了自己對房子的需求時可以這樣建個平房帶閣樓戶型。 平面布局圖:
此戶型設計動靜分離,左側設計兩個臥室、右側設計客廳和廚房,功能分明,互不干擾。
如果1層滿足不了居住的需求,閣樓還可以騰出一個臥室用于居住,也可以將2樓做成儲藏室或衣帽間等使用。 二層戶型設計:
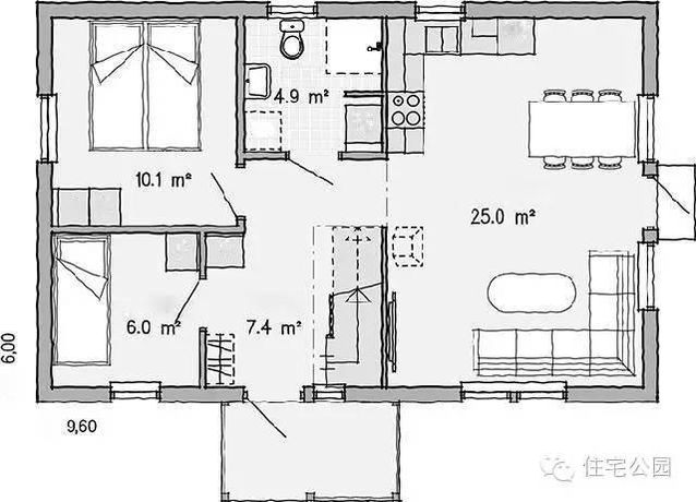
相同的2層設計沿用1層平房的外觀,外觀配色明亮柔和。這個戶型適合家中人口多,或對住宅功能性用房需求多的用戶。 平面布局圖:
整體戶型臥室這種私人空間較小,但是客廳、餐廳作為社交場所,空間較大,一起交談嘻戲的空間開闊、心情甚好。
2樓臥室設計為套間,滿足家人各方面的生活需要;還設計有起居室,居住舒適。 如果是你,你會建哪套呢? 圖紙之家-專注農村別墅/自建房設計18年,集合國內200余位經驗豐富的設計師,被評為口碑最好的農村建筑設計公司! |

最新小別墅設計圖,復式三層,外觀非常漂亮
占地:158平方米
鄉村別墅現代風平屋頂四層自建房設計圖,簡約時尚
占地:144.7平方米
新農村三拼別墅三戶連體別墅設計圖,設計新穎美觀
占地:380平方米
漂亮的二層中式現代別墅圖,配色非常的溫馨淡雅
占地:160平方米
80平方米鄉村一層半帶閣樓自建別墅設計圖,帶車庫
占地:80平方米
120平米二層別墅樓設計圖,簡約省錢也能建的漂亮
占地:121.74平方米
中式二層對稱別墅設計圖,帶地下室設計,整體造價經濟
占地:171.6平方米
300平四層別墅房屋設計圖,含外觀效果圖,大面積、多臥室
占地:261平方米
客廳中空三層復式別墅房屋設計圖,帶外觀效果圖
占地:145平方米
四層自建別墅設計圖,有車庫帶露臺,時尚大氣給你一個五星級的
占地:152.51平方米
鄉村自建獨棟三層別墅樓房設計圖,預算30萬內
占地:120平方米
農村一層中式三合院別墅設計圖,戶型經典實用,19米乘15米
占地:243.21平方米
18×15米新中式高檔農村三層別墅設計圖,低調奢華又實用
占地:195.91平方米
帶車庫的三層房屋方案設計圖,帶堂屋全套圖紙
占地:163.8平方米
一層帶地下室雙拼別墅設計圖,理想鄉村生活的標配
占地:416平方米
110平方米新農村三層別墅設計圖,含外觀效果圖
占地:109平方米
豪華三層歐式雙拼別墅設計圖紙,雙拼歐式別墅如何設計看這款
占地:258.294平方米
中國最美建筑四合院設計圖紙及效果圖,顏值爆棚
占地:152平方米左右
小型中式一層三合院別墅設計圖,小宅基地照樣建合院
占地:119.73平方米
中式四合院農村自建房設計圖,白墻黛瓦,四水歸堂
占地:137.72平方米
推薦:10套新農村自建房設計圖,2026年最新設計
閱讀次數:4825737次
100套鄉村別墅圖片大全,2026年最新設計
閱讀次數:2492203次
6款農村蓋一層平房的設計圖,10萬元就能建起來
閱讀次數:1852637次
這11個一層農村自建房別墅火爆了朋友圈!我最喜歡戶型十!你呢
閱讀次數:750268次
農村6萬元建一層小別墅圖,你敢相信嗎
閱讀次數:567686次
農村5萬塊就能自建房,6套普通房子設計圖分享,你沒看錯!
閱讀次數:419410次
8套農村漂亮三間平房圖片,非常適合在農村修建!
閱讀次數:411197次
農村自建房化糞池怎么做?附方案及施工過程
閱讀次數:391783次
農村一層三間平房設計圖,告別土氣養老房,讓人忍不住點贊
閱讀次數:350581次
新農村二層樓房圖片造價12萬,挑一套回家建房吧!
閱讀次數:349126次
