
|
由于最近樓樓都在著手工作調動的事情,好幾天沒有推送精美的圖紙,后期會加倍補回來的,要信我哦! 所以今天呢樓樓繼續給大家推薦的是一套三層別墅圖紙,高端、大氣、上檔次。 先看別墅戶型圖吧
正面
側面
背面 戶型基本信息 開間:13米,進深:9.88米 占地面積:127.86平方米 建筑面積:330.79平方米 結構類型:磚混結構 首層高度:3.7米 外觀造型: 新農村自建房設計圖風格,結構緊湊實用,南北通透,空間利用率高,采光效果良好;混磚結構,經濟良好型。 外觀裝飾配色: 整體外觀裝飾材料屋面和檐都是磚紅色瓦片,墻體顏色干凈優美,不會太過花俏,很顯房屋主人的品位。大門的一側采用玻璃墻,采光性良好,在視覺上也帶來不一樣的感覺。 戶型平面圖
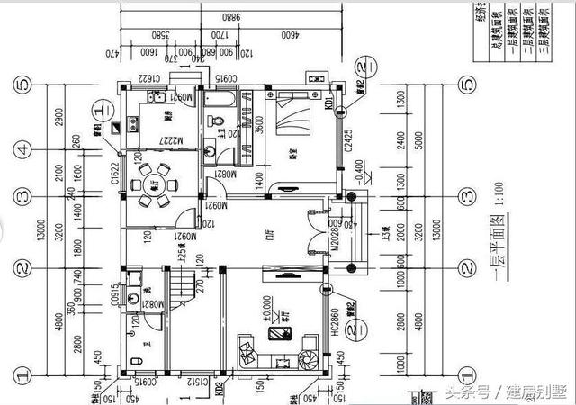
(一層平面圖) 一層平面布局功能:1個臥室(帶衛),1個公共衛生間,1個廚房、餐廳、客廳、洗衣機間。客廳上空上挑,戶型通透,采光極好。門廳面積較大,根據需要可以設置神位。
(二層平面圖) 二層平面布局功能:3個臥室,1個衛生間,1個陽臺,客廳。二層的房間偏多,空間利用率極好,再也不用擔心過年客人多不夠住了。
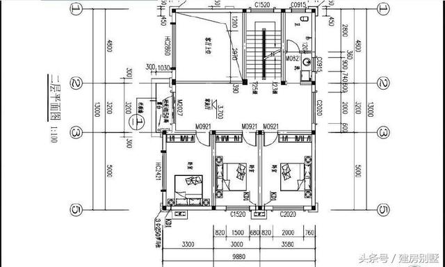
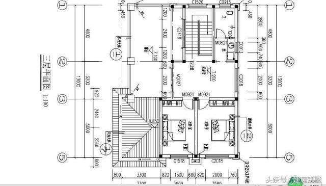
(三層平面圖) 三層平面布局功能:2個臥室,1個衛生間,1個露臺,陽臺,客廳。 此戶型是經典戶型,外觀造型優雅,顏色搭配適宜,磚混造價不高,易施工,簡單實用,適合作為農村自建房建造。 磚混結構毛坯參考造價:磚混結構毛坯造價按620-830元/平方米,預估毛坯造價為22-28萬(參考造價,以當地物價為準) 圖紙之家-專注農村別墅/自建房設計18年,集合國內200余位經驗豐富的設計師,被評為口碑最好的農村建筑設計公司! |

最漂亮的一層平房圖片及設計圖,造價18萬左右,結構簡單易于施
占地:186平方米
新中式三層樓房設計圖,外觀精致布局也是相當的樸實
占地:140平方米
新中式三層雙拼別墅設計圖,外觀圖片美觀、大氣
占地:176平方米
135平三層農村樓房設計圖及效果圖,造價20萬左右
占地:135平方米
140平方米兩層別墅CAD設計圖紙及效果圖,13x11米
占地:138平方米
18X12米農村二層溫馨小別墅設計圖,美式風格
占地:203平方米
簡單大氣的農村二層樓設計圖,二層歐式農村別墅設計圖
占地:180平方米
130平方米新農村自建三層別墅設計施工圖,13x11米
占地:130平方米
面寬18米二層農村大別墅設計圖,可帶電梯,舒適又實用
占地:138.29平方米
240平方米新農村四合院兩層樓房施工設計圖紙帶外觀圖
占地:234平方米
120平方米三層歐式別墅設計圖,進門就是旋轉樓梯
占地:119.76平方米
新中式小戶型二層別墅效果圖及全套施工設計圖,造價經濟實惠
占地:108平方米
80平方米三層農村自建民房設計圖,小戶型別墅方案
占地:81平方米
外觀高檔大氣的三層別墅房屋設計圖,高端別墅設計展示
占地:147平方米
最新五十萬農村二層別墅設計圖紙,客廳中空
占地:195平方米
經典三層雙拼房屋設計圖,帶效果圖,戶型好,單戶面積120
占地:240平方米
100平內簡單精致的小戶型自建房二層設計圖,旋轉樓梯
占地:97.08平方米
現代新中式四層復式別墅房屋設計圖,旋轉樓梯,含效果圖
占地:150平方米
歐式二層別墅cad施工圖紙,含效果圖,歐式別墅設計圖紙展示
占地:189平方米
農村二層半別墅設計圖,簡單實用,造價低
占地:140平方米
推薦:10套新農村自建房設計圖,2026年最新設計
閱讀次數:4825737次
100套鄉村別墅圖片大全,2026年最新設計
閱讀次數:2492203次
6款農村蓋一層平房的設計圖,10萬元就能建起來
閱讀次數:1852637次
這11個一層農村自建房別墅火爆了朋友圈!我最喜歡戶型十!你呢
閱讀次數:750268次
農村6萬元建一層小別墅圖,你敢相信嗎
閱讀次數:567686次
農村5萬塊就能自建房,6套普通房子設計圖分享,你沒看錯!
閱讀次數:419410次
8套農村漂亮三間平房圖片,非常適合在農村修建!
閱讀次數:411197次
農村自建房化糞池怎么做?附方案及施工過程
閱讀次數:391783次
農村一層三間平房設計圖,告別土氣養老房,讓人忍不住點贊
閱讀次數:350581次
新農村二層樓房圖片造價12萬,挑一套回家建房吧!
閱讀次數:349126次
