
|
以前農村建房比較容易,審批也沒有現在嚴格,現在想在農村建房是越來越難了,需提交各種材料申請,還受到面積、層高等等限制,想要蓋一棟讓自己滿意的房子真是困難重重!過去建房是有地沒錢,現在是有錢沒地!所以,家里有宅基地的朋友,在政策允許范圍內,趕緊行動起來建新房吧!今天蓋別墅給大家帶來3款30萬以內農村一層房屋設計圖,你喜歡哪一款? 【戶型1】 開間進深19.8*13.8米,占地面積243.56㎡,建筑面積346.94㎡,磚混結構,主體30萬。
戶型1 室內布局:車庫、門廳、客廳、臥室(帶衣帽間)、臥室(帶衛生間)、臥室*2、廚房、餐廳、儲藏間、活動室、衛生間。
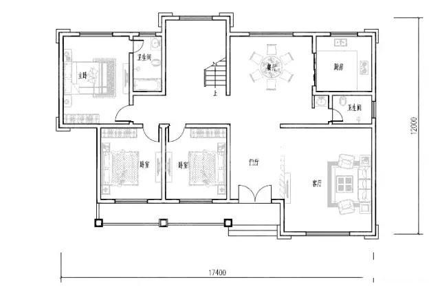
戶型1平面圖 客廳與餐廳連接,顯得客廳比較大,客廳和餐廳的右邊有4個臥室,其中兩間是套房,還設有活動室,擁有活動空間,儲藏室的布置也為家居生活增添了收納。 【戶型2】 開間進深17.4* 12米,占地面積186.56㎡,建筑面積235.58㎡,磚混結構, 25萬
戶型2 室內布局:門廳、客廳、主臥(帶衛生間)、次臥*2、廚房、餐廳、衛生間。
戶型2平面圖 這棟別墅形狀不規則,進門是門廳,右邊是客廳,左邊有兩間臥室,門廳進去是餐廳,廚房在餐廳右側,主臥帶衛生間,方便主人。 【戶型3】 開間進深16* 9.3米,占地面積145.38㎡,總建筑面積267.99㎡,磚混結構,主體造價20萬。
戶型3 室內布局:堂屋、餐廳、客廳、廚房、臥室*4、公衛。
戶型3平面圖 入門是一個大面積堂屋,餐廳與堂屋共用,客廳在南面最左邊,最后邊是一間臥室,北面有3間臥室,本戶型共有4個臥室,廚房設在東北角。 圖紙之家-專注農村別墅/自建房設計18年,集合國內200余位經驗豐富的設計師,被評為口碑最好的農村建筑設計公司! |

155平方米二層別墅房屋設計圖,帶獨立車庫
占地:155平方米
14米×10米農村二層小別墅自建房設計圖,外觀設計時尚美觀
占地:125平方米
農村120平三層樓房設計圖,造型現代,帶屋頂花園
占地:120平方米
二層農村兄弟雙拼別墅設計圖,一墻之隔互不干擾,鄰居看了都喜
占地:164.24平方米
2026戶型方正三層農村小別墅設計圖紙(含外觀圖片)
占地:150平方米
面寬11米超實用的農村一層別墅設計圖,南北通透造價不高
占地:110.47平方米
120平米左右農村房屋設計圖占地面積適宜,外觀舒適大氣
占地:120平方米
2026年新款別墅外觀圖及全套施工圖紙,占地面積13×10米
占地:130平方米
新農村三層房屋設計圖紙(含效果圖),農村小別墅圖紙推薦
占地:116.15平方米
小戶型二層農村別墅設計圖,占地140平經典漂亮
占地:139.54平方米
歐式三層雙拼別墅設計圖,精致大氣布局實用,兄弟建房上上之選
占地:234平方米
30萬造價三層別墅建筑設計圖紙,戶型利用率高
占地:130平方米
經典農村三層樓房設計圖,10個不同尺寸戶型,各種戶型供您選擇
占地:多種
普通農村二層房子設計圖 ,復式結構,帶車庫,占地160平米左右
占地:160平方米
8萬元二層農村房子圖片及設計圖,簡易二層小樓,占地50平米
占地:50平方米
兩層15萬農村自建房設計圖,農村蓋房設計大全圖
占地:130平方米
農村超級好看的現代風格兩層小樓圖,清新優雅
占地:多種戶型
新中式三層別墅設計圖紙(含效果圖),110平農村自建房施工圖推
占地:110平方米
100平方米新農村住宅二層小別墅設計CAD圖紙及效果圖,10x10米
占地:96平方米
鄉村兩層半別墅設計圖,一層160平,主體30萬左右
占地:168平方米左右
推薦:10套新農村自建房設計圖,2026年最新設計
閱讀次數:4825737次
100套鄉村別墅圖片大全,2026年最新設計
閱讀次數:2492203次
6款農村蓋一層平房的設計圖,10萬元就能建起來
閱讀次數:1852637次
這11個一層農村自建房別墅火爆了朋友圈!我最喜歡戶型十!你呢
閱讀次數:750268次
農村6萬元建一層小別墅圖,你敢相信嗎
閱讀次數:567686次
農村5萬塊就能自建房,6套普通房子設計圖分享,你沒看錯!
閱讀次數:419410次
8套農村漂亮三間平房圖片,非常適合在農村修建!
閱讀次數:411197次
農村自建房化糞池怎么做?附方案及施工過程
閱讀次數:391783次
農村一層三間平房設計圖,告別土氣養老房,讓人忍不住點贊
閱讀次數:350581次
新農村二層樓房圖片造價12萬,挑一套回家建房吧!
閱讀次數:349126次
