
|
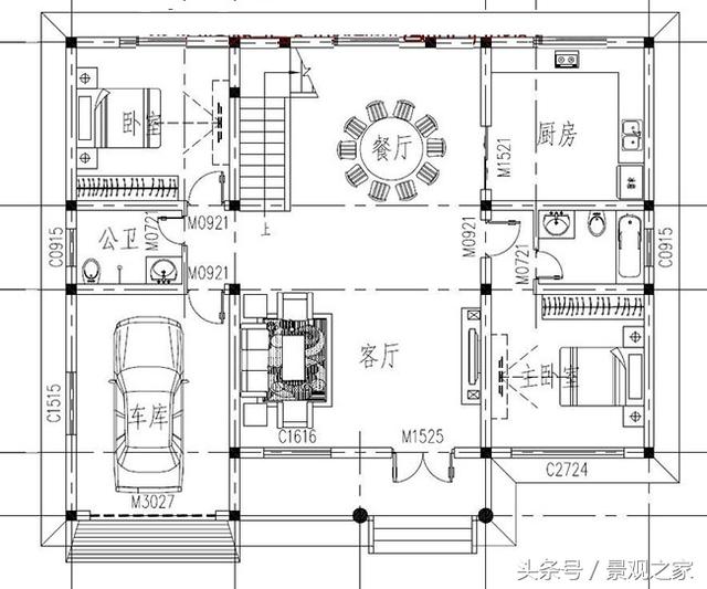
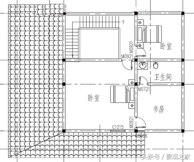
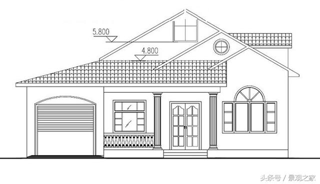
本戶型為農村一層半房屋設計圖,帶車庫,外觀艷麗,富有現代氣息,戶型布局合理。
圖紙之家-專注農村別墅/自建房設計18年,集合國內200余位經驗豐富的設計師,被評為口碑最好的農村建筑設計公司! |

130多平方米新農村三層別墅建筑設計圖及效果圖
占地:133平方米左右
三層獨棟帶露臺房屋設計圖,含外觀圖片大全
占地:110平方米
帶獨立堂屋的農村自建房設計,二層別墅設計方案圖
占地:109平方米左右
開間12米的三層簡歐別墅設計圖,農村建房布局實用住的舒服
占地:108.15平方米
150平農村二層復式別墅房屋設計方案圖,帶外觀效果圖片
占地:150平方米
經濟小戶型二層中式四合院(三合院)設計圖紙,帶堂屋和庭院
占地:143.544平方米
新農村二層歐式別墅設計圖,外觀漂亮,主體18萬起建
占地:115.2平方米
二層復式農村豪宅別墅設計圖,挑空客廳旋轉樓梯高級感十足
占地:215.43平方米
背面不開窗二層別墅設計圖,對稱設計簡單好看,眾多建房者的選
占地:183.79平方米
30萬農村小別墅設計圖片,30萬別墅設計戶型推薦
占地:130平方米
新農村復試兩層半樓房設計圖,帶大露臺,簡單經濟實用大氣
占地:190平方米
一層帶地下室雙拼別墅設計圖,理想鄉村生活的標配
占地:416平方米
一層農房別墅設計圖紙,140平方米,面寬15米
占地:140平方米
農村兩層帶地下室別墅設計圖,還帶庭院規劃,適合農村建
占地:144.5平方米
110平方米新農村三層房屋設計圖,含外觀效果圖
占地:110平方米
小占地三層現代時尚風別墅設計圖,平屋頂占地不足100平
占地:98.35平方米
鄉下二層樓房住宅設計圖紙及效果圖,農村二層小洋樓
占地:140平方米
面寬8米多小開間三層農村別墅設計圖,占地不足百平
占地:95.21
2026新款農村三層雙拼自建房設計圖,占地150平米左右
占地:150平方米
150平米經典二層中式別墅設計圖 ,現代中式相結合
占地:154平方米左右
推薦:10套新農村自建房設計圖,2026年最新設計
閱讀次數:4825737次
100套鄉村別墅圖片大全,2026年最新設計
閱讀次數:2492203次
6款農村蓋一層平房的設計圖,10萬元就能建起來
閱讀次數:1852637次
這11個一層農村自建房別墅火爆了朋友圈!我最喜歡戶型十!你呢
閱讀次數:750268次
農村6萬元建一層小別墅圖,你敢相信嗎
閱讀次數:567686次
農村5萬塊就能自建房,6套普通房子設計圖分享,你沒看錯!
閱讀次數:419410次
8套農村漂亮三間平房圖片,非常適合在農村修建!
閱讀次數:411197次
農村自建房化糞池怎么做?附方案及施工過程
閱讀次數:391783次
農村一層三間平房設計圖,告別土氣養老房,讓人忍不住點贊
閱讀次數:350581次
新農村二層樓房圖片造價12萬,挑一套回家建房吧!
閱讀次數:349126次
