
|
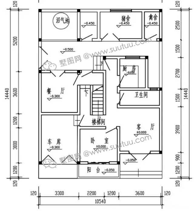
對于現在的農村人口來說,大多數還是老人和孩子居多,年輕人基本上都外出務工了。所以農村自建房沒必要建太高,建個兩層足夠了,一樓是生活區,二樓是休息區,再配上一個小庭院就非常完美了。今天小編就給大家帶來一套偏中式風格的二層別墅設計圖。建在村里有檔次還不突兀,南北方都非常適合修建。 基礎信息 占地尺寸:10.54mX14.44m 占地面積:152m2 建筑面積:147m2 主體預算:19萬
第一層平面圖 一樓設有客廳、車庫、餐廳、廚房、衛生間和老人房,一樓一般有臥室,留給老人住,省的上下樓不方便。后院還設有沼氣池、豬舍、禽舍等,除了與室內通過廚房旁邊的臺階相連外,還設有單獨入門,非常方便。雖說現在沿海很多農村都不養豬了,但真正的農村生活還是要設置的。
第二層平面圖 二樓設有三間臥室、一個衛生間、陽臺及曬臺,既能方便居住,又能夠滿足基本的家庭晾曬需要。 圖紙之家-專注農村別墅/自建房設計18年,集合國內200余位經驗豐富的設計師,被評為口碑最好的農村建筑設計公司! |

農村中式一層三合院自建房設計圖,古典大氣白墻黛瓦
占地:177.62平方米
農村10萬元一層小別墅設計圖,農村一層自建房屋設計圖
占地:多種戶型
140平方米新農村三層房屋設計圖,磚混結構帶地下室
占地:138平方米左右
18米寬一層中式小院設計圖,三合院戶型布局寬敞大氣
占地:232.75平方米
農村三層帶車庫、帶露臺別墅設計圖,經典自建別墅設計方案
占地:160平方米
復式挑空二層別墅設計圖,占地175平米,建好住著很舒適
占地:175.44平方米
美觀大氣二層歐式別墅設計圖,外觀效果圖高端上檔次
占地:189.8平方米
帶車庫鄉下雙拼別墅設計圖,三層造型漂亮大全
占地:256平方米
一層農村自建房別墅設計方案,左右對稱布局好
占地:154平方米
8萬元二層農村房子圖片及設計圖,簡易二層小樓,占地50平米
占地:50平方米
新農村二層自建房設計圖帶外觀圖片,自建戶型大全
占地:160平方米
新農村二層房屋設計圖紙(全套建筑施工圖紙+外觀效果圖)
占地:85平方米
180平高端歐式三層別墅圖紙設計,大戶型復式客廳
占地:182.016
農村二層半別墅圖片大全,二層半別墅設計圖推薦
占地:160平方米
二層半農村小別墅設計方案圖,南方設計圖精選
占地:82平方米
2026最好看的農村三層樓房圖片及施工圖紙,客廳寬敞
占地:120平方米
60多平三層現代風格別墅設計圖,小戶型平屋頂
占地:66.4平方米
復式客廳挑空三層別墅設計圖,帶外觀效果圖片,推薦
占地:150平方米
新農村自建20萬二層小樓外觀圖及戶型圖,簡單大方,漂亮接地氣
占地:130平方米
造價30萬的三層簡歐新農村別墅設計施工圖紙及效果圖
占地:133平方米
推薦:10套新農村自建房設計圖,2026年最新設計
閱讀次數:4825737次
100套鄉村別墅圖片大全,2026年最新設計
閱讀次數:2492203次
6款農村蓋一層平房的設計圖,10萬元就能建起來
閱讀次數:1852637次
這11個一層農村自建房別墅火爆了朋友圈!我最喜歡戶型十!你呢
閱讀次數:750268次
農村6萬元建一層小別墅圖,你敢相信嗎
閱讀次數:567686次
農村5萬塊就能自建房,6套普通房子設計圖分享,你沒看錯!
閱讀次數:419410次
8套農村漂亮三間平房圖片,非常適合在農村修建!
閱讀次數:411197次
農村自建房化糞池怎么做?附方案及施工過程
閱讀次數:391783次
農村一層三間平房設計圖,告別土氣養老房,讓人忍不住點贊
閱讀次數:350581次
新農村二層樓房圖片造價12萬,挑一套回家建房吧!
閱讀次數:349126次
