
|
現在選擇回農村建房的人越來越多,甚至是不比在城里買房的人少。最重要的原因就是成立的房價太高,光一個首付就自己積攢好幾年,后半輩子還要做幾十年的房奴。然后就是因為最近農村經濟的高速發展、基礎設施的不斷完善,在農村生活一點也不比城里差。 今天給大家推薦5套農村三層別墅,房屋造價只需要30萬左右,適合農村自建房! 第一套
正面效果圖
鳥瞰圖
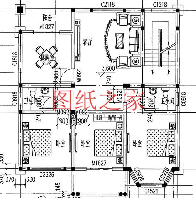
背面效果圖 占地面積:10.76m*10.76m,一層建筑面積120平方米左右; 建筑高度:12.00米(含屋頂); 設計功能: 一 層:客廳、餐廳、廚房、臥室、衛生間、洗衣房(儲藏間或者去掉)、儲藏間(樓梯下面); 二 層:客廳、主臥(帶衛生間)、臥室x2、衛生間、棋牌室(或書房); 三 層:健身房、臥室x2、衛生間、大露臺;
一層平面圖
二層平面圖
三層平面圖 第二套
正面效果圖
鳥瞰圖
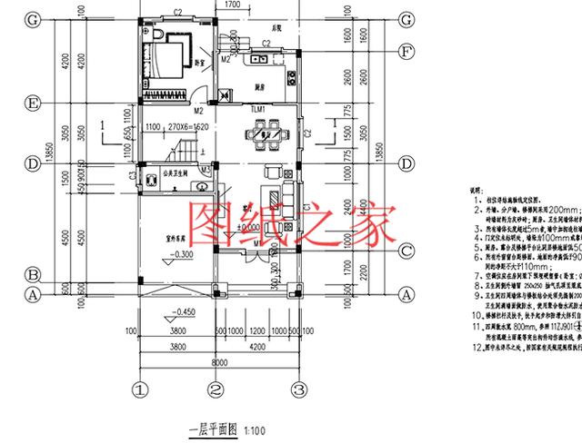
背面效果圖 占地面積:12.00m*13.00m,占地155平方米左右; 建筑高度:12.33米(含屋頂); 設計功能: 一 層:玄關、客廳、廚房、餐廳、臥室、衛生間、車庫;【廚房和臥室可以對調】 二 層:客廳、臥室(帶書房)、臥室x3、衛生間; 三 層:臥室x2、書房、娛樂室、露臺x2;
一層平面圖
二層平面圖
三層平面圖 第三套
別墅效果圖 占地面積:15.60m*9.50m(含車庫),占地148平左右;12.00m*9.50m(不含車庫),占地115平左右; 建筑高度:13.05米(含屋頂); 設計功能: 一 層:堂屋、客廳、廚房、餐廳、主臥(帶衛生間)、衛生間、車庫; 二 層:起居室(可以去掉隔斷)、主臥(帶衛生間)、臥室x3、衛生間、陽臺、陽光房(車庫上); 三 層:起居室(可以去掉隔斷)、主臥(帶衛生間)、書房、娛樂廳、衛生間、陽臺、露臺;
一層平面圖
二層平面圖
三層平面圖 第四套
別墅效果圖 占地面積:8m*13.85m,110平方米左右; 建筑高度:11.53米(含屋頂); 設計功能: 一 層:客廳、廚房、餐廳、多功能房、臥室、室外車庫 二 層:客廳、主臥室、臥室、陽臺 三 層:臥室x2、儲藏間、露臺、陽臺
一層平面圖
二層平面圖
三層平面圖 第五套
別墅效果圖 占地面積:12.0m*10.0m,120平方米左右; 建筑高度:11.3米(含屋頂); 設計功能: 一 層:門廳、客廳、餐廳、臥室、臥室x2、衛生間(樓梯下); 二 層:起居室、臥室x4、衛生間; 三 層:臥室x3、衛生間、大露臺;
一層平面圖
二層平面圖
三層平面圖
圖紙之家-專注農村別墅/自建房設計18年,集合國內200余位經驗豐富的設計師,被評為口碑最好的農村建筑設計公司! |

農村一層平房設計圖及效果圖,一層房屋設計方案推薦
占地:270平方米
農村四層復式房屋設計圖紙,占地105平方米預算35萬左右
占地:105平方米
新中式農村自建三層別墅房屋施工,12x10米簡潔雅致
占地:121.77平方米
農村養老房還是一層好,帶閣樓的一層房子設計圖
占地:135平方米
2026帶車庫三層雙拼別墅房屋設計圖,配色淡雅低調
占地:224平方米
2026最新款50萬左右農村三層別墅設計圖,客廳中空
占地:160平方米
12米乘9米占地百平一層平房戶型設計圖,布局寬敞大氣又舒適
占地:108平方米
小型雙拼一層平房設計圖,外觀古樸
占地:100平方米
帶小院七字形一層自建房戶型設計圖,平屋頂圖紙
占地:201.08平方米
帶開放式車庫的二層別墅!配土灶、室外樓梯,新穎還顯品味
占地:127.2平方米
對稱一層農村養老別墅設計方案,室內戶型布局合理,14x12米
占地:141.46平方米
豪華復式三層別墅設計圖紙,效果圖+建筑施工圖+結構施工圖
占地:126平方米
L“型”一層自建房小平層設計圖紙,180平方米
占地:179.355平方米
農村10萬元一層小別墅設計圖,農村一層自建房屋設計圖
占地:多種戶型
最耐看的二層別墅設計圖,15米寬12米深,方正大氣經濟美觀!
占地:180平方米
四層巴洛克別墅設計圖,旋轉樓梯搭配超大挑空客廳,很有氣勢
占地:146平方米
簡潔干練三層現代風平頂別墅設計圖,8X15米
占地:115.1平方米
3層20萬農村自建房設計圖,占地110平米
占地:110平方米
200平方米別墅設計圖紙(含效果圖),農村別墅方案精選
占地:200.26平方米
260平方米歐式四層別墅設計圖20X18米,造價108萬
占地:260平方米
推薦:10套新農村自建房設計圖,2026年最新設計
閱讀次數:4825737次
100套鄉村別墅圖片大全,2026年最新設計
閱讀次數:2492203次
6款農村蓋一層平房的設計圖,10萬元就能建起來
閱讀次數:1852637次
這11個一層農村自建房別墅火爆了朋友圈!我最喜歡戶型十!你呢
閱讀次數:750268次
農村6萬元建一層小別墅圖,你敢相信嗎
閱讀次數:567686次
農村5萬塊就能自建房,6套普通房子設計圖分享,你沒看錯!
閱讀次數:419410次
8套農村漂亮三間平房圖片,非常適合在農村修建!
閱讀次數:411197次
農村自建房化糞池怎么做?附方案及施工過程
閱讀次數:391783次
農村一層三間平房設計圖,告別土氣養老房,讓人忍不住點贊
閱讀次數:350581次
新農村二層樓房圖片造價12萬,挑一套回家建房吧!
閱讀次數:349126次
