
|
年少在外拼搏,也拼出了一方天地,把父母都接到了大城市生活,然而突發奇想想回老家蓋棟農村一層房屋設計圖,然后問了下父母的意見,沒想到他們高興的像個孩子,可能一直忽略了父母內心深處的想法,城里的燈紅酒綠也撫慰不了他們那顆思念故土的心。
樓主家位于江西的一個小山村,四面環山,交通也算便利,老屋附近都有人家,地皮27×28米大,新房朝向取老房朝向不變。 設計效果圖:
兩層半設計,開間12米,進深12.36米,朝向西南,剩余空間圍城一個院子,主屋不做車庫,宅基地位置示意圖:
一層平面圖:一層設計一老人房帶衛生間,兩廳一廚一儲藏室。
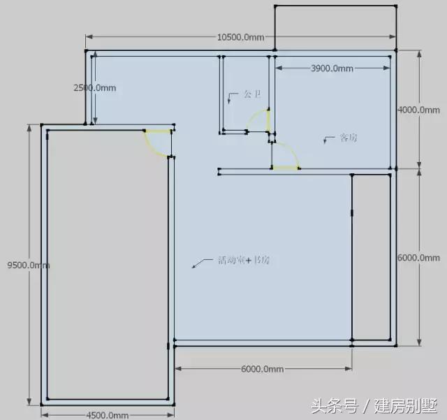
二層平面圖:四室一廳兩衛一衣帽間,這個房子前幾年設計的,能有這樣先知先覺的想法很不錯了。
三層平面圖:一室一衛一書房,其他空間做成露臺。
平面后續有做更改,想看更改后的平面圖,請關注:建房別墅公眾號。放線:
毛石基礎,上面砌磚再澆混凝土,前幾年部分農村很傳統的做法,現在用的不多了:
砌墻,構造柱:
一層裝好模板,準備現澆:
一年后還是個毛坯,外墻粉刷,裝好了門窗,但是沒有裝修,樓主正在努力賺裝修費中...參照前幾年江西地方農村物價,差不多700一平的造價,毛坯花費25萬左右,現在應該要900左右了,這幾年物價飛漲,所以早建早省錢。 圖紙之家-專注農村別墅/自建房設計18年,集合國內200余位經驗豐富的設計師,被評為口碑最好的農村建筑設計公司! |

仿古別墅建筑設計圖,外觀效果圖+全套施工圖
占地:142平方米
經典三層別墅設計圖,時尚典雅美觀大氣,新農村自建的理想之選
占地:119.45平方米
農村20萬元二層小樓房設計圖,經典新農村自建房戶型
占地:120平方米
二層帶地下室樓房設計方案,效果圖+全套施工圖
占地:160平方米
現代風平屋頂三層半農村小別墅設計圖,面寬僅7米
占地:90平方米
面寬8米多的三層農村別墅設計圖,小開間宅基地推薦
占地:112.82平方米
120平方米農村一層平房別墅設計圖紙,含外觀效果圖
占地:125平方米
新農村實用三層帶露臺房屋設計圖紙,占地110平方米
占地:109平方米
最新小別墅設計圖,復式三層,外觀非常漂亮
占地:158平方米
鄉村仿古一層別墅圖片及設計圖,經典實用,占地170平
占地:170平方米
占地105平實用三層樓房別墅設計圖紙,造型方正簡單大氣
占地:105平方米
農村小戶型三層復式樓房設計圖,100平左右
占地:100平方米
農村二層半別墅圖片大全,二層半別墅設計圖推薦
占地:160平方米
10米×13米最好看的農村三層樓房圖,客廳中空
占地:124平方米
小型雙拼一層平房設計圖,外觀古樸
占地:100平方米
2026年簡單實用二層農村別墅,經典大氣真的香
占地:165.98平方米
新中式三層別墅,旋轉樓梯+挑空客廳,高級感拉滿
占地:125平方米
戶型簡單實用的三層農村房屋設計圖紙,復式結構,大面積開窗,
占地:170平方米
農村二層小別墅自建房屋設計圖,客廳中空,占地150平米
占地:150平方米
鄉村一層房屋設計圖,養老還是一層好,多臥室的設計
占地:195平方米
推薦:10套新農村自建房設計圖,2026年最新設計
閱讀次數:4825737次
100套鄉村別墅圖片大全,2026年最新設計
閱讀次數:2492203次
6款農村蓋一層平房的設計圖,10萬元就能建起來
閱讀次數:1852637次
這11個一層農村自建房別墅火爆了朋友圈!我最喜歡戶型十!你呢
閱讀次數:750268次
農村6萬元建一層小別墅圖,你敢相信嗎
閱讀次數:567686次
農村5萬塊就能自建房,6套普通房子設計圖分享,你沒看錯!
閱讀次數:419410次
8套農村漂亮三間平房圖片,非常適合在農村修建!
閱讀次數:411197次
農村自建房化糞池怎么做?附方案及施工過程
閱讀次數:391783次
農村一層三間平房設計圖,告別土氣養老房,讓人忍不住點贊
閱讀次數:350581次
新農村二層樓房圖片造價12萬,挑一套回家建房吧!
閱讀次數:349126次
