
|
婆家老家的房子太舊了,準備把房子推倒重建。我在網上給他們看好了圖紙,準備拿15萬給公婆建房子,沒想到婆婆卻說少了,15萬建房根本不夠。
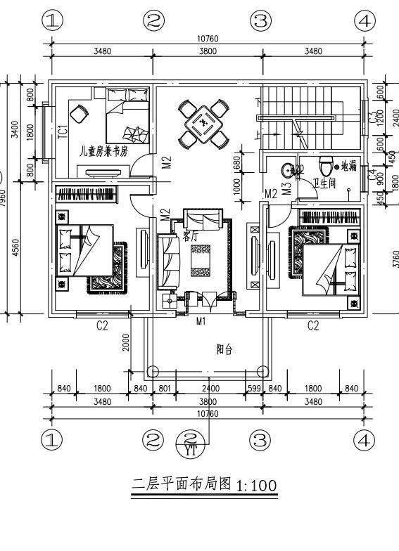
這是我看的圖紙,二層的農村建房的設計,外觀簡單大氣,公婆也很喜歡,占地面積90平方米,一層有一有2間臥室、客廳、餐廳和衛生間,準備餐廳旁邊的臥室改為廚房。二層有三間臥室和客廳、衛生間,公婆住,我們偶爾回來住剛好。
我問了一下他們說主體造價15萬左右,我不知道農村現在建房到底需要多少錢,15萬真的少了嗎,大家來說說你們那現在農村建一棟這樣的房子需要多少錢呀? 圖紙之家-專注農村別墅/自建房設計18年,集合國內200余位經驗豐富的設計師,被評為口碑最好的農村建筑設計公司! |

10X13米新款歐式三層別墅樓房設計圖,外觀清新明亮
占地:140平方米
農村二層半兄弟共建房別墅設計圖,復式戶型帶車庫,面寬24米
占地:312平方米左右
110平農村二層房屋設計圖,新農村自建房戶型推薦
占地:110平方米
四開間兩層別墅設計圖,農村自建住著舒適的好方案!
占地:187.04平方米
帶地下室一層別墅設計方案,功能布局齊全實用
占地:256.5平方米
帶地下室三層豪華大氣新農村房屋設計圖,占地150平米左右
占地:150平方米
15×12米一層農村寶藏戶型,適合養老房,看完鄰居直接要圖紙!
占地:180平方米
兩層半20多萬復式農村自建房設計圖,經典不過時戶型
占地:120平方米
現代風格精致兩層農村自建房住宅設計圖,帶儲藏室
占地:163平方米
私人二層農村小樓設計圖,外觀靚麗,富有現代氣息
占地:160平方米
農村60萬三層別墅新款式設計圖,外觀和實用性并駕齊驅
占地:170平方米
L字型自建房屋設計圖,一層別墅類型,外觀效果圖漂亮
占地:188.62平方米
100平簡單三層房屋設計圖紙,新農村自建推薦圖紙
占地:100平方米
100平內簡單精致的小戶型自建房二層設計圖,旋轉樓梯
占地:97.08平方米
左右對稱的歐式高端三層別墅設計圖,外觀氣派、豪華
占地:200平方米
兄弟雙拼別墅設計戶型圖及設計方案圖,帶外觀效果圖,外觀好看
占地:185平方米(單棟)
農村蓋平房設計大全圖,鄉下建房一層戶型圖及效果圖
占地:160平方米
中式復古四層別墅房屋設計圖紙,含外觀效果圖
占地:90平方米
帶院子的一層農村別墅設計圖,造價不高,養老房首選!
占地:144.819平方米
鄉村20萬內三層別墅房屋設計圖,面積適中、戶型經典
占地:100平方米
推薦:10套新農村自建房設計圖,2026年最新設計
閱讀次數:4825737次
100套鄉村別墅圖片大全,2026年最新設計
閱讀次數:2492203次
6款農村蓋一層平房的設計圖,10萬元就能建起來
閱讀次數:1852637次
這11個一層農村自建房別墅火爆了朋友圈!我最喜歡戶型十!你呢
閱讀次數:750268次
農村6萬元建一層小別墅圖,你敢相信嗎
閱讀次數:567686次
農村5萬塊就能自建房,6套普通房子設計圖分享,你沒看錯!
閱讀次數:419410次
8套農村漂亮三間平房圖片,非常適合在農村修建!
閱讀次數:411197次
農村自建房化糞池怎么做?附方案及施工過程
閱讀次數:391783次
農村一層三間平房設計圖,告別土氣養老房,讓人忍不住點贊
閱讀次數:350581次
新農村二層樓房圖片造價12萬,挑一套回家建房吧!
閱讀次數:349126次
