
|
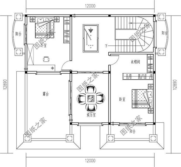
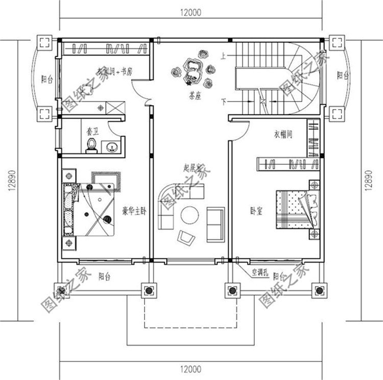
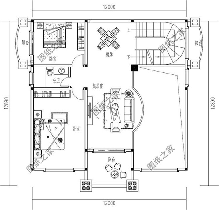
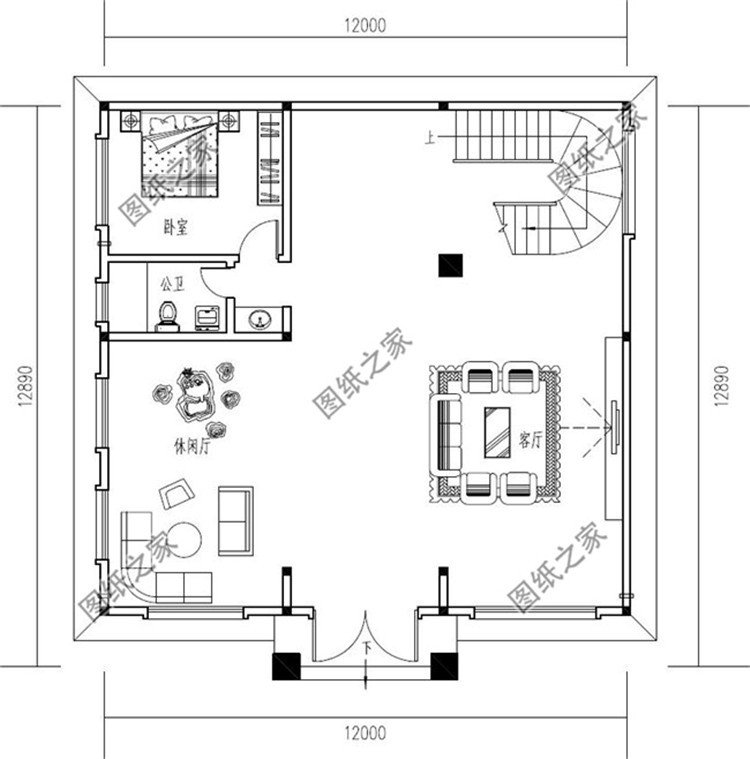
不知道大家現在都去過農村嗎?時代的發展,已經讓農村人的生活越來越好,他們居住的房子也有了翻天覆地的變化,蓋起的洋房樣式也層出不窮,一個賽一個的好看。今天給大家推薦三款大氣漂亮適合農村自建的新農村建房四層圖紙設計圖,非常適合鄉村自建,家里有宅地的一定收藏,以后回家就這么蓋。 方案一:農村四層別墅設計圖,戶型簡單造價低,適合農村自建圖紙介紹:這款四層別墅占地165平米,戶型簡單造價低,非常適合農村自建,每層住一戶,相當大氣,帶坡屋頂農村別墅,大落地窗,簡約清新,豪華戶型,效果圖外墻采用真石漆裝飾,簡潔大方。羅馬柱和一些細部構建,突顯房子的雄偉和莊重。 占地面積:16.50m*11.30m,165平方米左右; 建筑層高:四層; 建筑高度:16.76米(含屋頂); 設計功能: 一層戶型:客廳、神位、后廳、餐廳、廚房、臥室、衛生間、臥室(帶衛生間)、化糞池; 二層戶型:客廳、餐廳、廚房、臥室(帶衛生間)x2、臥室、衛生間、露臺、陽臺; 三層戶型:客廳、餐廳、廚房、臥室(帶衛生間)x2、臥室、衛生間、陽臺; 四層戶型:客廳、餐廳、廚房、臥室(帶衛生間)、臥室、衛生間、露臺; ![]() ![]() ![]() ![]() ![]() 方案二:農村四層別墅設計圖,占地141平米,外觀簡歐風格設計圖紙介紹:這款新農村四層獨棟別墅占地141平米左右,戶型簡單實用,簡歐外觀風格設計,外墻面色彩運用比較豐富,一二層主要用黃色真石漆,三四層主要用淡黃色真石漆裝飾,門柱采用粉色真石漆,再搭配紅色屋頂,樓層高且造型美,顯得非常氣派。室內帶豪華套房、棋牌室以及娛樂室,這樣生活不會顯得太枯燥,這樣的房子建在農村,肯定人人羨慕。 占地面積:12m*12.89m,141平方米左右; 建筑層高:四層; 建筑高度:16.62米(含屋頂); 設計功能: 一層戶型:客廳、休閑廳、臥室、衛生間; 二層戶型:客廳上空、起居室、棋牌室、臥室x2、衛生間、陽臺; 三層戶型:起居室、茶座、豪華主臥(帶衛生間、衣帽間、書房)、臥室(帶衣帽間)、陽臺; 四層戶型:娛樂室、臥室(帶衣帽間)、臥室、露臺; ![]() ![]() ![]() ![]() ![]() 方案三:農村四層自建樓房設計圖,占地163平米左右,歐式風格設計圖紙介紹:這款農村四層樓房占地163平米,室內通透+多陽臺設計,歐式風格設計,外墻面主要用米色面磚、少量褐色面磚搭配浮雕來裝飾,搭配藍色琉璃瓦,時尚簡約,入戶門處用到一個小臺階,樓層高且造型美,顯得非常氣派。一層兩間帶獨衛的父母房設計,餐廳處側開門,加強室內的通透性,同時也是方便進出串門兒。二層和三層這中間兩層的布局是一樣的,親朋好友較多的家庭,有足夠的休息場所。三層配置了觀景式露臺,擴大主人的活動空間。 占地面積:12.6m*14.4m,163.84平方米左右; 建筑層高:四層; 建筑高度:17.238米(含屋頂); 設計功能: 一層戶型:堂屋\客廳、廚房、餐廳、儲藏間、臥室(帶衛生間)x2、衛生間; 二層戶型:客廳、臥室(帶衛生間)x2、臥室x2、衛生間、陽臺x2; 三層戶型:客廳、臥室(帶衛生間)x2、臥室x2、衛生間、陽臺x2; 四層戶型:客廳、臥室x4、衛生間、露臺x4; ![]() ![]() ![]() ![]() ![]() 喜歡這三款戶型的朋友可要收藏好了,等到建房的時候拿出來。
圖紙之家-專注農村別墅/自建房設計18年,集合國內200余位經驗豐富的設計師,被評為口碑最好的農村建筑設計公司! |

14x12.5米二層農村別墅設計圖,布局完美獨立,顏值高又實用
占地:153.95平方米
農村一層平房設計圖及效果圖,一層房屋設計方案推薦
占地:270平方米
115平漂亮的三層別墅設計方案,外觀圖片大氣、精致
占地:115平方米
帶車庫的新中式風格一層別墅設計圖,鳥語花香回家建房
占地:184平方米
現代簡約時尚二層帶超大露臺農村別墅戶型,既可以休閑又可晾曬
占地:100.06平方米
2026年新款一層住宅別墅設計圖紙,中式風格漂亮極了
占地:207平方米
三層帶車庫樓中樓建房別墅圖紙,占地130平米左右,戶型室內布局
占地:130平方米
農村二層帶車庫四合院別墅設計圖,新中式外觀圖片,戶型實用方
占地:247平方米
五開間農村豪華三層別墅設計圖,大格局大氣派,大家庭建房首選
占地:227.04平方米
四開間2層別墅設計圖,外觀圖配色清新淡雅,占地200平米
占地:200平方米
小占地二層徽派別墅設計圖,白墻黛瓦韻味十足,太氣派了
占地:89.6平方米
雅致的鄉下二層蓋別墅設計圖紙,造價35萬左右
占地:178平方米
獨立餐廳廚房,平屋頂現代風格三層別墅設計圖
占地:159.02平方米
歐式大戶型三層農村房屋設計圖紙,歐式住宅圖推薦
占地:178平方米
兄弟倆二層雙拼別墅設計圖紙,一層共用,設計新穎
占地:180平方米
二層農村兄弟雙拼別墅設計圖,一墻之隔互不干擾,鄰居看了都喜
占地:164.24平方米
兄弟四間三層雙拼別墅設計圖,造價40萬左右
占地:210平方米
大二間三層別墅戶型圖,三層新農村自建房設計圖紙及效果圖
占地:116平方米
農村四層樓房設計圖,占地120平方米,歐式風格,高端大氣
占地:120平方米
140平三層自建房別墅設計圖,外觀圖大氣、美觀
占地:140平方米
推薦:10套新農村自建房設計圖,2026年最新設計
閱讀次數:4825737次
100套鄉村別墅圖片大全,2026年最新設計
閱讀次數:2492203次
6款農村蓋一層平房的設計圖,10萬元就能建起來
閱讀次數:1852637次
這11個一層農村自建房別墅火爆了朋友圈!我最喜歡戶型十!你呢
閱讀次數:750268次
農村6萬元建一層小別墅圖,你敢相信嗎
閱讀次數:567686次
農村5萬塊就能自建房,6套普通房子設計圖分享,你沒看錯!
閱讀次數:419410次
8套農村漂亮三間平房圖片,非常適合在農村修建!
閱讀次數:411197次
農村自建房化糞池怎么做?附方案及施工過程
閱讀次數:391783次
農村一層三間平房設計圖,告別土氣養老房,讓人忍不住點贊
閱讀次數:350581次
新農村二層樓房圖片造價12萬,挑一套回家建房吧!
閱讀次數:349126次
