
|
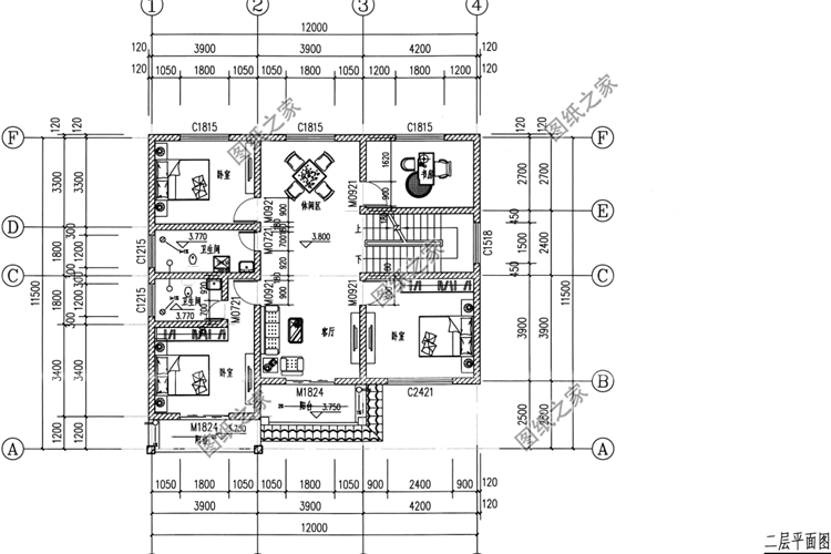
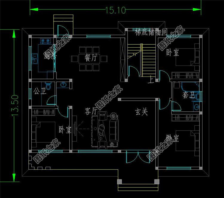
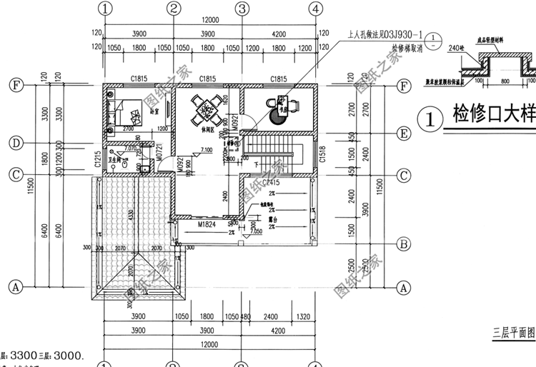
對大部分人來說,家是這個世界上最重要的地方,所以大家都愿意花費時間和精力在建房這件事情上,而且小編發現農村建房很多人都偏向于二層半戶型,一方面大方有氣勢,另一方面,一二樓居住三樓可以作為儲藏間。那么房子怎樣設計才能讓人眼前一亮了,分享三款別墅,千萬不要錯過哦。 戶型一:農村二層半別墅設計圖,占地168平米左右,主體30來萬圖紙介紹:本戶型占地160平米左右,面寬15米左右,主體不到30萬。屋頂多采用灰色的斜坡頂,和墻體的色彩巧妙搭配,可體現歐式建筑的古典美;別墅大門采用的是典型的歐式風格,兩邊豎著兩個大石柱;外墻涂抹采用的是真石漆,裝修完盡顯恢宏一層設有3間臥室,可供行動不便的老人住還有照顧老人的保姆住二層設有4間臥室,足夠一般家庭使用,就算親戚朋友串門也可以安排住下閣樓娛樂區,陽臺,還有大露臺,坐在一起喝喝茶聊聊天,搓搓麻將,好不愜意 ![]() ![]() ![]() ![]() 戶型二:農村二層半自建別墅設計圖,占地96平米,面寬不到8米圖紙介紹:這款二層半自建別墅占地96平米左右,面寬不到8米,雖然面寬小,看起來卻很大氣,好看不貴,外墻顏色奔放自然,挑空客廳的落地窗設計,讓整個房子看起來更有氣勢,采光通透,陽光充沛。陽臺欄桿起到了裝飾作用,讓人移不開眼睛。一層的玄關有隔斷作用,保護主人的隱私,挑空客廳有視覺延伸感。陽臺可以擺放盆栽,享受田園美景。三樓大露臺種植花草樹木,營造空中花園,放個雨蓬,擺放桌椅,遮陽擋雨,看書飲茶聊天,這是生活對主人的一種尊重。 占地面積:7.8m*12.3m,96.21平方米左右; 建筑層高:三層; 建筑高度:12.145米(含屋頂); 設計功能: 一層戶型:入戶門廳、客廳、餐廳、廚房、臥室、衛生間; 二層戶型:客廳上空、起居室、臥室x2、衛生間、陽臺; 三層戶型:臥室x2、衛生間、露臺; ![]() ![]() ![]() ![]() 戶型三:農村二層半別墅設計圖,占地120平米左右,主體造價20來萬圖紙介紹:這款二層半別墅占地120平米左右,主體造價20來萬,外型設計結合傳統的中式和當下流行的歐式,簡單大氣,時尚個性。露臺空間大,種植花草,營造空中花園的氛圍,視覺效果極佳。 占地面積:12.0m*11.5m,一層占地120平方米左右; 建筑層高:三層; 建筑高度:11.9米(含屋頂); 設計功能: 一 層:客廳、廚房、餐廳、臥室、娛樂室、衛生間; 二 層:客廳、臥室(帶衛生間)、臥室x3、衛生間、休閑區、書房、陽臺; 三 層:臥室(帶衛生間)、休閑區、書房、大露臺、陽臺; ![]() ![]() ![]() ![]() 不知道這三款戶型大家喜歡哪一款?歡迎下方評論留言。
圖紙之家-專注農村別墅/自建房設計18年,集合國內200余位經驗豐富的設計師,被評為口碑最好的農村建筑設計公司! |

奢華歐式二層樓房設計圖,入戶設有玄關,一層大窗設計
占地:190平方米
造價30萬多的三層簡歐新農村別墅設計施工圖紙及效果圖
占地:133平方米左右
120平方兩層房子設計圖及圖片,外觀大方好看,內部結構合理
占地:120平方米
120平米左右農村房屋設計圖占地面積適宜,外觀舒適大氣
占地:120平方米
可以傳家的新中式二層別墅,經典耐看,再過幾十年也不過時
占地:146.81平方米
農村二層舒適好房,這款四開間別墅設計圖真的很不錯
占地:220.46平方米
兩戶190平方米新農村雙拼別墅全套設計方案及效果圖
占地:191平方米
小L型新款二層別墅設計圖,復式客廳旋轉樓梯,14米乘13米
占地:182平方米
簡單實用農村自建小樓二層別墅設計圖,戶型造型簡約好看
占地:146平方米
120平現代實用三層別墅房屋設計圖,含外觀效果圖
占地:120平方米
古典韻味的四層房屋設計圖,占地140平米左右,這樣的外觀配上紅
占地:140平方米
一層半中式合院別墅設計圖,帶配房,有庭有院有品位
占地:135平方米左右
進深15米新農村三層房屋設計圖紙,農村住宅設計圖集
占地:128平方米
帶屋頂平臺的一層農村小別墅圖,有閣樓有露臺
占地:152平方米
三層帶地下室+旋轉樓梯別墅設計圖紙,復式挑空客廳
占地:多種戶型
農村二層住宅設計圖,大窗戶客廳,一起享受大面積采光的溫暖
占地:220平方米
簡單經濟一層自建養老房,12米乘9.5米,溫暖舒適施工簡單
占地:103.2平方米
豪華別墅設計圖紙(含效果圖),三層歐式別墅方案精選
占地:117平方米
帶堂屋設計一層三合院設計圖,白墻黛瓦古韻悠悠,比高層舒服接
占地:179.37平方米
最好看大氣的豪華三層樓房設計圖,客廳中空,旋轉樓梯
占地:340平方米
推薦:10套新農村自建房設計圖,2026年最新設計
閱讀次數:4825737次
100套鄉村別墅圖片大全,2026年最新設計
閱讀次數:2492203次
6款農村蓋一層平房的設計圖,10萬元就能建起來
閱讀次數:1852637次
這11個一層農村自建房別墅火爆了朋友圈!我最喜歡戶型十!你呢
閱讀次數:750268次
農村6萬元建一層小別墅圖,你敢相信嗎
閱讀次數:567686次
農村5萬塊就能自建房,6套普通房子設計圖分享,你沒看錯!
閱讀次數:419410次
8套農村漂亮三間平房圖片,非常適合在農村修建!
閱讀次數:411197次
農村自建房化糞池怎么做?附方案及施工過程
閱讀次數:391783次
農村一層三間平房設計圖,告別土氣養老房,讓人忍不住點贊
閱讀次數:350581次
新農村二層樓房圖片造價12萬,挑一套回家建房吧!
閱讀次數:349126次
