
|
隨著時代的發展,人民生活水平的提高,農民朋友的住宅紛紛從土磚加瓦式轉變為新式農村小別墅類型,同時大多數家庭蓋房都是集合全家人的積蓄,掙錢不容易,花錢自然也要花的合理,所以現在很多農村你會發現小別墅林立,一棟賽一棟的漂亮大氣,而且現在蓋房子不是簡簡單單砌起來就可以,人們都是先定做好要建的別墅圖紙,根據圖紙的效果去建,而且要經濟,實用,美觀大方才可以,小編今天給大家整理6款建房方案,主體都是20萬左右的小別墅,有想建房的可以收藏參考一下。 第一款: 精致小巧新農村二層別墅設計圖紙,占地90平米左右,造價15萬左右,經濟實用型的別墅比起歐式和中式風格的豪華,更耐看和具有情懷。 占地面積:9.8m*9.3m,90平方米左右; 建筑層高:二層; 建筑高度:10.8米; 設計功能: 一層別墅戶型:客廳、餐廳、廚房、臥室、衛生間、儲藏間; 二層別墅戶型:客廳、臥室x2、衛生間、書房、陽臺;
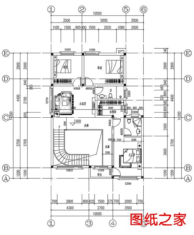
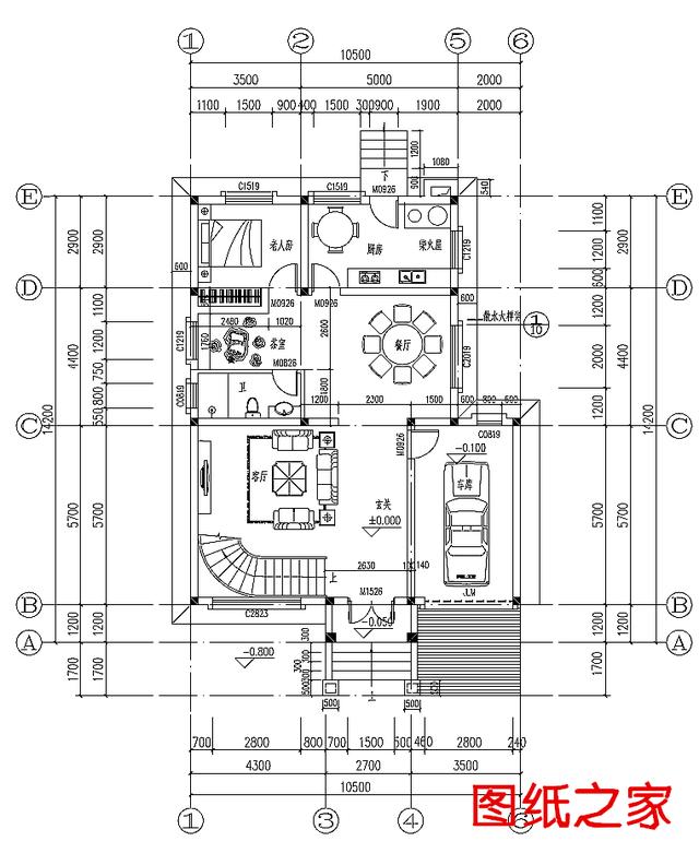
第二款: 此款小別墅外觀比較簡單大氣,裝飾不多,但暖色調的別墅卻給人很精致和溫馨的感覺,帶車庫的設計也非常實用。 占地面積:10.5m*14.2m,126.44平方米; 建筑層高:二層; 建筑高度:9.475米; 設計功能: 一層別墅戶型:玄關、客廳、餐廳、廚房(柴火屋)、老人房、衛生間、茶室、車庫; 二層別墅戶型:小客廳、臥室x2、衛生間、主人房(含衣帽間與衛生間)陽臺;
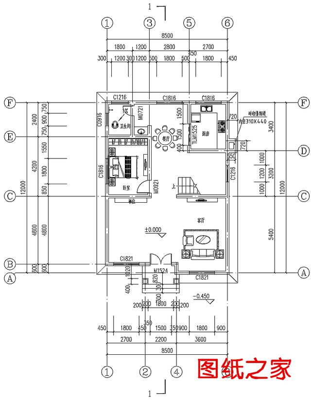
第三款: 該款別墅造型大氣耐看,坡屋頂錯落有致,弧形窗戶造型豐富,室內空間布局合理緊湊,動靜分離,提升居住舒適性。 占地面積:8.5m*12m,104.03平方米; 建筑層高:二層; 建筑高度:9.483米; 設計功能: 一層別墅戶型:客廳、神位、餐廳、廚房、臥室、衛生間; 二層別墅戶型:休閑空間、陽臺、衛生間、臥室、主臥(含衛生間與陽臺)臥室(含衣帽間);
第四款: 這棟別墅以溫馨為主題風格,凹凸的墻體給人視覺非常大氣,一層文化磚的設計顏色使用的得當,使其看起來相當的自然清新,頗有一番樸實無華的風雅。別墅以黃、樹棕、紅為主體顏色,細微處皆以白色銜接,設計者的細膩匠心讓這棟別墅渲染出一種家的溫馨。 占地面積:10.5m*9.9m,163.62平方米; 建筑層高:二層; 建筑高度:13.228米; 設計功能: 一層別墅戶型:玄關、客廳、廚房、餐廳、臥室*2、衛生間; 二層別墅戶型:小客廳、書房、臥室*4、衛生間、陽臺;
第五款: 本款農村自建別墅外觀設計清新自然,一層外立面采用綠色文化石,二層采用米色墻漆裝飾(白色橫線條的裝飾),桔紅色的坡面屋頂,有多面體外窗戶,超大露臺,采光效果極佳。 占地面積:14m*11.8m,165.2平方米; 建筑層高:二層; 建筑高度:9.9米; 設計功能: 一層別墅戶型:車庫、客廳、臥室、餐廳、廚房、多功能區、衛生間、儲存室; 二層別墅戶型:休息區、主臥(含衛生間)衛生間、書房、臥室*2、露臺;
第六款: 這款別墅設計獨特美觀,一層外立面采用仿古文化石裝飾,二層采用白色石漆,桔色坡面屋頂,還有純白色的腰線,鐵藝欄桿,色彩搭配協調清新,正立面采用大窗玻璃裝飾,使室內采光通風性能極佳。別墅屋頂的大露臺還可以盡情觀賞風景,美不勝收。 占地面積:11.1m*11.4m,建筑面積:215平方米; 建筑層高:二層; 建筑高度:7.85米; 設計功能: 一層別墅戶型:門廳,客廳,臥室*2,餐廳,廚房,衛生間,儲藏間; 二層別墅戶型:主臥(含主衛)臥室、衛生間、露臺*2、花壇;
6款別墅戶型,第三款建的最多,因為它造價經濟,布局實用,緊湊,非常適合人口少的家庭建造,親你喜歡哪款呢? 圖紙之家-專注農村別墅/自建房設計18年,集合國內200余位經驗豐富的設計師,被評為口碑最好的農村建筑設計公司! |

275平方米新農村雙拼樓中樓戶型別墅設計圖紙及效果圖21X14米
占地:275平方米
造價12萬一層簡單自建房設計戶型圖,占地面積140平方米左右
占地:137.76平方米
農村小洋樓設計圖及效果圖,二層樓房設計圖
占地:120平方米
12.8乘10米一層平房別墅設計圖,四室二廳南北通透
占地:128.85平方米
兩層半雙拼別墅設計方案,超大露臺+歐式風格,好設計別錯過!
占地:175.8平方米
120平方米新農村二層自建房屋設計圖紙大全14x9米
占地:120平方米
農村平屋頂中式合院設計圖,帶車庫帶庭院
占地:210平方米
農村二層半別墅設計圖,簡單實用,造價低
占地:140平方米
網紅中式一層三合院別墅設計圖,白墻黛瓦古典大氣,讓人心曠神
占地:248.82平方米
一層田園風坡屋頂平房設計圖,造型漂亮時尚
占地:134.9平方米
農村實用三層樓房圖片,占地140平米左右,客廳中空
占地:140平方米
260平方米兩層帶車庫四合院房屋設計圖紙及效果圖
占地:260平方米
一層中式四合院別墅設計方案圖,含外觀效果圖
占地:360平方米含院子
背面不開窗二層別墅設計圖,對稱設計簡單好看,眾多建房者的選
占地:183.79平方米
農村三間三層半別墅設計圖,舒適寬敞時尚經濟,居住生活方便舒
占地:168.29平方米
鄉村三層簡單自建房子設計圖,全部建好34萬左右,外觀簡潔
占地:127.912平方米
高端三層獨棟歐式別墅效果圖,帶大衛生間,CAD全套施工設計圖
占地:158平方米
165平方米三層雙拼農村房屋設計圖大全14x12
占地:168平方米
農村17萬元一層自建別墅設計圖,外觀簡潔,戶型方正
占地:163平方米
獨棟兩層歐式別墅設計圖紙(效果圖+建筑施工圖)
占地:125平方米
推薦:10套新農村自建房設計圖,2026年最新設計
閱讀次數:4825737次
100套鄉村別墅圖片大全,2026年最新設計
閱讀次數:2492203次
6款農村蓋一層平房的設計圖,10萬元就能建起來
閱讀次數:1852637次
這11個一層農村自建房別墅火爆了朋友圈!我最喜歡戶型十!你呢
閱讀次數:750268次
農村6萬元建一層小別墅圖,你敢相信嗎
閱讀次數:567686次
農村5萬塊就能自建房,6套普通房子設計圖分享,你沒看錯!
閱讀次數:419410次
8套農村漂亮三間平房圖片,非常適合在農村修建!
閱讀次數:411197次
農村自建房化糞池怎么做?附方案及施工過程
閱讀次數:391783次
農村一層三間平房設計圖,告別土氣養老房,讓人忍不住點贊
閱讀次數:350581次
新農村二層樓房圖片造價12萬,挑一套回家建房吧!
閱讀次數:349126次
