
|
開間為18米,進深20米的三層別墅,帶地下室,在農村算不錯的宅基地和別墅了,現在有很多農村自建別墅的都會考慮建地下室,有些地勢前后高差的原因,可以作為停車庫,有些建地下室可以做家庭影視廳、健身房、酒窖等,畢竟大家的生活水平提高,要求也不一樣了; 下面有幾款比較適合您的地塊和要求,一款歐式、一款新中式的,希望能夠幫到您!更多別墅圖紙可關注我們!
根據您地塊的大小,前后左右還有空間圍合成庭院;一層2間臥室、入戶堂屋很適合農村;當然不需要堂屋的可和客廳的空間在一起,形成大客廳;
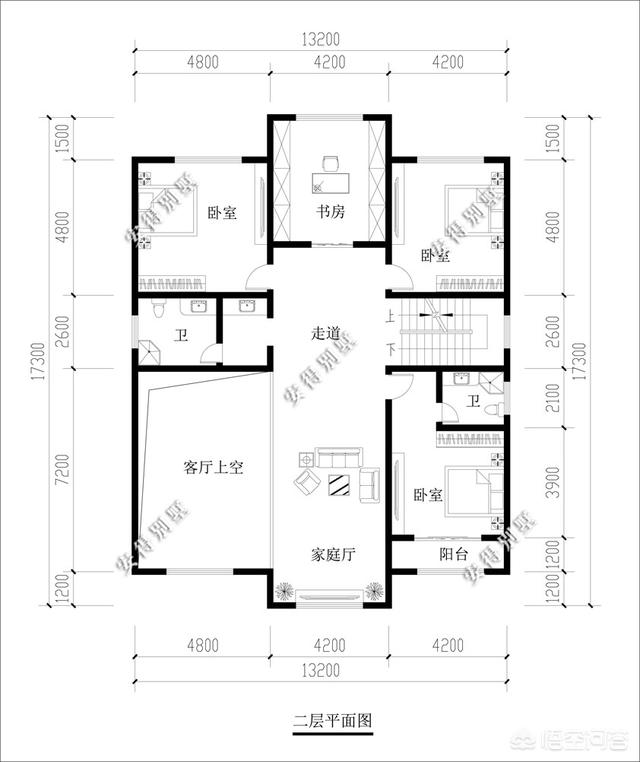
客廳為鏤空的,二層3間臥室、1間書房;
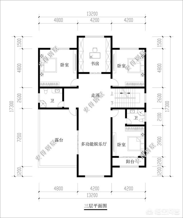
三層平面基本和2層一樣,多出個朝南的大露臺;戶型方正實用;
第二款:新中式風格
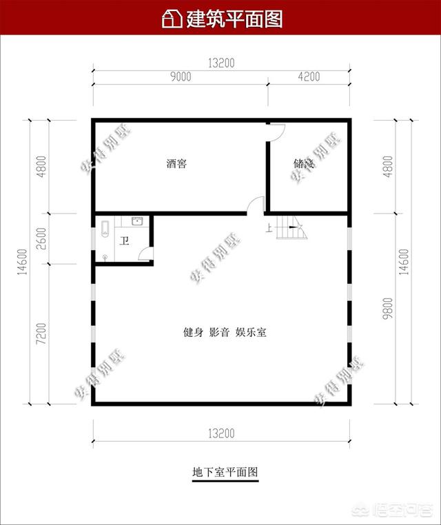
地下室平面開敞式,可根據自己的意愿和喜好進行分隔;
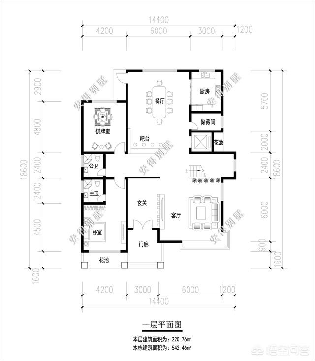
此款平面帶電梯,給別墅的上下帶來極大的方便;一層2間房間,客廳和餐廳空間都比較寬敞;
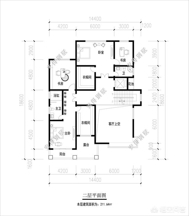
客廳鏤空,二層主要為2間臥室套房,配有書房、臥室、衛生間、衣帽間;居住空間相當舒適;
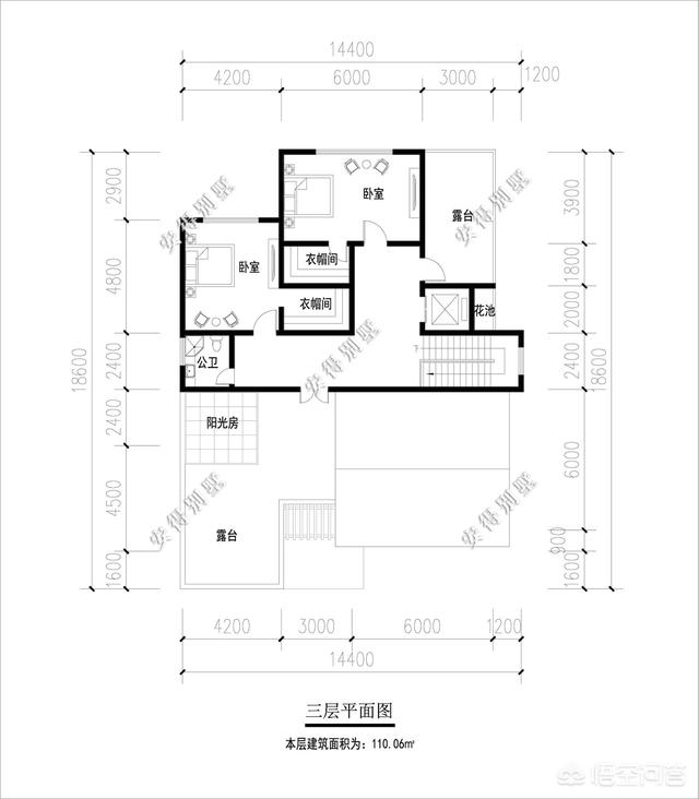
三層為2間臥室,均配有衣帽間;朝南的大露臺,可放置一個陽光房,冬天的福利;
========================= 這個宅基地挺大的,很難得,因此也要珍惜,有錢的情況下建豪華大氣點的別墅!下面推薦一款別墅戶型參考,留點地方做個庭院更好! 圖紙之家-專注農村別墅/自建房設計18年,集合國內200余位經驗豐富的設計師,被評為口碑最好的農村建筑設計公司! |

140平方米新農村四層房屋設計圖紙,農村自建推薦
占地:140平方米
實用型農村120平米二層樓房設計圖,小巧美觀實用
占地:120平方米
多臥室復式二層別墅房屋設計圖,含外觀效果圖
占地:175平方米
80平方米三層農村自建民房設計圖,小戶型別墅方案
占地:81平方米
帶獨立堂屋的農村自建房設計,二層別墅設計方案圖
占地:109平方米左右
二層新中式別墅設計施工圖,廚房在配房,占地140平米
占地:141平方米
豪華大氣農村三層別墅圖紙,帶車庫、露臺,占地200平方米左右
占地:207平方米
經典三層小別墅設計圖紙(效果圖+全套cad建筑圖),新農村自建
占地:120平方米
面寬8米多的三層農村別墅設計圖,小開間宅基地推薦
占地:112.82平方米
農村小洋樓設計圖及效果圖,二層樓房設計圖
占地:120平方米
兩戶250平方米農村豪華歐式三層兄弟雙拼別墅設計圖
占地:251平方米
農村三間二層別墅設計圖,外觀簡約左右對稱
占地:170.06平方米
三層歐式自建房別墅設計方案,11x11米洋氣實用,飽受大家好評
占地:127平方米
回老家蓋房就選這款新中式一層設計,16乘8米大小正合適
占地:130.1平方米
農村二層半別墅圖片大全,二層半別墅設計圖推薦
占地:160平方米
時尚典雅歐式三層自建房設計圖,美觀大氣簡單舒適,好看到沒得
占地:153.12平方米
農村2026新式三間二層樓房,12×11.6米,戶型經典,造價實惠
占地:120平方米
現代風平屋頂三層半農村小別墅設計圖,面寬僅7米
占地:90平方米
90平方米新農村住宅設計二層小別墅設計圖紙11x9米
占地:90平方米
農村二層中式小三合院別墅全套設計圖,民族特色風格
占地:122平方米
推薦:10套新農村自建房設計圖,2026年最新設計
閱讀次數:4825737次
100套鄉村別墅圖片大全,2026年最新設計
閱讀次數:2492203次
6款農村蓋一層平房的設計圖,10萬元就能建起來
閱讀次數:1852637次
這11個一層農村自建房別墅火爆了朋友圈!我最喜歡戶型十!你呢
閱讀次數:750268次
農村6萬元建一層小別墅圖,你敢相信嗎
閱讀次數:567686次
農村5萬塊就能自建房,6套普通房子設計圖分享,你沒看錯!
閱讀次數:419410次
8套農村漂亮三間平房圖片,非常適合在農村修建!
閱讀次數:411197次
農村自建房化糞池怎么做?附方案及施工過程
閱讀次數:391783次
農村一層三間平房設計圖,告別土氣養老房,讓人忍不住點贊
閱讀次數:350581次
新農村二層樓房圖片造價12萬,挑一套回家建房吧!
閱讀次數:349126次
