戶型一


這款為傳統的鄉村風格,立面造型結合傳統民居的構成要素,為抽象化的硬山頂造型,形成現代、古樸的鄉村新風貌。建筑外觀以紅和灰色為主,局部以白色點綴,建筑室內結合樓梯設有兩層通高空間,屋頂為玻璃頂,形成豐富的空間和斑駁的光影效果。


院落所需面積:
開間8.64米
進深25.54米
占地面積219.67平
建筑所需面積:
開間8.64米
進深14米
建筑面積196.12平方米

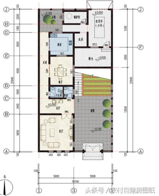
戶型二


這款戶型適用、經濟、綠色、美觀,兩層磚混結構,建筑規模適中,不但滿足生活需要,而且滿足了生產要求并符合農村的生活習慣,在保證了基本生活功能的基礎上,安排了車庫、糧倉、農具間等生產性功能房間。各個房間的面積適用,實用性強,分區明確,使用率高。
院落所需面積:


開間10.74米
進深21.64米
建筑所需面積:
開間10.74米
進深21.64米

戶型三


戶型簡約大方,以常見的三開間宅基地為用地范圍,主體和院落組成,前院布置機動車停放及家庭活動需求,機動車停放區以花架圍合,種植藤蔓植物后既可滿足遮陰,也可滿足采光。后院為生活庭院,主要為滿足家禽養殖及沼氣池設置。


院落所需面積:
開間11.2米
進深18.4米
占地面積206.08平
建筑所需面積:
開間11.2米
進深14.8米
建筑面積170.24平方米








































