
|
最近給大家分享了很多別墅效果圖,有不少房友表示設計效果是很美,但沒看到建成的實景都不太放心,小編也能理解各位房友的心情。 漂亮的別墅圖紙鋪天蓋地,建好的別墅實景卻很少見,今天小編就給大家帶來2款農村別墅實景,看看和效果圖相差多大? 戶型1
這款別墅造型高低錯落有致,多陽臺多露臺,室內布局合理,挑空客廳和弧形樓梯,在農村建造這樣的房子,全村人哪有不羨慕的? 平面圖
▲1層平面
▲2層平面
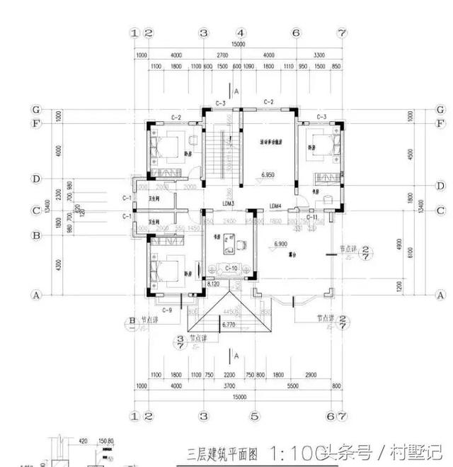
▲3層平面 實景圖 這棟戶主不知道從哪里學到的,屋檐下裝有燈帶,農村的夜晚本是特別的黑,在這樣情況下開燈更加的亮眼。
在建造過程中戶主做了一些調整,做出來的實景減少了很多露臺。
白天的景色,庭院沒有完全裝修和綠化,相信綠化好了會更好看。
另一個角度看,拍照天氣不太好,實際別墅比照片拍得好看,下面看看類似的另一款歐式農村別墅戶型。 戶型2
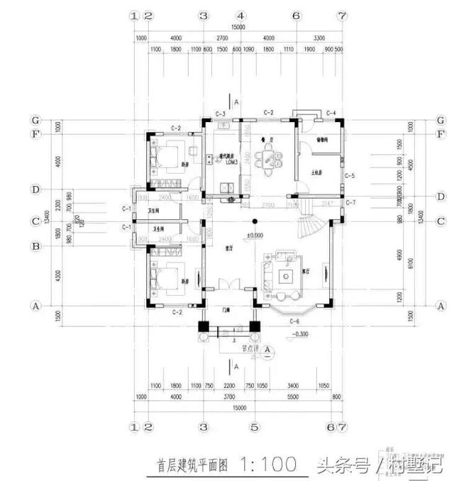
別墅外觀非常大氣華麗,布局傳統和現代相結合,既有現代廚房,又有傳統的堂屋和土灶,有旋轉樓梯和復式客廳,主臥均帶有私衛,功能齊全,舒適又實用。 平面圖
▲1層平面
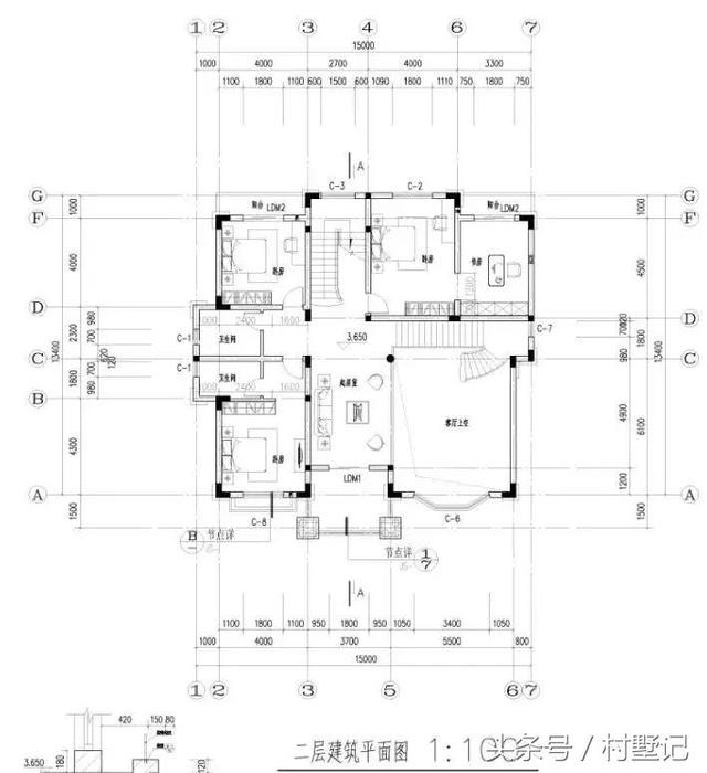
▲2層平面
▲3層平面 實景圖
別墅外墻粉刷好水泥的樣子,旁邊還建了個小房子。
冬天別墅屋頂和地面都飄落了雪花,非常唯美。
春天別墅門前的花開得非常鮮艷,一派熱鬧非凡,勢頭賽過綠化樹。 圖紙之家-專注農村別墅/自建房設計18年,集合國內200余位經驗豐富的設計師,被評為口碑最好的農村建筑設計公司! |

廚房餐廳在配房的歐式三層農村別墅設計方案,華麗又宜居
占地:177.58平方米
高端大氣三層半別墅客廳挑空設計,豪華農村自建房圖
占地:179.52平方米
120平農村三層自建房屋設計圖,旋轉樓梯復式別墅戶型方案
占地:119.23平方米
簡單大方二層小別墅設計圖,占地180平米,造型美觀,構造整齊有
占地:180平方米
三層平屋頂別墅房屋設計圖及外觀效果圖
占地:150平方米
造價便宜的二層雙拼別墅設計圖,造型簡約大氣,進深10米
占地:SP23059
自建房共堂屋雙拼別墅設計圖方案,三層挑空復式戶型
占地:199.5平方米左右
11.5米乘 11.5米自建房:兩層設計 + 戶型方正,誰看誰心動
占地:128.77平方米
300平四層別墅房屋設計圖,含外觀效果圖,大面積、多臥室
占地:261平方米
新農村自建20萬二層小樓外觀圖及戶型圖,簡單大方,漂亮接地氣
占地:130平方米
新款現代一層小別墅設計圖,農村自建平房推薦戶型
占地:多戶型可選
50萬左右農村三層別墅設計圖,歐式的外觀大氣沉穩
占地:150平方米
面寬15米大氣的農村二層復式戶型別墅設計圖紙及外觀圖片
占地:173.28平方米
農村18萬元二層小樓圖,帶開放式車庫
占地:110平方米
面寬15米一層四間現代風別墅,外觀漂亮布局實用,養老度假超巴
占地:180平方米
農村四間兩層別墅房屋設計圖,含外觀圖片
占地:160平方米
歐式大氣新農村三層別墅豪宅設計圖,外觀高端,對稱設計
占地:225平方米左右
大面寬一層別墅設計圖紙,新中式風格兩款戶型
占地:多戶型可選
155平方米二層別墅房屋設計圖,帶獨立車庫
占地:155平方米
一層農村自建房設計,背面不開窗,15乘10米,內部布局實用
占地:多戶型可選
推薦:10套新農村自建房設計圖,2026年最新設計
閱讀次數:4825737次
100套鄉村別墅圖片大全,2026年最新設計
閱讀次數:2492203次
6款農村蓋一層平房的設計圖,10萬元就能建起來
閱讀次數:1852637次
這11個一層農村自建房別墅火爆了朋友圈!我最喜歡戶型十!你呢
閱讀次數:750268次
農村6萬元建一層小別墅圖,你敢相信嗎
閱讀次數:567686次
農村5萬塊就能自建房,6套普通房子設計圖分享,你沒看錯!
閱讀次數:419410次
8套農村漂亮三間平房圖片,非常適合在農村修建!
閱讀次數:411197次
農村自建房化糞池怎么做?附方案及施工過程
閱讀次數:391783次
農村一層三間平房設計圖,告別土氣養老房,讓人忍不住點贊
閱讀次數:350581次
新農村二層樓房圖片造價12萬,挑一套回家建房吧!
閱讀次數:349126次
