
|
現在大多數農村地區建房子的占地尺寸都受到限制,一般都控制在200平米以下。如果家里人比較多的話,一層二層肯定不夠住,所以今天小編推薦給朋友們三款三層半四層別墅設計圖,即使是四代同堂也足夠住了,而且還有空余房間,如果家里來客人了也是可以留宿的,所以家中人多的朋友可以參考這三款別墅。
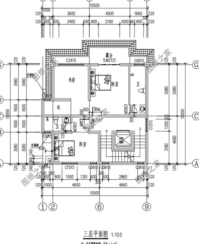
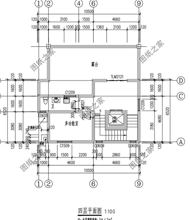
款式一:農村三層半(四層)別墅設計圖,占地95平方米,簡單實用款
圖紙介紹:這款別墅占地只有95平米,帶電梯,雖然占地小,但是樓層高,所以空間不擁擠。而且二層以上的房間都是套間,大大的提升業主的生活品質。 占地面積:9.5m*10.0m,95平方米左右; 建筑層高:四層; 建筑高度:12.7米(含屋頂); 設計功能: 一層戶型展示:客廳、餐廳、廚房、衛生間、電梯; 二層戶型展示:臥室(帶衛生間、衣帽間、露臺)、臥室(帶衛生間)、臥室(帶衣帽間)、衛生間; 三層戶型展示:臥室(帶書房、衣帽間、露臺、衛生間)、臥室(帶衛生間); 四層戶型展示:多功能室、衛生間、大露臺; ![]() ![]() ![]() ![]() ![]() 方案二:農村三層半別墅設計圖,占地90平米左右
圖紙介紹:本戶型占地90平米左右,造價低,外觀非常溫馨;一層客廳寬敞,可供家人放松休息。二層設有3間臥室,大小合理;陽臺和客廳相連,光線充足;三層臥室設置充裕;四層大露臺寬敞,可以打造成空中花園、露臺燒烤等。 占地面積:9.35m*10.62m,92.17平方米左右; 建筑層高:四層; 建筑高度:15.836米(含屋頂); 設計功能: 一層戶型:客廳、廚房、餐廳、茶室、臥室、衛生間; 二層戶型:客廳、臥室(帶衛生間)、臥室x2、衛生間、陽臺; 三層戶型:臥室(帶衛生間)、臥室x3、衛生間、陽臺; 四層戶型:健身房、多功能區、衛生間、露臺、陽臺; ![]() ![]() ![]() ![]() ![]() 款式三:新農村四層樓房設計圖,平屋頂設計,帶屋頂花園
圖紙介紹這款別墅整體外觀看上去非常的豪華氣派,一樓入戶門處設有玄關,隱私性比較好。二至三層布局:臥室帶衛生間和衣帽間,空間很大又具有單獨的實用空間,并且直通陽臺。四層布局:客臥、起居室、洗衣房,公衛,涼亭、大露臺。大面積的室外休閑空間,足夠滿足日常生活。 占地面積:8.2m*13.6m,112平方米; 建筑層高:四層; 建筑高度:15.3米(含屋頂); 設計功能: 一層戶型: 玄關,客廳,廚房,餐廳,儲藏室,主臥,公衛; 二層戶型:主臥(帶衛生間+陽臺+衣帽間),起居室,客臥,公衛,書房; 三層戶型:主臥(帶衛生間+陽臺+衣帽間),起居室,客臥,公衛,書房; 四層戶型:涼亭,露臺,起居室,客臥,公衛,洗衣房; 不知道這三款別墅有沒有大家喜歡的戶型呢?
圖紙之家-專注農村別墅/自建房設計18年,集合國內200余位經驗豐富的設計師,被評為口碑最好的農村建筑設計公司! |

160平方米二層小別墅設計圖紙及效果圖大全,12X13米
占地:162平方米
農村二層帶車庫樓房設計圖,帶外觀效果圖片
占地:125平方米
130平方米湖南二層復式自建房屋設計圖紙12x11米
占地:128平方米
好看又簡單二層仿古中式四合院樓房設計圖
占地:352平方米
好看實用農村2開間二層別墅設計圖,主體19萬
占地:117.36平方米
120平方米新農村全套二層施工設計圖紙大全11X11米
占地:120平方米
占地200平米簡歐三層農村別墅設計圖,既顯華麗又接地氣
占地:209.27平方米
18X12米農村二層溫馨小別墅設計圖,美式風格
占地:203平方米
新款三層農村自建別墅設計圖,中式風復式客廳
占地:158.96平方米
115平旋轉樓梯三層復式別墅房屋設計圖,含外觀效果圖
占地:115平方米
帶車庫四層別墅外觀效果圖及設計圖紙,戶型方正通透
占地:115平方米
小戶型經濟農村雙拼自建房別墅設計圖紙,二層簡約造價低
占地:138平方米
2026新款戶型三層新農村別墅房屋設計圖紙,外觀對稱
占地:160平方米
簡單大氣的農村二層樓設計圖,二層歐式農村別墅設計圖
占地:180平方米
15×10米農村二層四合院自建房戶型圖,小型四合院設計圖
占地:150平方米
經典小戶型二層新農村房屋設計圖紙,客廳中空,造價20萬
占地:94平方米
帶閣樓二層別墅設計圖,帶外觀效果圖片
占地:160平方米
新農村自建20萬二層小樓外觀圖及戶型圖,簡單大方,漂亮接地氣
占地:130平方米
人氣最旺的二層半別墅設計圖紙,復式挑空二層半自建房
占地:122.679平方米
鄉村高檔四層豪華別墅自建房設計圖,一層不帶餐廳廚房戶型
占地:147平方米
推薦:10套新農村自建房設計圖,2026年最新設計
閱讀次數:4825737次
100套鄉村別墅圖片大全,2026年最新設計
閱讀次數:2492203次
6款農村蓋一層平房的設計圖,10萬元就能建起來
閱讀次數:1852637次
這11個一層農村自建房別墅火爆了朋友圈!我最喜歡戶型十!你呢
閱讀次數:750268次
農村6萬元建一層小別墅圖,你敢相信嗎
閱讀次數:567686次
農村5萬塊就能自建房,6套普通房子設計圖分享,你沒看錯!
閱讀次數:419410次
8套農村漂亮三間平房圖片,非常適合在農村修建!
閱讀次數:411197次
農村自建房化糞池怎么做?附方案及施工過程
閱讀次數:391783次
農村一層三間平房設計圖,告別土氣養老房,讓人忍不住點贊
閱讀次數:350581次
新農村二層樓房圖片造價12萬,挑一套回家建房吧!
閱讀次數:349126次
