
|
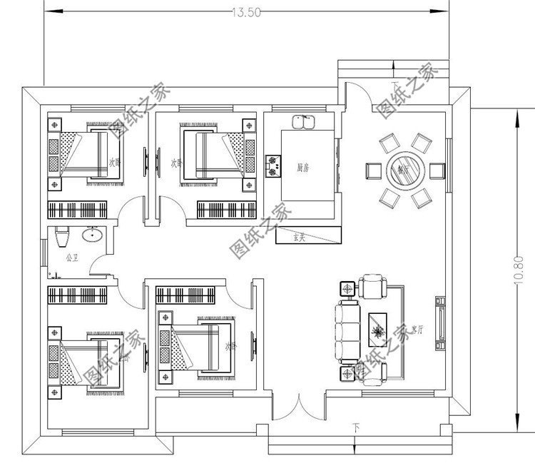
村里有塊宅基地,能夠回農村建別墅,真的是太幸福了,農村建房已成趨勢,也可以給父母一個安身之所,快來看看這四款農村一層別墅吧,占地適中,拿走圖紙就可建,回村里趕緊建一棟吧! 第一款:最漂亮的簡單實用一層四開間小別墅設計圖以及戶型圖,4臥2廳帶玄關![]() 年輕人都喜歡。外墻僅用簡單的米黃色噴漆裝飾,底部采用棕色文化石做基腳,藍色的屋面瓦,精致美觀。建筑入戶設計玄關,和寬敞的客廳,建筑預留四間臥室,分別位于建筑的兩個角落,互不打擾。 占地面積:13.5m*10.8m,138.82平方米左右; 建筑層高:一層; 建筑高度:7.987米(含屋頂); 設計功能: 一層戶型:玄關、客廳、臥室x4、廚房、餐廳 ![]() 第二款:農村大戶型美觀大氣一層平房設計圖以及戶型圖,面寬將近19米![]() 本戶型格局方正,結構緊湊,功能分布合理,通風采光恰到好處,建一棟這樣的小別墅散落在蒼翠樹木的掩映之中,置身其中恍如遠離了所有的都市塵囂,寧靜。 占地面積:18.76m*12.66m,245.1平方米左右; 建筑層高:一層; 建筑高度:7.048米(含屋頂); 設計功能: 一層戶型:客廳、廚房、餐廳、臥室X3、臥室(帶衛生間和衣帽間)、臥室(帶衛生間)、衛生間X2 ![]() 第三款:105平一層簡單農村別墅設計圖yij hxt ,造價8萬左右![]() 外觀色彩采用藍色調,舒爽而沉靜。純凈的藍色屋面瓦,仿佛與天空連接在一起。墻面米黃色的文化磚,質樸天然,搭配上素色的凸窗、立柱,更顯清新素雅。戶型室內將客廳、餐廳、廚房連通設計,更顯寬敞通暢。共設4個臥室,足以滿足使用需求。再結合精致的老虎窗,整體外觀顯得小巧精致。 ![]() 第四款:農村一層中式三合院別墅設計圖以及戶型圖,樸素的農家生活,樂趣盡顯![]() 經典實用的中式三合院,外觀秀氣,線條優美,有種小清新的氣質,造型左右對稱,南北通透,清風自來,在鄉下有一棟這樣的房子,生活是非常愜意的。呼上三五個好友,相約一起品茗;或是陪妻伴子,共享天倫之樂;或是抓住每一份安然,享受每一刻光陰。 ![]() 以上就是小編推薦的農村一層自建房設計圖以及戶型圖,你家喜歡什么樣的風格?
圖紙之家-專注農村別墅/自建房設計18年,集合國內200余位經驗豐富的設計師,被評為口碑最好的農村建筑設計公司! |

豪華三層歐式雙拼別墅設計圖紙,雙拼歐式別墅如何設計看這款
占地:258.294平方米
155平方米自建二層CAD房屋設計圖紙及效果圖,13X12米
占地:156平方米
歐式四層(三層半)獨棟別墅設計圖復式,設計豪華時尚
占地:194平方米
農村中式兩層雙拼別墅房屋設計圖,含效果圖片
占地:200平方米
115平旋轉樓梯三層復式別墅房屋設計圖,含外觀效果圖
占地:115平方米
帶庭院中式二層四合院別墅設計效果圖片,方方正正
占地:404平方米
農村帶閣樓一層房屋設計施工圖,13X9米
占地:102平方米
二層現代風格雙拼別墅設計圖,平屋頂,帶地下室設計
占地:192.47平方米
180平方別墅房屋設計圖,外觀效果圖美觀
占地:180平方米
實用農村10萬一層小別墅戶型圖及圖紙,全套施工圖
占地:多種面積
帶開放式車庫二層農村自建別墅設計方案,造價僅15萬
占地:89.412平方米
200平方二層小別墅設計圖紙,含效果圖,歐式風格帶車庫
占地:197.6平方米
占地170平米2026新款三層別墅設計圖片及設計方案
占地:170平方米
豪華歐式三層別墅住宅設計圖紙,占地面積150平方米
占地:150平方米
四開間兩層別墅設計圖,農村自建住著舒適的好方案!
占地:187.04平方米
帶車庫三層自建別墅設計圖紙,客廳中空,外觀洋氣時尚,這款戶
占地:170平方米
鄉村最美四合院設計圖及外觀效果圖片,國人的理想住宅
占地:280.62平方米
新農村二層小別墅全套設計圖紙(含外觀效果圖)
占地:85.6平方米
110平農村二層房屋設計圖,戶型特別接地氣,造價經濟還實用
占地:110.05平方米
12x13米豪華三層農村別墅設計圖,宅基地上的貴族人生
占地:156平方米
推薦:10套新農村自建房設計圖,2026年最新設計
閱讀次數:4825737次
100套鄉村別墅圖片大全,2026年最新設計
閱讀次數:2492203次
6款農村蓋一層平房的設計圖,10萬元就能建起來
閱讀次數:1852637次
這11個一層農村自建房別墅火爆了朋友圈!我最喜歡戶型十!你呢
閱讀次數:750268次
農村6萬元建一層小別墅圖,你敢相信嗎
閱讀次數:567686次
農村5萬塊就能自建房,6套普通房子設計圖分享,你沒看錯!
閱讀次數:419410次
8套農村漂亮三間平房圖片,非常適合在農村修建!
閱讀次數:411197次
農村自建房化糞池怎么做?附方案及施工過程
閱讀次數:391783次
農村一層三間平房設計圖,告別土氣養老房,讓人忍不住點贊
閱讀次數:350581次
新農村二層樓房圖片造價12萬,挑一套回家建房吧!
閱讀次數:349126次
