
|
看我們的戶型推薦的朋友,很多問12×12的占地面積怎么設計小別墅?12×12的占地是很好發揮的,今天就來看看12×12的占地面積在我們設計師手里會是一件什么樣的作品吧! 首先是效果圖,簡歐式風格,整體色條藍色屋頂,米黃色外裝,色彩明朗,低調又不失奢華。四坡屋頂造型層次錯落,給人美感。三樓大露臺,二樓小陽臺設計充分考慮到活動空間。棱角線條突出,給人方正又不失銳氣,整體給人以美觀大氣,沉穩奢華。
左上方觀感,屋頂造型突出,層次感十足;側面窗戶通風,透氣舒爽。
右上方觀感,陽臺巧妙,取陽休息不二之所。
后方觀感,多窗戶設計保證各樓層通風采光,自家建房高層高和多通風的設計不會有樓層的壓抑感,設計師用心良苦。
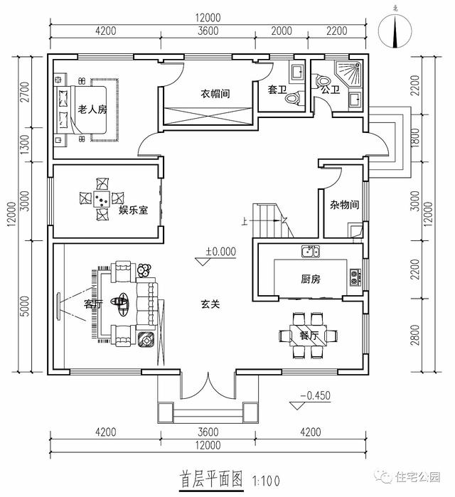
我們再來看看平面布置: 首層入口及客廳,非常方便生活起居及親朋好友洽談,旁邊的娛樂室也方便街鄰一起棋牌娛樂。廚房及餐廳設在其右,中間用玄關隔開,潔凈分明。設帶衣帽間和套為的老人房,為家里老人專門設計,重在貼心。
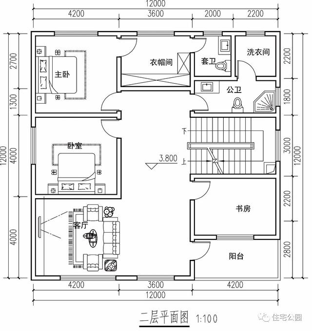
二層設帶衣帽間和套衛的主臥、次臥、客廳、書房、洗衣間,方便一家人起居,還有小陽臺舒心。
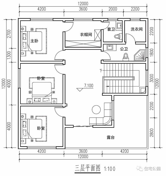
三層主設臥室,根據實際情況可以自己用來放儲物室,大露臺可以用來眺望遠方,欣賞風景,也是家人娛樂的不二場所。
這樣的房子,你們建房會選嗎? 圖紙之家-專注農村別墅/自建房設計18年,集合國內200余位經驗豐富的設計師,被評為口碑最好的農村建筑設計公司! |

新款現代一層小別墅設計圖,農村自建平房推薦戶型
占地:多戶型可選
網紅中式一層三合院別墅設計圖,白墻黛瓦古典大氣,讓人心曠神
占地:248.82平方米
二層新農村自建房設計圖,帶外觀效果圖
占地:140平方米
三層樓房設計圖紙含效果圖,外觀造型高低錯落,別致大方
占地:152.4平方米
新款三層豪華大氣歐式別墅設計圖,3種戶型設計方案
占地:125平方米左右
一層自建別墅設計圖,占地70平不大功能很齊全,非常適合農村養
占地:69.61平方米
農村二層L戶型農村別墅!設計圖簡約時尚又大氣,住著超舒適
占地:170.55平方米
農村三層別墅設計圖紙,造價50萬左右,中式風格,沉穩內斂
占地:160平方米
備受好評二層半歐式別墅設計圖,五開間對稱設計,布局合理又實
占地:192.48平方米
農村二層帶閣樓四間別墅設計圖,外觀美觀,戶型實用
占地:175平方米
新農村三層房屋cad建筑設計圖紙,磚混結構
占地:138平方米
二層半大客廳復式別墅房屋設計圖,客廳寬闊明亮
占地:125平方米
120平方房子設計圖,農村120平建房設計圖推薦
占地:122平方米
面寬20米農村自建房設計圖一層設計圖,五開間養老戶型
占地:194平方米
100平左右鄉下三層樓房設計圖,戶型方正,小面積宅基地的福音
占地:100平方米
農村二層帶車庫樓房設計圖,帶外觀效果圖片
占地:125平方米
豪華高端三層帶地下室別墅設計圖,可帶電梯
占地:210平方米
偏中式徽派的二層房屋農村別墅設計圖,馬頭墻小青瓦
占地:123.36平方米
精致小巧新農村二層別墅設計圖紙,占地90平米左右,造價15萬左
占地:90平方米
簡單農村自建二層樓房設計圖,南北通透
占地:140平方米
推薦:10套新農村自建房設計圖,2026年最新設計
閱讀次數:4825737次
100套鄉村別墅圖片大全,2026年最新設計
閱讀次數:2492203次
6款農村蓋一層平房的設計圖,10萬元就能建起來
閱讀次數:1852637次
這11個一層農村自建房別墅火爆了朋友圈!我最喜歡戶型十!你呢
閱讀次數:750268次
農村6萬元建一層小別墅圖,你敢相信嗎
閱讀次數:567686次
農村5萬塊就能自建房,6套普通房子設計圖分享,你沒看錯!
閱讀次數:419410次
8套農村漂亮三間平房圖片,非常適合在農村修建!
閱讀次數:411197次
農村自建房化糞池怎么做?附方案及施工過程
閱讀次數:391783次
農村一層三間平房設計圖,告別土氣養老房,讓人忍不住點贊
閱讀次數:350581次
新農村二層樓房圖片造價12萬,挑一套回家建房吧!
閱讀次數:349126次
