
|
現在我們農村生活水平都上來了,對于住房的需求急劇增加,很多人選擇去城里買房,但是也有很多人選擇在農村蓋房。小編從事農村自建房行業已經有8年了,這段時間一直有客戶在咨詢我,關于我們農村自建房地基的圈梁和框架梁應該怎么配筋。這是一個非常好的現象,說明大家開始對于房屋安全意識開始提高了! 今天就先和大家來說說梁的受力模型:在荷載的作用下,鋼筋混凝土框架梁的有效截面,下半部分的受拉力是由鋼筋來承受的,而上半部分的壓力是有混凝土來承受的!
▲梁受力示意圖 梁下半部分鋼筋的受拉能力決定了整個框架梁的一個承載能力,所以在實際施工過程中,梁體下部的受力鋼筋是非常重要的一環。配筋率要滿足要求,既鋼筋的數量和總截面的面積要滿足要求,并且通常來說不可以搭接! 配筋率p:As/(b*h)
▲梁截面配筋示意圖 對于我們農村框架結構的自建房而言,框架梁受力的配筋率應該要大于2%并且不得超過2.5%,在這個范圍內我們稱之為適筋梁,大梁在荷載作用下的破壞形式也和大家說一下吧!(找這些圖累死了,你們還不給我點個贊?) 一般來說是分為三個極端的:
▲適筋梁破壞過程演示 從上圖就可以看得出來,適筋梁的破壞開始于受拉鋼筋的屈服,從受拉鋼筋屈服到混凝土被壓碎開裂,是有一個比較長的過程的,可以有足夠的時間,安排的補救和人員的疏散!這種破話我們稱之為延性破壞。 當然了,我們除了縱向受力筋,梁中還應有架立筋和箍筋,共同構成梁的骨架!這樣我們的適筋梁材料強度才能夠充分發揮!
▲梁配筋示意圖 這是我們給大家介紹的適筋梁的情況,但是我們農村建房很多時候沒有請設計師設計,磚匠配筋完全憑借著自己多年的施工經驗,往往會造成多筋梁和少筋梁的出現,那么會出現什么樣子的情況呢?下面小編就和大家來說吧! 那么如果鋼筋放少了,梁變成了少筋梁,會產生什么樣的后果呢? 這種梁破壞時,裂縫往往集中出現一條或幾條,不但展開寬度大,而且沿著房梁延伸快,鋼筋的受到的力迅速增大進而被拉斷。 在此過程中,裂縫迅速開展,構件嚴重向下撓曲,最后因裂縫過寬,變形過大而喪失承載力,甚至被折斷! 這種破壞是突然的,沒有明顯預兆,這種就是我們常說的脆性破壞。偷工減料,所謂豆腐渣工程即是如此。
▲少筋梁破壞過程演示 那么如果鋼筋放多了,梁變成了超筋梁,會產生什么樣的后果呢? 很多人都會說,我鋼筋放少了不行,那我多放一點一定更加牢固吧!其實這樣也不行,如果我們構件的配筋量很高,放多了鋼筋的時候,破壞時受拉鋼筋不會屈服,破壞是因混凝土受壓邊緣達到極限壓應變、混凝土被壓碎而引起的。 發生這種破壞時,受拉區混凝土裂縫不明顯,破壞前無明顯預兆,也是一種脆性破壞。這樣,梁被破壞時,受拉鋼筋的強度未被充分利用,雖然它的承載能力并不弱于適筋梁,甚至超過適筋梁,但失去了預警功能,經濟上也不合理。 我們農村建房資金本來就不寬裕,一噸鋼筋又貴現在要5000左右,所以真的很費錢。
▲超筋梁破壞過程演示 目前我們農村做的房屋類型是磚混結構的,梁的作用更多的是約束墻體的移動,而不是承重。但是農村施工隊一般來都是當地人在建,害怕房子出問題,業主來找,所以鋼筋都是拼命的放,其實我們做圈梁的時候,用4根直徑14mm的鋼筋上下各用兩根就足夠,沒有必要去浪費那么多錢,畢竟誰家的錢也不是大風刮來的!
▲磚混房屋施工實景
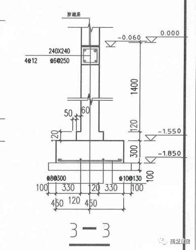
▲磚混結構地圈梁標準配筋圖
▲框架梁標準配筋 在農村很少有超高的建筑,一般都是在三層以內,土豪除外哈。這時候我們做自建房框架結構梁的時候,在下層做三根受力筋,一根直徑20mm,兩根直徑18mm,上面再加上兩根直徑10mm的架立筋,配合箍筋,就完全足夠了!這種配筋方式我們叫做:單筋梁
▲實際施工過程的超筋 (哎,這都是錢啊,全部浪費了,還有安全隱患)
▲超筋梁配筋 好了今天的介紹就到這里了,希望動動你的小手,幫小編分享出去,讓更多有需要的人看到這篇文章!更多建房知識,歡迎點擊頭像關注本號。每天更有自建房曬家、別墅自建房圖紙分享。 農村自建房推薦款式:
圖紙之家-專注農村別墅/自建房設計18年,集合國內200余位經驗豐富的設計師,被評為口碑最好的農村建筑設計公司! |

二層小別墅外觀圖片,別墅圖紙,外觀時尚,布局簡單實用,挑空
占地:230平方米
帶車庫二層別墅設計圖及效果圖,帶車庫的農村二層樓房推薦
占地:123平方米
面寬13米二層新農村別墅自建房設計圖,功能實用,外觀大氣
占地:168.96平方米
二層帶車庫歐式尊貴別墅圖,客廳中空,美觀,大氣,實用
占地:300平方米
新款中式二層四合院住宅設計圖,農村自建帶露臺設計
占地:223平方米
新中式徽派帶露臺別墅設計圖,構思精巧,自然得體
占地:124.82平方米
新農村田園風格兩層半別墅設計圖,外觀造型非常漂亮
占地:147.8平方米
田園輕奢三層帶露臺的鄉村別墅設計圖紙,11x10米
占地:106.64平方米
二層現代風格雙拼別墅設計圖,平屋頂,帶地下室設計
占地:192.47平方米
農村四間兩層樓房設計圖,帶車庫,時尚經濟,最適合農村施工的
占地:180平方米
經典實用的新農村三層房屋設計圖紙,推薦自建使用
占地:165平方米
2026年經典新中式三層別墅設計圖紙,新款自建房戶型圖
占地:158.19平方米
時尚典雅歐式三層自建房設計圖,美觀大氣簡單舒適,好看到沒得
占地:153.12平方米
外觀看起來高端、奢華的二層小別墅設計圖,推薦
占地:130平方米
高端大氣的農村四層樓房別墅設計圖,戶型真不錯,占地130多平
占地:135.31平方米
農村4間2層樓房設計圖,帶車庫,外觀時尚,帶屋頂花園
占地:210平方米
二層中式四合院別墅設計圖,經典、漂亮(全套施工圖)
占地:350平方米
120平現代實用三層別墅房屋設計圖,含外觀效果圖
占地:120平方米
私人別墅房屋cad施工設計圖,造型精致、美觀
占地:105平方米
2026新款四層樓房設計圖,占地120平方米左右,客廳中空
占地:120平方米
推薦:10套新農村自建房設計圖,2026年最新設計
閱讀次數:4825737次
100套鄉村別墅圖片大全,2026年最新設計
閱讀次數:2492203次
6款農村蓋一層平房的設計圖,10萬元就能建起來
閱讀次數:1852637次
這11個一層農村自建房別墅火爆了朋友圈!我最喜歡戶型十!你呢
閱讀次數:750268次
農村6萬元建一層小別墅圖,你敢相信嗎
閱讀次數:567686次
農村5萬塊就能自建房,6套普通房子設計圖分享,你沒看錯!
閱讀次數:419410次
8套農村漂亮三間平房圖片,非常適合在農村修建!
閱讀次數:411197次
農村自建房化糞池怎么做?附方案及施工過程
閱讀次數:391783次
農村一層三間平房設計圖,告別土氣養老房,讓人忍不住點贊
閱讀次數:350581次
新農村二層樓房圖片造價12萬,挑一套回家建房吧!
閱讀次數:349126次
