
|
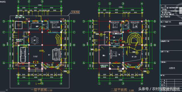
戶型為三層單家獨院式別墅,總建筑面積366.4平方米,主體建筑面積147.7平方米,建筑總高度11.1米 框剪結構 戶型為三層單家獨院式別墅,占地面積147.7平方米,總建筑面積366.4平方米,建筑總高度11.1米。一樓設有入口玄關、客廳、餐廳、廚房、客房、衛生間、車庫;二樓設有臥室(帶陽臺和露臺)、一樓懸空客廳、2間臥室,2間衛生間、書房(帶陽臺);三樓設有活動廳(帶露臺)、臥室(帶露臺)、臥室2間、2間衛生間、書房(帶陽臺)。本戶型附有室內裝修做法表。 本戶型采用坡屋面,紅色波形瓦,高低錯落,外觀、造型簡潔大方,色彩明快,整體平面布局緊湊、功能分區合理,房間尺度設計適宜,空間利用率高。 門面寬13.3米*進深14.6米 參考造價37萬
圖紙之家-專注農村別墅/自建房設計18年,集合國內200余位經驗豐富的設計師,被評為口碑最好的農村建筑設計公司! |

農村蓋房設計大全一層房子的設計圖紙,色調清新靚麗
占地:220平方米
140平歐式二層半帶露臺的獨棟別墅圖片,含全套設計圖
占地:140平方米
不帶廚房的一層別墅設計圖,三臥二廳超巴適,室外獨立廚房
占地:120平方米
南方新農村三層別墅設計圖紙,含效果圖,帶車庫
占地:120平方米
100平方米新農村住宅二層小別墅設計CAD圖紙及效果圖,10x10米
占地:96平方米
新農村現代簡約別墅建筑設計圖紙(含外觀效果圖),28萬左右
占地:107平方米
高端大氣的農村四層樓房別墅設計圖,戶型真不錯,占地130多平
占地:135.31平方米
高端三層別墅設計圖紙,客廳中空,帶地下室,設置多個套間
占地:220平方米
帶院子的一層農村別墅設計圖,造價不高,養老房首選!
占地:144.819平方米
方方正正的二層農村別墅設計圖,普通農村人都能建
占地:201.05平方米
150平左右新農村自建房設計圖,含外觀效果圖
占地:150平方米
230平米歐式帶地下室三層自建別墅設計施工圖紙及效果圖
占地:230平米
鄉村三層別墅設計圖紙,帶屋頂花園(含效果圖)
占地:150平方米
三層農村自建房別墅設計圖紙,大廳中空,外觀高端大氣
占地:230平方米
2026農村漂亮的一層平房圖片平面圖與全套施工圖紙,戶型周正
占地:150平方米
130平方米別墅設計圖紙(含外觀效果圖,)三層別墅設計方案
占地:135平方米
中式兄弟雙拼別墅設計圖紙,類似合院造型,美爆了
占地:221.9平方米
農村中式一層合院別墅設計圖,帶小院子規劃設計
占地:202平方米左右
帶電梯農村建房三層小洋樓,樓中樓結構,帶露臺
占地:110平方米
農村一層四間平房設計圖方案,含外觀圖片,預算10萬
占地:190平方米
推薦:10套新農村自建房設計圖,2026年最新設計
閱讀次數:4825737次
100套鄉村別墅圖片大全,2026年最新設計
閱讀次數:2492203次
6款農村蓋一層平房的設計圖,10萬元就能建起來
閱讀次數:1852637次
這11個一層農村自建房別墅火爆了朋友圈!我最喜歡戶型十!你呢
閱讀次數:750268次
農村6萬元建一層小別墅圖,你敢相信嗎
閱讀次數:567686次
農村5萬塊就能自建房,6套普通房子設計圖分享,你沒看錯!
閱讀次數:419410次
8套農村漂亮三間平房圖片,非常適合在農村修建!
閱讀次數:411197次
農村自建房化糞池怎么做?附方案及施工過程
閱讀次數:391783次
農村一層三間平房設計圖,告別土氣養老房,讓人忍不住點贊
閱讀次數:350581次
新農村二層樓房圖片造價12萬,挑一套回家建房吧!
閱讀次數:349126次
