
|
常有人問農村建房,建多大合適?這個問題實際根本不用回答,當然是夠用最合適。 自家建房時不妨多自問一句,“我需要多大?”想一般的兩代人的4口之家或者三代人的五口之家,以農村普遍的120平大小的宅基地,無疑兩層就夠用了200平以上的建筑面積,一般都是5室或6室的設置,完全可以滿足家人居住,還能留出一到兩間留作棋牌室或客臥或書房,生活使用更方便。 戶型1:外觀簡雅造價相對較低,小面寬長進深,占地百余平米,五室三廳,更經濟實用的滿足一般家庭居住所需。
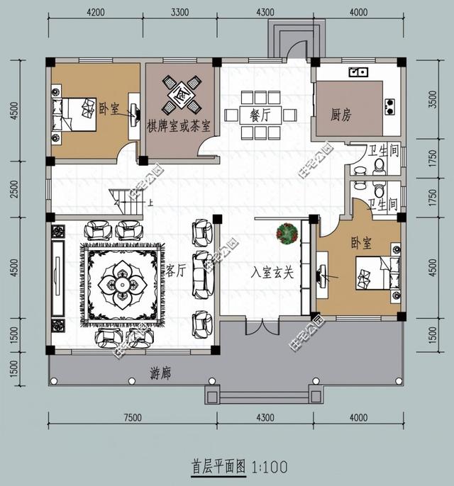
戶型2:外觀淡雅簡約,室內布局實用精簡,造價相對較低,方便施工,適合廣大農村地區建造。
戶型3:不是所有的家都必須富麗堂皇,不是所有的家都一定要雕欄玉砌;實用經濟卻一樣可以擁有“家”的溫度和美好。
戶型4:別墅外觀,簡潔大方,紅色的坡屋頂,頗有一份喜慶的感覺。
戶型5:熱情的紅,豐收的黃,還有代表著大地的棕色系,切合的表達出業主富足而悠然的鄉村生活狀態。
你最喜歡哪套戶型呢? 圖紙之家-專注農村別墅/自建房設計18年,集合國內200余位經驗豐富的設計師,被評為口碑最好的農村建筑設計公司! |

農村2026新式三間二層樓房,12×11.6米,戶型經典,造價實惠
占地:120平方米
新中式二層別墅設計圖,農村最適合建的兩層小樓,13×12米
占地:143平方米
一二層都帶廚房餐廳的獨棟二層別墅設計圖,帶雙廚房
占地:143.68平方米
占地百平農村三層戶型方案,簡約實用,獨具特色,理想新居等你
占地:105.61平方米
四開間兩層別墅設計圖,農村自建住著舒適的好方案!
占地:187.04平方米
三層新中式別墅設計圖,面寬12米經典漂亮
占地:154.93平方米
帶車庫三層自建別墅設計圖紙,客廳中空,外觀洋氣時尚,這款戶
占地:170平方米
二層歐式別墅設計圖,挑空客廳+柴火灶,12.5米乘12米
占地:131.25平方米
農村15萬元一層半小樓圖,最新的戶型設計
占地:182.31平方米
240平農村二層自建別墅設計圖紙,帶你體驗家的溫馨
占地:240平方米
經典三層農村房屋設計圖紙,占地100平米左右,外觀典雅精致,內
占地:100平方米
2026年最新三層房屋設計圖紙,12米×11米,實用接地氣
占地:130平方米
二層復式小別墅設計圖,樓中樓結構,外觀漂亮,簡單
占地:120平方米
蓋別墅圖紙新農村簡歐二層房屋設計圖,12米×12米左右
占地:128平方米左右
適合農村建造的二層房屋設計圖紙及效果圖,帶悶頂層,占地15
占地:150平方米
面寬8米兩開間四層歐式風別墅,布局實用,小占地大精彩!
占地:100.86平方米
三間三層房子設計圖,高端三層樓房設計圖,三層兩個大露臺
占地:170平方米
小占地三層現代時尚風別墅設計圖,平屋頂占地不足100平
占地:98.35平方米
250平方米農村三層別墅設計圖紙及效果圖大全,18.3x15米
占地:247平方米
二層農村自建四合院設計圖,中式外觀古樸有質感200-300平方米
占地:270平方米左右
推薦:10套新農村自建房設計圖,2026年最新設計
閱讀次數:4825737次
100套鄉村別墅圖片大全,2026年最新設計
閱讀次數:2492203次
6款農村蓋一層平房的設計圖,10萬元就能建起來
閱讀次數:1852637次
這11個一層農村自建房別墅火爆了朋友圈!我最喜歡戶型十!你呢
閱讀次數:750268次
農村6萬元建一層小別墅圖,你敢相信嗎
閱讀次數:567686次
農村5萬塊就能自建房,6套普通房子設計圖分享,你沒看錯!
閱讀次數:419410次
8套農村漂亮三間平房圖片,非常適合在農村修建!
閱讀次數:411197次
農村自建房化糞池怎么做?附方案及施工過程
閱讀次數:391783次
農村一層三間平房設計圖,告別土氣養老房,讓人忍不住點贊
閱讀次數:350581次
新農村二層樓房圖片造價12萬,挑一套回家建房吧!
閱讀次數:349126次
