
|
很多朋友可能覺得農村的房子基本沒有升值空間,花那么多錢自建房就是有點傻。而且自己在城里定居生活,一年中根本住不了幾天,把房子建得那么好也不值得。但是對于那些在農村長大的人來說,老家的房子比城里更加舒適溫馨,所以會回到農村去生活。 今天給大家推薦8套150平米的二層別墅,造價只要25萬左右,漂亮實用又省錢! 第一套
正面效果圖
背面效果圖
鳥瞰效果圖 占地面積:12.8m*11.8m,150平方米左右; 建筑層高:二層; 建筑高度:8.9米(含屋頂); 設計功能: 一層戶型設計:客廳、餐廳、廚房、主臥(帶衛生間)、老人房、衛生間、洗衣房; 二層戶型設計:客廳、主臥(帶衛生間)、客房、小孩房、書房、衛生間、露臺;
一層平面圖
二層平面圖 第二套
正面效果圖
背面效果圖
鳥瞰效果圖 占地面積:13.6m*10.5m,150平方米左右; 建筑層高:二層; 建筑高度:9.9米(含屋頂); 設計功能: 一層戶型設計:堂屋(客廳)、餐廳、廚房、主臥(帶衛生間)、臥室、衛生間; 二層戶型設計:起居室、主臥(帶衛生間)、臥室、書房、多功能房、陽臺; 悶頂戶型設計:功能自定義;
一層平面圖
二層平面圖
悶頂平面圖 第三套
正面效果圖
背面效果圖
鳥瞰效果圖 占地面積:13.7m*12.1m,150平方米左右; 建筑層高:二層; 建筑高度:10.5米(含屋頂); 設計功能: 一層戶型設計:客廳、餐廳、廚房、臥室×2、衛生間; 二層戶型設計:客廳、臥室×4、娛樂室、衛生間、陽臺;
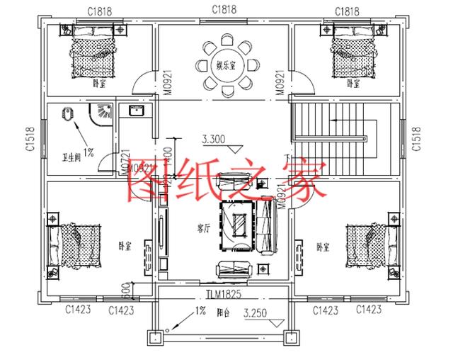
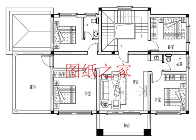
一層平面圖
二層平面圖 第四套
正面效果圖
背面效果圖
鳥瞰效果圖 占地面積:14.6m*11.6m,150平方米左右; 建筑層高:二層; 建筑高度:9.8米(含屋頂); 設計功能: 一層戶型設計:客廳、餐廳、廚房、衛生間、主臥×2、書房; 二層戶型設計:休閑廳、主臥(帶衛生間、衣帽間、小露臺)、臥室×2、書房、衛生間;
一層平面圖
二層平面圖 第五套
正面效果圖
背面效果圖
鳥瞰效果圖 占地面積:16.1m*11.3m,建筑面積150平方米左右; 建筑層高:二層; 建筑高度:9.3米(含屋頂); 設計功能: 一層戶型設計:玄關、客廳、餐廳、廚房、衛生間、主臥(帶衛生間)、臥室、棋牌室、儲藏間; 二層戶型設計:客廳、主臥(帶衛生間)、臥室、衛生間、大露臺;
一層平面圖
二層平面圖 第六套
正面效果圖
背面效果圖
鳥瞰效果圖 占地面積:13.5m*11.4m,153平方米左右; 建筑層高:二層; 建筑高度:10.3米(含屋頂); 設計功能: 一層戶型設計:門廳、客廳、餐廳、廚房、臥室、衛生間、車庫; 二層戶型設計:過廳、主臥(帶衣帽間和衛生間)、臥室x2、書房、衛生間、儲藏間、娛樂室、露臺;
一層平面圖
二層平面圖 第七套
正面效果圖
背面效果圖
鳥瞰效果圖 占地面積:13.0m*12.2m,155平方米左右; 建筑層高:二層; 建筑高度:10.34米(含屋頂); 設計功能: 一層戶型設計:大堂、客廳、餐廳、廚房、臥室x2、衛生間; 二層戶型設計:客廳、主臥(帶衣帽間和衛生間)、臥室x2、衛生間、大露臺、陽臺;
一層平面圖
二層平面圖 第八套
正面效果圖
背面效果圖
鳥瞰效果圖 占地面積:16.0m*11.6m,占地面積156平方米左右; 建筑層高:二層; 建筑高度:9.8米(含屋頂); 設計功能: 一層戶型設計:客廳、餐廳、廚房、衛生間、臥室、車庫、伙房、雜物間; 二層戶型設計:客廳、臥室(帶衛生間)、臥室x3、衛生間、陽臺、大露臺;
一層平面圖
二層平面圖 這幾套別墅的設計圖,你最喜歡哪一套? 圖紙之家-專注農村別墅/自建房設計18年,集合國內200余位經驗豐富的設計師,被評為口碑最好的農村建筑設計公司! |

農村二層小洋樓設計圖,帶外觀效果圖,外觀新穎,漂亮
占地:130平方米
農村四間兩層別墅房屋設計圖,含外觀圖片
占地:160平方米
二層自建房子最新款設計圖,平屋頂簡約經濟,美觀不失大方。
占地:115.64平方米
185平方米二層自建別墅設計施工圖紙及外觀效果圖,15x13米
占地:186平方米
鄉村一層房屋設計圖,養老還是一層好,多臥室的設計
占地:195平方米
兄弟雙拼四間三層別墅設計圖,農村自建推薦戶型方案
占地:260平方米
客廳中空的三層豪華小別墅設計圖,時尚靚麗,鄉下建一棟有面子
占地:171.25平方米
12x10米帶閣樓的農村一層半別墅設計圖,外觀洋氣
占地:110.54平方米
三層帶露臺21萬別墅設計圖,占地面積100平米左右
占地:106平方米
新中式二層農村別墅設計圖紙及外觀圖,面寬15米左右
占地:148.86平方米
一層自建別墅設計圖,占地70平不大功能很齊全,非常適合農村養
占地:69.61平方米
好看的三層樓別墅圖片及全套建筑施工設計圖紙
占地:多種戶型
農村一層中式別墅設計圖,經典大氣,布局舒適,面寬20米
占地:192.92平方米
260平方米仿歐式二層別墅設計圖紙及效果圖,22X12米
占地:260平方米
廚房餐廳在配房的歐式三層農村別墅設計方案,華麗又宜居
占地:177.58平方米
面寬13米三層新中式獨棟別墅設計圖,復式自建房戶型方案
占地:201.25平方米
農村超級好看的現代風格兩層小樓圖,清新優雅
占地:多種戶型
130平四間二層小洋樓設計圖,含外觀圖片
占地:130平方米
高顏值農村二層別墅設計圖,顏值在線造價不高,建房好選擇!
占地:216.93平方米
2026二層農村新款別墅設計圖,帶車庫,帶鍋爐房
占地:180平方米
推薦:10套新農村自建房設計圖,2026年最新設計
閱讀次數:4825737次
100套鄉村別墅圖片大全,2026年最新設計
閱讀次數:2492203次
6款農村蓋一層平房的設計圖,10萬元就能建起來
閱讀次數:1852637次
這11個一層農村自建房別墅火爆了朋友圈!我最喜歡戶型十!你呢
閱讀次數:750268次
農村6萬元建一層小別墅圖,你敢相信嗎
閱讀次數:567686次
農村5萬塊就能自建房,6套普通房子設計圖分享,你沒看錯!
閱讀次數:419410次
8套農村漂亮三間平房圖片,非常適合在農村修建!
閱讀次數:411197次
農村自建房化糞池怎么做?附方案及施工過程
閱讀次數:391783次
農村一層三間平房設計圖,告別土氣養老房,讓人忍不住點贊
閱讀次數:350581次
新農村二層樓房圖片造價12萬,挑一套回家建房吧!
閱讀次數:349126次
