
|
現在的政策是在農村只能建最高三層或三層半,在老家建棟房子也越來越不容易了,政策越來越緊了,宅基地上的房屋確權步驟越來越快,所以有想在農村老家建房的朋友,請步子邁大點。當然我今天帶來的作品不是主流的三層,是兩層獨棟別墅,我的想法,住自己想住的才是最要的,潮流都是一波一波的,有時可以不必太認真,自己喜歡才最重要。 房屋基本信息占地尺寸:14.1mx18.5m 建筑占地面積 :201.42m2 建筑面積:492.7m2 效果圖
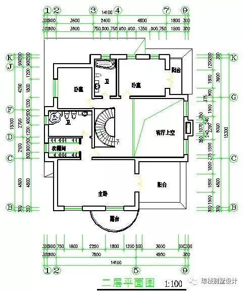
平面圖
一層主入口、車庫、書房、公衛生間設在北面,這些輔助功能房設在北面,是比較有利,因為這樣有利于將一些主要的活動空間設在向陽的南面,如客廳、餐廳,以及餐廳旁的室外休閑平臺。而我們的客廳設在東面,并設有壁爐,不論在冬季還是平日里的格調上,不但實用而且更顯高端。除了以上這些,還是向南的廚房,以設在西面的保姆房,當然我們也不應忘記在客廳起點睛之筆的旋轉樓梯,它整個空間的顏值與空。
二層整體可以簡化為三個房間,一個主臥,其帶陽臺、露治、衣帽間、衛生間,這些可以說是形成一個完整的生活空間,其余兩間為次臥,其中一間帶向東的陽臺,當然還有一個必不可以少的主衛,二樓還有一個空間,是留給客廳的,在一樓客廳上空的位置做了中空處理,使家人在二樓便可以將一樓的客廳情況盡收眼底。
立面圖
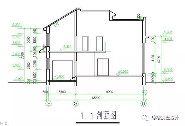
剖面圖
互動討論這套戶型能滿足您的需求么?如不能,那您可以在評論區告訴我們 圖紙之家-專注農村別墅/自建房設計18年,集合國內200余位經驗豐富的設計師,被評為口碑最好的農村建筑設計公司! |

面寬8米農村二間二層小別墅設計方案,施工簡單造價低
占地:73.77平方米
兩層半30萬農村自建房別墅設計圖紙,客廳挑空,帶大露臺
占地:130平方米
預算10萬左右新農村自建房屋設計圖紙,帶效果圖
占地:82平方米
開間12米的三層簡歐別墅設計圖,農村建房布局實用住的舒服
占地:108.15平方米
180平方米新農村自建二層小別墅設計圖及效果圖,15X13米
占地:183平方米
農村實用型一層半樓房圖片效果圖,占地140平米左右
占地:140平方米
130平新農村三層房屋設計圖紙,預算30萬以內,蓋房推薦
占地:132平方米
經典二層農村自建房屋別墅設計圖紙,占地110平米左右
占地:110平方米
12.8x10米二層自建房別墅設計圖,大氣美觀實用,建造無憂
占地:128平方米
農村二層半雙拼別墅設計圖,客廳中空,帶大露臺
占地:270平方米
農村7字形漂亮房子設計圖及外觀效果圖
占地:189.3平方米
現代風平屋頂一層自建房設計,經濟時尚
占地:147.17平方米
美式田園二層別墅設計方案圖,全套設計圖+效果圖
占地:235平方米
歐式風格三層別墅建筑設計圖,復式樓中樓結構
占地:138平方米
新農村二層帶庭院的小別墅設計圖及效果圖
占地:137平方米
2026戶型方正三層農村小別墅設計圖紙(含外觀圖片)
占地:150平方米
高端三層新中式農村別墅設計圖,仿合院布局,外觀霸氣
占地:133.64平方米
農村兄弟倆雙拼別墅房屋設計圖,外觀質樸
占地:195平方米
豪華農村帶露臺三層樓房別墅設計圖紙,占地200平方米左右
占地:200平方米
好看的三層樓別墅圖片及全套建筑施工設計圖紙
占地:多種戶型
推薦:10套新農村自建房設計圖,2026年最新設計
閱讀次數:4825737次
100套鄉村別墅圖片大全,2026年最新設計
閱讀次數:2492203次
6款農村蓋一層平房的設計圖,10萬元就能建起來
閱讀次數:1852637次
這11個一層農村自建房別墅火爆了朋友圈!我最喜歡戶型十!你呢
閱讀次數:750268次
農村6萬元建一層小別墅圖,你敢相信嗎
閱讀次數:567686次
農村5萬塊就能自建房,6套普通房子設計圖分享,你沒看錯!
閱讀次數:419410次
8套農村漂亮三間平房圖片,非常適合在農村修建!
閱讀次數:411197次
農村自建房化糞池怎么做?附方案及施工過程
閱讀次數:391783次
農村一層三間平房設計圖,告別土氣養老房,讓人忍不住點贊
閱讀次數:350581次
新農村二層樓房圖片造價12萬,挑一套回家建房吧!
閱讀次數:349126次
